Clapham Common North Side, SW4
By Rampton Baseley
£ 1,300,000
Reviews
3 out of 5 stars
Rampton Baseley says ..
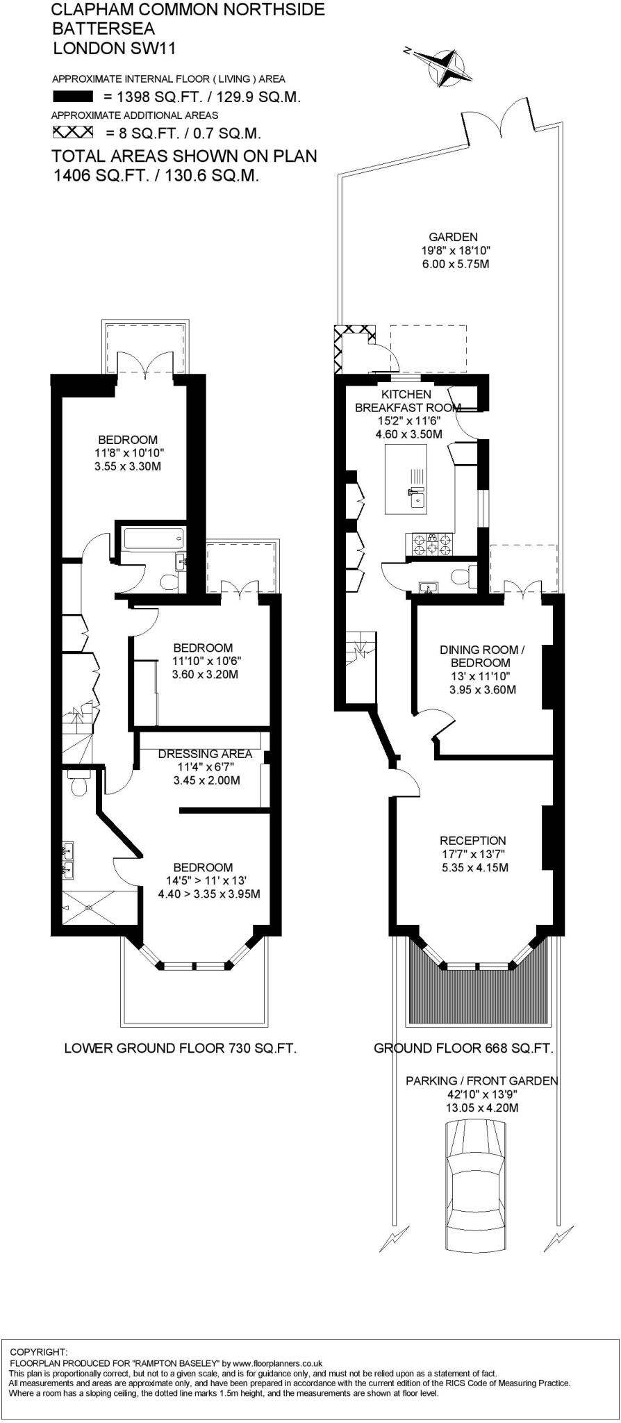
This extremely impressive property is arranged over the ground and lower ground floors of this magnificent Victorian building with wonderful views across Clapham Common. The accommodation measures approximately 1,398sq ft. Not only is the footprint spacious, but the internal proportions also have...
Property Oracle says ..
This is a well-presented apartment in a prime location on Clapham Common North Side. The property benefits from its proximity to the common, good transport links, and local amenities. The interior is modern and well-maintained, and the presence of a garden is a significant advantage. While the price is above the average for the area, it is justified by the property’s desirable features and location. The property is a three-bedroom apartment with two bathrooms and a square footage of 1,055.30. It is located in the Shaftesbury locality of Wandsworth, in the London district. Nearby schools include Parkgate House School, Eaton House The Manor School, and Belleville Wix Academy. Clapham Junction is the closest train station, located 1.63 KM away. Overall, this property is a desirable option for those seeking a well-located and modern apartment in London.
Therefore, we give this property 7 / 10. *Disclaimer: This is our option and does constitute a recommendation or financial advice. Do your own research. *
- Price
- 7
- Condition
- 8
- Location
- 9
- Land
- 7
- Bedrooms
- 3
- Bathrooms
- 2
- Sqft (est)
- 1,055.30
The heatmap indicates the level of crime in the area. The color of the heatmap indicates the crime severity and recency.
Metrics Year-on-Year
- Average area value
- 592,760.00 £Decreased by 27.61 %
- Est sale value
- 736,599.40 £Decreased by 16.90 %
- Average area rental value
- 2,532.00 £/moDecreased by 6.77 %
- Est letting value
- 2,110.60 £/moUnchanged by 0.00 %
- Est rental Yield
- 5.13 %Increased by 28.89 %
- Crime Rate
- 2.00 %Unchanged by 0.00 %
Agent Activity
Rampton Baseley created the listing.
Nearby Schools
| Name | Type | Ofsted | Distance |
|---|---|---|---|
| Parkgate House School | Other Independent School | Good | 0.20 KM |
| Eaton House The Manor School | Other Independent School | 0.53 KM | |
| Belleville Wix Academy | Academy Sponsor Led | Good | 0.58 KM |
| Thomas'S Clapham | Other Independent School | 0.80 KM | |
| Shaftesbury Park Primary School | Community School | Good | 0.83 KM |
Images
Nearby Streets
| Name | Average Price | Average Sqft | Distance |
|---|---|---|---|
| Forth Bridge Road | £ 917,500 | 0 | 0.00 KM |
| Tipthorpe Road | £ 0 | 0 | 0.00 KM |
| Woodmere Close | £ 0 | 0 | 0.00 KM |
| Eland Road | £ 1,779,000 | 0 | 0.00 KM |
| Lavender Hill | £ 0 | 0 | 0.00 KM |
Nearby Transport
| Name | NLC | TLC | Distance |
|---|---|---|---|
| Clapham Junction | 5595 | CLJ | 1.63 KM |
| Queenstown Road (Battersea) | 5596 | QRB | 1.83 KM |
| Wandsworth Common | 5395 | WSW | 1.87 KM |
| Battersea Park | 5420 | BAK | 1.98 KM |
| Balham | 5399 | BAL | 2.04 KM |
Nearby Listings
| Address | Price | Type | Score | Distance |
|---|---|---|---|---|
| Clapham Common North Side, SW4 | £ 1,300,000 | BUY | 7 / 10 | 0.00 KM |
| 99 -100 Clapham Common North Side, London, Wandsworth, SW4 9SQ | £ 4,700,000 | BUY | 6 / 10 | 0.09 KM |
| 99 -100 Clapham Common North Side, London, Wandsworth, SW4 9SQ | £ 4,250,000 | BUY | 6 / 10 | 0.09 KM |
| 99 -100 Clapham Common North Side, London, Wandsworth, SW4 9SQ | £ 4,700,000 | BUY | 7 / 10 | 0.09 KM |
| 99 -100 Clapham Common North Side, London, Wandsworth, SW4 9SQ | £ 4,250,000 | BUY | 6 / 10 | 0.09 KM |
Nearby Properties
| Address | Price | Distance |
|---|---|---|
| 93c Clapham Common North Side | £ 305,000 | 0.04 KM |
| 90 Clapham Common North Side | £ 1,020,000 | 0.04 KM |
| 92a Clapham Common North Side | £ 1,047,000 | 0.04 KM |
| 98 Clapham Common North Side | £ 1,100,000 | 0.04 KM |
| 93 Clapham Common North Side | £ 357,500 | 0.04 KM |