Valley Way, Stevenage, Hertfordshire, SG2
By Putterills
£ 489,995
Reviews
2 out of 5 stars
Putterills says ..
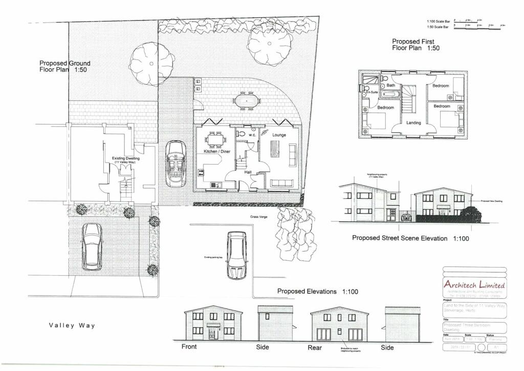
A fantastic opportunity to reserve this BRAND NEW three bedroom detached home off-plan, tucked away at the end of this popular turning on the outskirts of Shephall on the southern side of the town. With completion due Summer 2024 there remains the opportunity for a buyer to select their own choic...
Property Oracle says ..
This property is a new-build, three-bedroom detached house located on Valley Way, Shephall, Stevenage. The location is convenient, being close to local amenities, schools (including The Valley School with a ‘Good’ Ofsted rating), and with reasonable access to transport links to London via Stevenage train station. However, the exact size of the plot is currently unclear from the data given. The property is currently under construction, as evidenced by the photographs showing an unfinished building site. The provided images reveal a relatively small garden area. The listing price of £489,995 appears reasonable given similar properties in the area, although it’s important to note that the lack of specific information about the property’s total square footage and complete finishes hampers the possibility to provide a detailed and complete analysis on value for money.
Therefore, we give this property 4 / 10. *Disclaimer: This is our option and does constitute a recommendation or financial advice. Do your own research. *
- Price
- 6
- Condition
- 2
- Location
- 7
- Land
- 4
- Bedrooms
- 3
- Bathrooms
- 2
The heatmap indicates the level of crime in the area. The color of the heatmap indicates the crime severity and recency.
Metrics Year-on-Year
- Average area value
- 383,997.00 £Decreased by 7.91 %
- Average area rental value
- 950.00 £/moDecreased by 51.90 %
- Est rental Yield
- 2.97 %Decreased by 47.71 %
- Crime Rate
- 12.00 %Unchanged by 0.00 %
Agent Activity
Putterills created the listing.
Nearby Schools
| Name | Type | Ofsted | Distance |
|---|---|---|---|
| The Valley School | Community Special School | Good | 0.10 KM |
| Roebuck Academy | Academy Converter | Good | 0.26 KM |
| Peartree Way Nursery School | Local Authority Nursery School | Good | 0.81 KM |
| St Margaret Clitherow Roman Catholic Primary School | Voluntary Aided School | Outstanding | 0.86 KM |
| St Nicholas Cofe (Va) Primary School And Nursery | Voluntary Aided School | Good | 0.96 KM |
Images
Nearby Streets
| Name | Average Price | Average Sqft | Distance |
|---|---|---|---|
| Broadhall Way | £ 489,995 | 0 | 0.00 KM |
| London Road | £ 0 | 0 | 0.00 KM |
| Old Knebworth Lane | £ 400,000 | 0 | 0.00 KM |
| B197 | £ 0 | 0 | 0.00 KM |
| Bulwer Link | £ 0 | 0 | 0.00 KM |
Nearby Transport
| Name | NLC | TLC | Distance |
|---|---|---|---|
| Stevenage | 6092 | SVG | 2.57 KM |
| Knebworth | 6088 | KBW | 2.57 KM |
| Welwyn North | 6096 | WLW | 7.42 KM |
| Watton-At-Stone | 6095 | WAS | 8.36 KM |
Nearby Listings
| Address | Price | Type | Score | Distance |
|---|---|---|---|---|
| Valley Way, Stevenage, Hertfordshire, SG2 | £ 489,995 | BUY | 4 / 10 | 0.00 KM |
| Monks View, Stevenage, Hertfordshire, SG2 | £ 300,000 | BUY | 7 / 10 | 0.05 KM |
| Valley Way, Stevenage | £ 500,000 | BUY | 5 / 10 | 0.07 KM |
| 11b Valley Way, Stevenage, SG2 | £ 490,000 | BUY | 7 / 10 | 0.07 KM |
| Valley Way, Stevenage | £ 325,000 | BUY | 6 / 10 | 0.10 KM |
Nearby Properties
| Address | Price | Distance |
|---|---|---|
| 54 Valley Way | £ 290,000 | 0.05 KM |
| 15 Monks View | £ 375,000 | 0.05 KM |
| 12 Monks View | £ 300,000 | 0.05 KM |
| 11 Monks View | £ 235,000 | 0.05 KM |
| 11 Shackledell | £ 340,000 | 0.20 KM |