Melrose Avenue, London
By Loney Miller Limited
£ 550,000
Reviews
3 out of 5 stars
Loney Miller Limited says ..
Located on the highly regarded Wimbledon Park grid is this first floor apartment. Well situated it offers easy access to the artisan shops and eateries of Southfields and Wimbledon Park as well as great transport links and the green space of Wimbledon Park. With accommodation currently only to th...
Property Oracle says ..
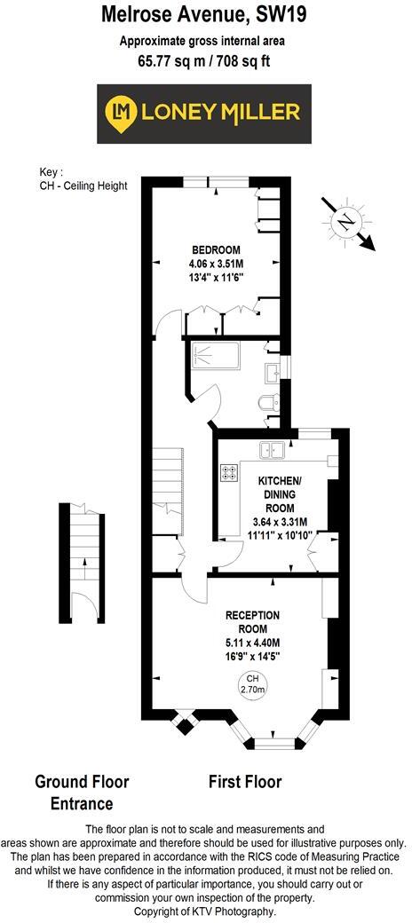
This is a one-bedroom flat on Melrose Avenue in Wimbledon Park, London. The property is in good condition, with a modern kitchen and bathroom. It is located in a desirable residential area, close to local amenities, parks, and good schools. The list price of £550,000 is lower than the average price in the area, making it a potentially attractive purchase. The flat is approximately 708 sq ft.
Therefore, we give this property 6 / 10. *Disclaimer: This is our option and does constitute a recommendation or financial advice. Do your own research. *
- Price
- 7
- Condition
- 8
- Location
- 8
- Land
- 3
- Bedrooms
- 1
- Bathrooms
- 1
- Sqft (est)
- 707.94
The heatmap indicates the level of crime in the area. The color of the heatmap indicates the crime severity and recency.
Metrics Year-on-Year
- Average area value
- 1,086,571.00 £Increased by 11.27 %
- Est sale value
- 1,116,421.38 £Increased by 46.15 %
- Average area rental value
- 3,187.00 £/moIncreased by 1.89 %
- Est letting value
- 2,831.76 £/moIncreased by 33.33 %
- Est rental Yield
- 3.52 %Decreased by 8.33 %
- Crime Rate
- 4.00 %Unchanged by 0.00 %
Agent Activity
Loney Miller Limited created the listing.
Nearby Schools
| Name | Type | Ofsted | Distance |
|---|---|---|---|
| Wimbledon Park Primary School | Community School | Outstanding | 0.84 KM |
| Sheringdale Primary School | Community School | Outstanding | 0.92 KM |
| Riversdale Primary School | Community School | Good | 1.02 KM |
| Southfields Academy | Academy Converter | Good | 1.03 KM |
| Saint Cecilia'S Church Of England School | Academy Converter | Good | 1.08 KM |
Images
Nearby Streets
| Name | Average Price | Average Sqft | Distance |
|---|---|---|---|
| Normanton Avenue | £ 0 | 0 | 0.00 KM |
| Squires Court | £ 0 | 0 | 0.00 KM |
| Alba Mews | £ 0 | 0 | 0.00 KM |
| Southfields Court | £ 0 | 0 | 0.00 KM |
| Duntshill Road | £ 0 | 0 | 0.00 KM |
Nearby Transport
| Name | NLC | TLC | Distance |
|---|---|---|---|
| Earlsfield | 5584 | EAD | 1.80 KM |
| Wimbledon | 5578 | WIM | 1.95 KM |
| Haydons Road | 5289 | HYR | 2.18 KM |
| Putney | 5603 | PUT | 2.91 KM |
| Wandsworth Town | 5576 | WNT | 3.03 KM |
Nearby Listings
| Address | Price | Type | Score | Distance |
|---|---|---|---|---|
| Melrose Avenue, London | £ 550,000 | BUY | 6 / 10 | 0.00 KM |
| Melrose Avenue, London, SW19 | £ 425,000 | BUY | 7 / 10 | 0.04 KM |
| Melrose Avenue, London, SW19 | £ 475,000 | BUY | 7 / 10 | 0.04 KM |
| Havana Road, Wimbledon Park, London, SW19 | £ 1,100,000 | BUY | 7 / 10 | 0.11 KM |
| Melrose, Wimbledon Park, London, SW19 | £ 1,275,000 | BUY | 7 / 10 | 0.11 KM |
Nearby Properties
| Address | Price | Distance |
|---|---|---|
| 107 Revelstoke Road | £ 930,000 | 0.07 KM |
| 111 Revelstoke Road | £ 115,000 | 0.07 KM |
| 153 Revelstoke Road | £ 384,000 | 0.07 KM |
| 115 Revelstoke Road | £ 1,410,000 | 0.07 KM |
| 131 Revelstoke Road | £ 764,000 | 0.07 KM |