Cedar Close, Bagshot, Surrey, GU19
Seymours logo

Cedar Close, Bagshot, Surrey, GU19

By Seymours

£ 599,995

Reviews

3 out of 5 stars

Seymours says ..

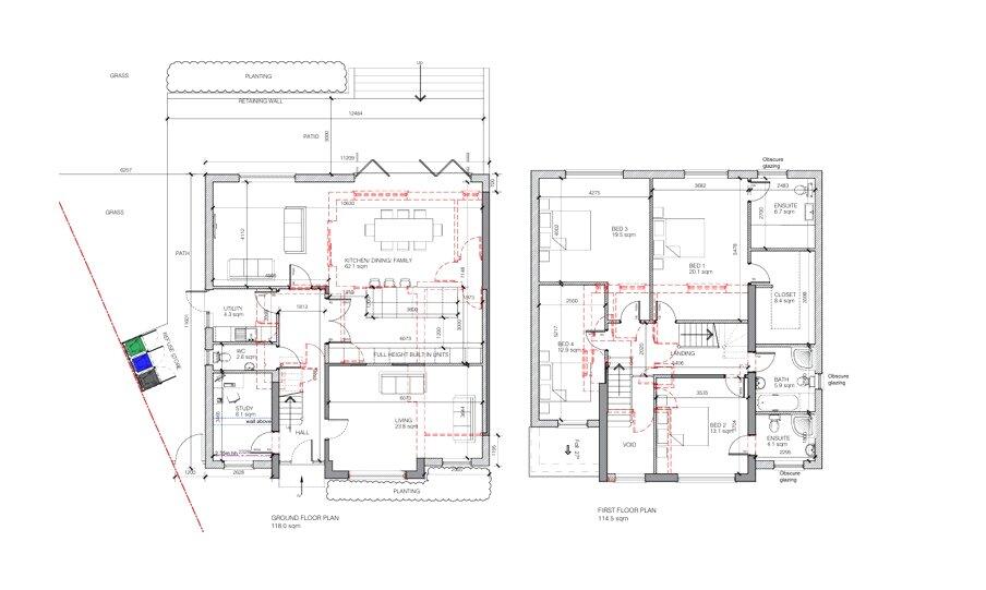
Occupying a generous corner plot, this well-presented three bedroom detached home, which benefits from approved planning for a substantial five bedroomed detached home. No onward chain. Situated in the highly sought-after Cedar Close, the property falls within walking distance of Bag...

Property Oracle says ..

This detached property in Bagshot offers a blend of comfortable living space and a generous garden. The house features three bedrooms and one bathroom, making it suitable for families or couples. The interior is generally well-maintained, with a modern kitchen and bathrooms. The property benefits from its proximity to local schools and transportation links, enhancing its appeal to commuters and families. While the property is in good condition, some areas could benefit from cosmetic updates to maximize its value. The large garden is a significant asset, providing ample outdoor space. Overall, this property presents a solid opportunity for buyers seeking a well-located and spacious home in Surrey.

Therefore, we give this property 7 / 10. *Disclaimer: This is our option and does constitute a recommendation or financial advice. Do your own research. *

Price
7
Condition
7
Location
7
Land
8
Bedrooms
3
Bathrooms
1
Sqft (est)
1,251.00

The heatmap indicates the level of crime in the area. The color of the heatmap indicates the crime severity and recency.

Metrics Year-on-Year

Average area value
1,043,333.00 £
Increased by 83.77 %
from 567,724.00 £
Est sale value
1,651,320.00 £
Increased by 225.12 %
from 507,906.00 £
Average area rental value
6,842.00 £/mo
Increased by 222.89 %
from 2,119.00 £/mo
Est letting value
10,008.00 £/mo
Increased by 700.00 %
from 1,251.00 £/mo
Est rental Yield
7.87 %
Increased by 75.67 %
from 4.48 %
Crime Rate
14.00 %
Unchanged by 0.00 %
from 14.00 %

Agent Activity

  • Seymours created the listing.

Nearby Schools

NameTypeOfstedDistance
Bagshot Infant SchoolCommunity SchoolGood0.15 KM
Bagshot Infant School & Sure Start Children'S CentreChildren's Centre0.15 KM
Connaught Junior SchoolAcademy ConverterGood0.64 KM
Hammond SchoolAcademy ConverterGood1.89 KM
Hall Grove SchoolOther Independent School1.97 KM

Images

Picture 7 Picture 6 Picture 4 Picture 5 Picture 1 Picture 2 Picture 3 Picture 13 Picture 16 Picture 8 Picture 9 Picture 10 Picture 11 Picture 12 Picture 14 Picture 15 Picture 17 Picture 18 Picture 19 Picture 20 Approved Planning Approved Planning

Nearby Streets

NameAverage PriceAverage SqftDistance
Cedar Court £ 350,00000.00 KM
Park Street £ 000.00 KM
Woodside Close £ 000.00 KM
Jacks £ 299,00000.00 KM
Mill Close £ 000.00 KM

Nearby Transport

NameNLCTLCDistance
Bagshot5681BAG0.78 KM
Ascot (Berks)5666ACT5.57 KM
Camberley5682CAM6.15 KM
Martins Heron5692MAO6.32 KM
Sunningdale5671SNG7.62 KM

Nearby Listings

AddressPriceTypeScoreDistance
Cedar Close, Bagshot, Surrey, GU19 £ 599,995BUY7 / 100.00 KM
Cedar Close, Bagshot, Surrey £ 280,000BUY7 / 100.07 KM
Cedar Close, Bagshot £ 295,000BUY7 / 100.07 KM
Cedar Close, Bagshot, Surrey, GU19 £ 700,000BUY7 / 100.09 KM
High Street, BAGSHOT, GU19 £ 575,000BUY8 / 100.10 KM

Nearby Properties

AddressPriceDistance
10 Cedar Close £ 435,0000.01 KM
4 Cedar Close £ 605,0000.01 KM
28 Cedar Close £ 425,0000.01 KM
20 Cedar Close £ 510,0000.01 KM
51 Cedar Close £ 185,0000.09 KM