Complete says ..
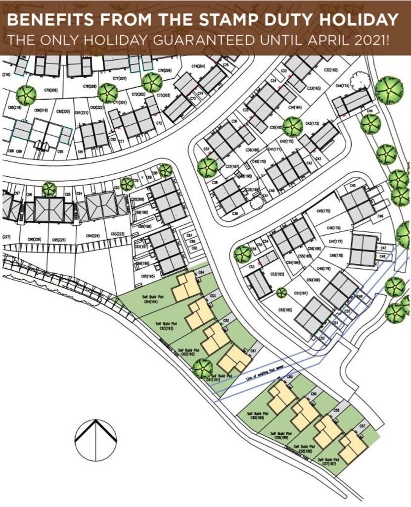
BENEFITS FROM THE STAMP DUTY HOLIDAY | A rare opportunity to purchase a fully serviced self-build plot located in the highly desirable area of Kingsteignton. Each of the plots ideally suits a split level 4 bedroom detached family home. Contact our team to find out more.
Property Oracle says ..
This listing presents a self-build plot located on Vicarage Hill in Kingsteignton East, Devon. The land is part of a new development, with plots clearly marked and serviced for construction. The provided plot measures 259.95 square meters (approximately 2800 square feet). Site plans and architectural drawings indicate that planning permission allows for a two-story four-bedroom detached house.
The plot benefits from its situation in Kingsteignton. Nearby amenities include schools (Primary and Secondary, with varying Ofsted ratings) and a railway station providing links to Newton Abbot and beyond. The proximity to Newton Abbot enhances its attractiveness; however, the detailed street-level location impacts the exact assessment of the immediate environment.
The photographs indicate a plot of land that is largely undeveloped. The land shows signs of initial preparation and infrastructure, but a house is not yet built. Consequently, judging the overall quality and condition is limited to the groundwork completed. The value of the listing hinges heavily on the cost of building a house and any additional costs associated with the plot itself. The selling price is in line with what one might expect to pay for serviced plot of this size in this part of Devon; however, the total cost of the complete project including building would be significantly higher. Further information regarding specific services, any associated fees, and the state of the planning permission is required for a comprehensive assessment of its market worth.
Therefore, we give this property 6 / 10. *Disclaimer: This is our option and does constitute a recommendation or financial advice. Do your own research. *
- Price
- 7
- Condition
- 4
- Location
- 7
- Land
- 6
- Bedrooms
- 0
- Bathrooms
- 0
The heatmap indicates the level of crime in the area. The color of the heatmap indicates the crime severity and recency.
Metrics Year-on-Year
- Average area value
- 267,143.00 £Decreased by 13.18 %
- Average area rental value
- 1,280.00 £/moIncreased by 3.64 %
- Est rental Yield
- 5.75 %Increased by 19.29 %
- Crime Rate
- 9.00 %Unchanged by 0.00 %
Agent Activity
Complete marked this listing as sold.
Complete created the listing.
Nearby Schools
| Name | Type | Ofsted | Distance |
|---|---|---|---|
| St Michael'S Church Of England Primary School | Voluntary Controlled School | Requires improvement | 0.72 KM |
| Rydon Primary School | Academy Converter | Good | 0.85 KM |
| Teign School | Academy Converter | Requires improvement | 1.63 KM |
| Kingsteignton School | Free Schools | Good | 1.81 KM |
| Glendinning Academy | Free Schools Special | 1.90 KM |
Images
Nearby Streets
| Name | Average Price | Average Sqft | Distance |
|---|---|---|---|
| Winston Close | £ 0 | 0 | 0.00 KM |
| Teignmouth Road | £ 400,000 | 0 | 0.00 KM |
| Honeywell Road | £ 0 | 0 | 0.00 KM |
| Berry Lane | £ 0 | 0 | 0.00 KM |
| Crossley Moor Road | £ 0 | 0 | 0.00 KM |
Nearby Transport
| Name | NLC | TLC | Distance |
|---|---|---|---|
| Newton Abbot | 3426 | NTA | 2.16 KM |
| Torre | 3432 | TRR | 9.41 KM |
Nearby Listings
| Address | Price | Type | Score | Distance |
|---|---|---|---|---|
| Vicarage Hill, Kingsteignton, Newton Abbot | £ 700,000 | BUY | 8 / 10 | 0.00 KM |
| Kings Gate, Vicarage Hill | £ 100,000 | BUY | 6 / 10 | 0.00 KM |
| Vicarage Hill, Kingsteignton, Newton Abbot, Devon, TQ12 | £ 220,000 | BUY | 6 / 10 | 0.00 KM |
| 70 Teign View, Kingsteignton | £ 700,000 | BUY | 6 / 10 | 0.00 KM |
| Kings Gate, Vicarage Hill | £ 100,000 | BUY | Unknown | 0.00 KM |
Nearby Properties
| Address | Price | Distance |
|---|---|---|
| 7 Vicarage Hill | £ 290,000 | 0.00 KM |
| 20 Vicarage Hill | £ 242,500 | 0.00 KM |
| 29a Vicarage Hill | £ 160,000 | 0.00 KM |
| Langmead | £ 445,000 | 0.00 KM |
| 29 Vicarage Hill | £ 375,000 | 0.00 KM |