North Sudley Road, Aigburth, Liverpool, L17
By Move Residential
£ 550,000
Reviews
4 out of 5 stars
Move Residential says ..
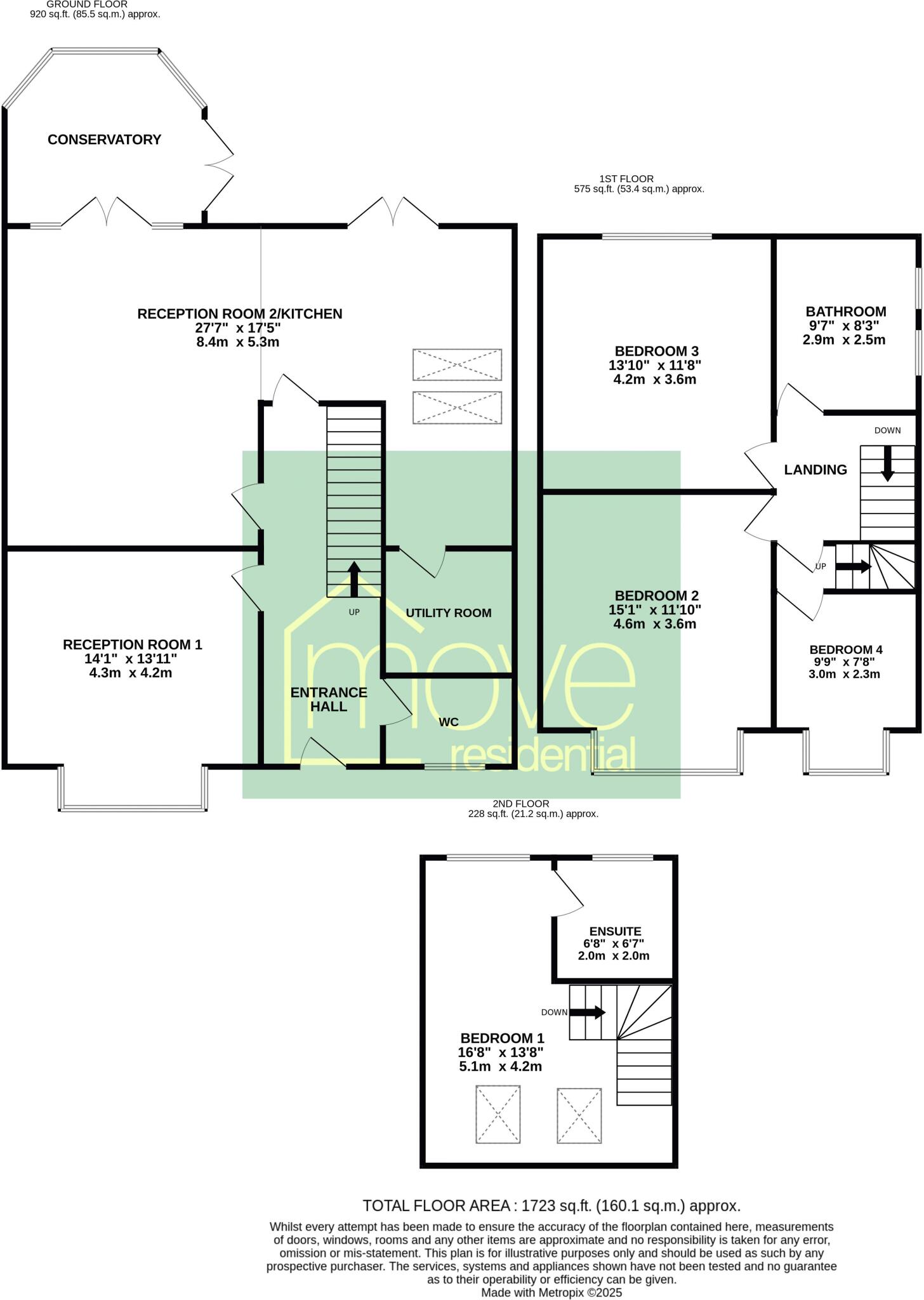
This truly exceptional four bedroom semi detached residence, enjoying an enviable location on North Sudley Road in the highly sought-after suburb of Aigburth, L17, is proudly showcased to the sales market courtesy of appointed agents Move Residential. This property has been substantially extended...
Property Oracle says ..
The property is a 4-bedroom semi-detached house located in a desirable area of Liverpool. It is close to highly-rated schools and has good transport links. The property is in excellent condition, having been recently modernised and well-maintained. It benefits from a garden. The list price is higher than the average for the area, but may be justified given its condition and location. More information on the property size would be needed to accurately assess the price per square foot.
Therefore, we give this property 8 / 10. *Disclaimer: This is our option and does constitute a recommendation or financial advice. Do your own research. *
- Price
- 7
- Condition
- 9
- Location
- 9
- Land
- 7
- Bedrooms
- 4
- Bathrooms
- 2
The heatmap indicates the level of crime in the area. The color of the heatmap indicates the crime severity and recency.
Metrics Year-on-Year
- Average area value
- 256,875.00 £Decreased by 25.90 %
- Average area rental value
- 1,030.00 £/moIncreased by 8.88 %
- Est rental Yield
- 4.81 %Increased by 47.09 %
- Crime Rate
- 1.00 %Unchanged by 0.00 %
Agent Activity
Move Residential created the listing.
Nearby Schools
| Name | Type | Ofsted | Distance |
|---|---|---|---|
| Sudley Infant School | Community School | Outstanding | 0.42 KM |
| Sudley Junior School | Community School | Good | 0.68 KM |
| St Margaret'S Church Of England Academy | Academy Converter | Good | 0.70 KM |
| Palmerston School | Community Special School | Outstanding | 0.81 KM |
| Liverpool College | Academy Sponsor Led | Outstanding | 1.06 KM |
Images
Nearby Streets
| Name | Average Price | Average Sqft | Distance |
|---|---|---|---|
| Victoria Close | £ 0 | 0 | 0.00 KM |
| Milner Road | £ 255,000 | 0 | 0.00 KM |
| Cromer Road | £ 290,000 | 0 | 0.00 KM |
| Hillview | £ 0 | 0 | 0.00 KM |
| Grosvenor Court | £ 0 | 0 | 0.00 KM |
Nearby Transport
| Name | NLC | TLC | Distance |
|---|---|---|---|
| Aigburth | 2255 | AIG | 1.20 KM |
| Mossley Hill | 2171 | MSH | 1.71 KM |
| St Michaels | 2248 | STM | 2.49 KM |
| West Allerton | 2266 | WSA | 2.66 KM |
| Cressington | 2225 | CSG | 2.70 KM |
Nearby Listings
| Address | Price | Type | Score | Distance |
|---|---|---|---|---|
| North Sudley Road, Aigburth, Liverpool, L17 | £ 550,000 | BUY | 8 / 10 | 0.00 KM |
| North Sudley Road, Aigburth, Liverpool L17 | £ 100,000 | BUY | 5 / 10 | 0.06 KM |
| North Sudley Road, Liverpool, L17 | £ 475,000 | BUY | 7 / 10 | 0.10 KM |
| Elmswood Road, Liverpool, Merseyside, L17 | £ 350,000 | BUY | 5 / 10 | 0.12 KM |
| Elmswood Road, Aigburth, Liverpool, L17 | £ 375,000 | BUY | 6 / 10 | 0.13 KM |
Nearby Properties
| Address | Price | Distance |
|---|---|---|
| 25 North Sudley Road | £ 355,000 | 0.01 KM |
| 23 North Sudley Road | £ 355,725 | 0.01 KM |
| 31 North Sudley Road | £ 180,000 | 0.01 KM |
| 15 North Sudley Road | £ 220,000 | 0.01 KM |
| 27 North Sudley Road | £ 232,000 | 0.04 KM |