Goodfellows says ..
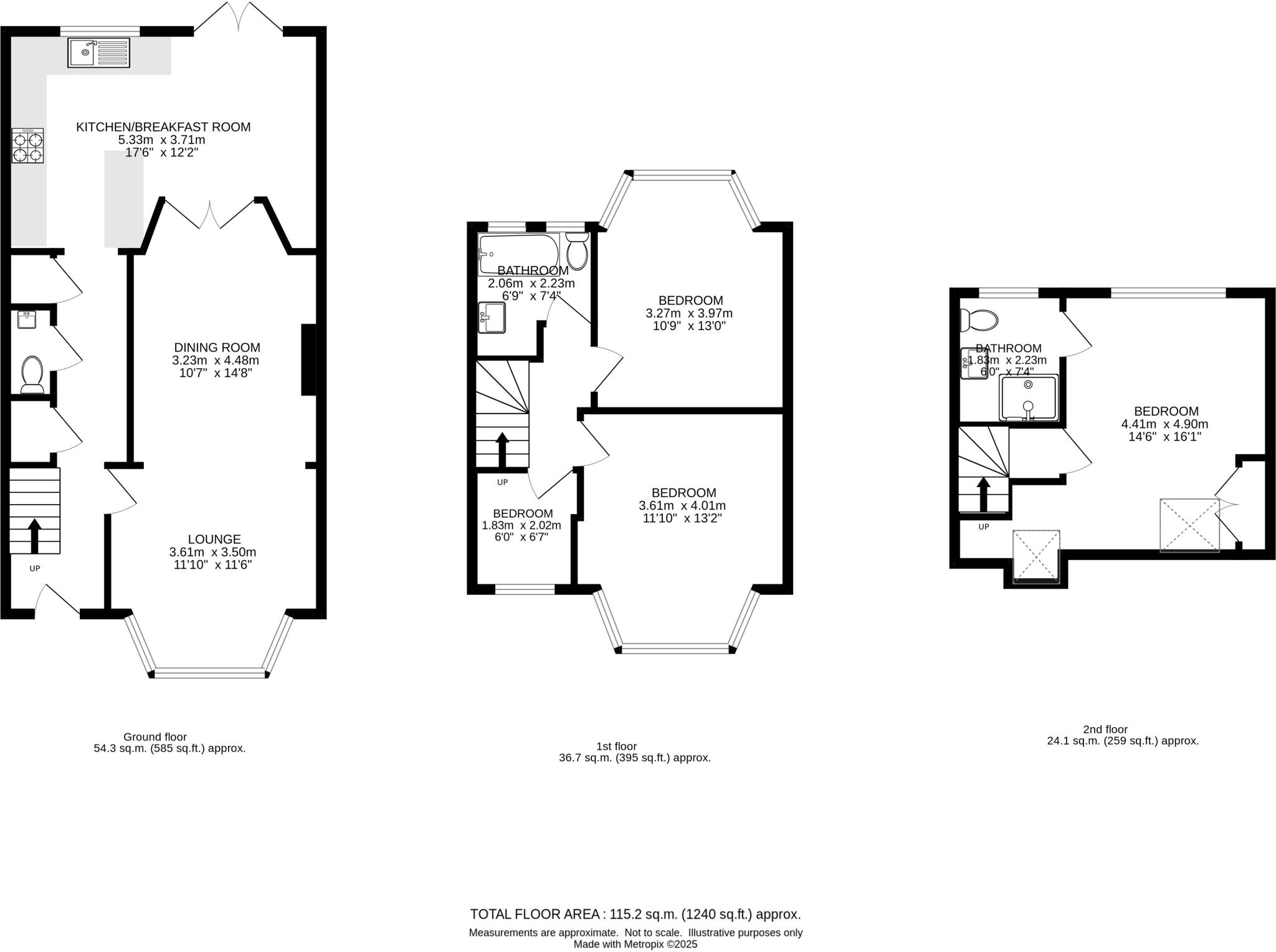
Situated on the ever popular Dudley Drive, is this ideal family home, with two receptions, an extended kitchen diner, four bedrooms and two bathrooms. Ideally located for local transports, shops and a plethora of schooling options. The first floor hosts three generous bedrooms and a...
Property Oracle says ..
This is a four-bedroom terraced house in Lower Morden, London. The property benefits from a modern kitchen, two bathrooms, and a garden. The property is located within reasonable distance of schools and transport links. The property appears to be in good condition and well-maintained. The asking price is slightly above the average for the street, but is justifiable given the size and condition of the property.
Therefore, we give this property 6 / 10. *Disclaimer: This is our option and does constitute a recommendation or financial advice. Do your own research. *
- Price
- 6
- Condition
- 8
- Location
- 7
- Land
- 6
- Bedrooms
- 4
- Bathrooms
- 2
- Sqft (est)
- 1,240.00
The heatmap indicates the level of crime in the area. The color of the heatmap indicates the crime severity and recency.
Metrics Year-on-Year
- Average area value
- 575,778.00 £Increased by 14.54 %
- Est sale value
- 626,200.00 £Decreased by 6.48 %
- Average area rental value
- 2,096.00 £/moDecreased by 8.39 %
- Est letting value
- 1,240.00 £/moDecreased by 50.00 %
- Est rental Yield
- 4.37 %Decreased by 19.96 %
- Crime Rate
- 10.00 %Unchanged by 0.00 %
Agent Activity
Goodfellows created the listing.
Nearby Schools
| Name | Type | Ofsted | Distance |
|---|---|---|---|
| Brookfield Primary Academy | Academy Converter | Good | 0.69 KM |
| Aragon Primary School | Academy Converter | Good | 0.82 KM |
| Hatfeild Primary School | Community School | Good | 0.85 KM |
| Lower Morden Children'S Centre | Children's Centre Linked Site | 0.99 KM | |
| Cheam Park Farm Primary Academy | Academy Converter | Outstanding | 1.22 KM |
Images
Nearby Streets
| Name | Average Price | Average Sqft | Distance |
|---|---|---|---|
| Cardinal Close | £ 0 | 0 | 0.00 KM |
| St Cecilia's Close | £ 0 | 0 | 0.00 KM |
| Beeches Road | £ 465,438 | 0 | 0.00 KM |
| Poplar Road | £ 606,250 | 0 | 0.00 KM |
| Elm Road West | £ 0 | 0 | 0.00 KM |
Nearby Transport
| Name | NLC | TLC | Distance |
|---|---|---|---|
| St Helier | 5290 | SIH | 1.67 KM |
| Morden South | 5291 | MDS | 1.92 KM |
| South Merton | 5292 | SMO | 2.13 KM |
| Sutton Common | 5436 | SUC | 2.21 KM |
| West Sutton | 5293 | WSU | 2.37 KM |
Nearby Listings
| Address | Price | Type | Score | Distance |
|---|---|---|---|---|
| Dudley Drive, Morden, SM4 | £ 650,000 | BUY | 6 / 10 | 0.00 KM |
| Stonecot Hill, Sutton | £ 360,000 | BUY | Unknown | 0.07 KM |
| Dudley Drive, Morden, SM4 | £ 575,000 | BUY | 6 / 10 | 0.08 KM |
| Stonecot Hill, Sutton, SM3 | £ 385,000 | BUY | 7 / 10 | 0.11 KM |
| Nova Mews, Sutton | £ 550,000 | BUY | 8 / 10 | 0.14 KM |
Nearby Properties
| Address | Price | Distance |
|---|---|---|
| 19 Dudley Drive | £ 390,000 | 0.00 KM |
| 9 Dudley Drive | £ 442,500 | 0.04 KM |
| 22 Dudley Drive | £ 420,000 | 0.04 KM |
| 1 Dudley Drive | £ 250,000 | 0.04 KM |
| 30 Dudley Drive | £ 359,950 | 0.04 KM |