98 St Magdalenes, Linlithgow, EH49
By Halliday Homes
£ 215,000
Reviews
3 out of 5 stars
Halliday Homes says ..
An outstanding opportunity to acquire a characterful home in a prestigious historic conversion, offering the perfect blend of heritage charm and modern convenience in the heart of Linlithgow.
Property Oracle says ..
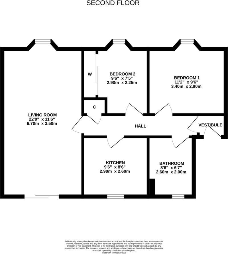
This is a well-presented two-bedroom apartment in Linlithgow, offering modern living in a historic setting. The property benefits from its convenient location, being close to local amenities and transportation links. The interior is in good condition, with a modern kitchen and bathroom. While the apartment does not have a garden, its location provides access to scenic views and nearby parks. The price is reasonable for the area and the condition of the property, making it an attractive option for potential buyers.
Therefore, we give this property 6 / 10. *Disclaimer: This is our option and does constitute a recommendation or financial advice. Do your own research. *
- Price
- 7
- Condition
- 8
- Location
- 7
- Land
- 3
- Bedrooms
- 2
- Bathrooms
- 1
- Sqft (est)
- 567.54
The heatmap indicates the level of crime in the area. The color of the heatmap indicates the crime severity and recency.
Metrics Year-on-Year
- Average area value
- 712,500.00 £Increased by 63.65 %
- Est sale value
- 202,044.24 £Increased by 11.95 %
- Average area rental value
- 1,330.00 £/moIncreased by 17.28 %
- Est letting value
- 0.00 £/mo
- Est rental Yield
- 2.24 %Decreased by 28.43 %
- Crime Rate
- 0.00 %
Agent Activity
Halliday Homes created the listing.
Images
Nearby Streets
| Name | Average Price | Average Sqft | Distance |
|---|---|---|---|
| Dawson Court | £ 0 | 0 | 0.00 KM |
| St Michael's Lane | £ 399,000 | 0 | 0.00 KM |
| Regent Centre | £ 0 | 0 | 0.00 KM |
| Barons Hill Avenue | £ 336,500 | 0 | 0.00 KM |
| Oatlands Park | £ 540,000 | 0 | 0.00 KM |
Nearby Transport
| Name | NLC | TLC | Distance |
|---|---|---|---|
| Linlithgow | 9438 | LIN | 0.36 KM |
| Livingston North | 9371 | LSN | 9.91 KM |
Nearby Listings
| Address | Price | Type | Score | Distance |
|---|---|---|---|---|
| 98 St Magdalenes, Linlithgow, EH49 | £ 215,000 | BUY | 6 / 10 | 0.00 KM |
| 116 St. Magdalenes, Linlithgow, EH49 6AQ | £ 230,000 | BUY | 6 / 10 | 0.16 KM |
| Madderfield Mews, Linlithgow, EH49 | £ 190,000 | BUY | 6 / 10 | 0.17 KM |
| Madderfield Mews, Linlithgow, EH49 | £ 179,000 | BUY | 6 / 10 | 0.20 KM |
| Regent Square, Linlithgow, EH49 | £ 160,000 | BUY | Unknown | 0.21 KM |