Lovelle says ..
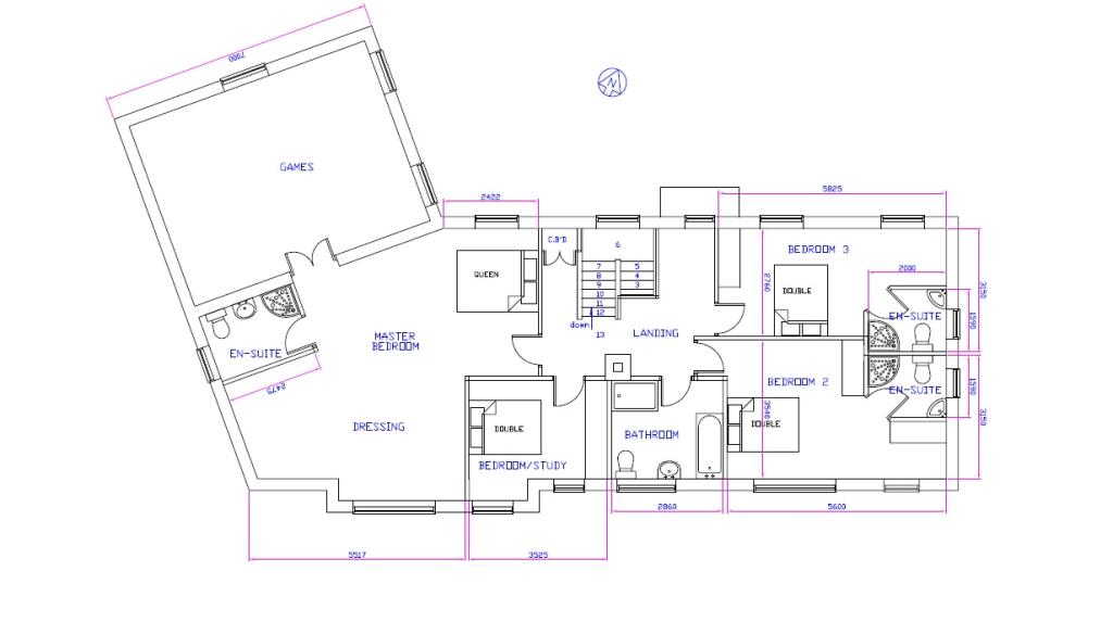
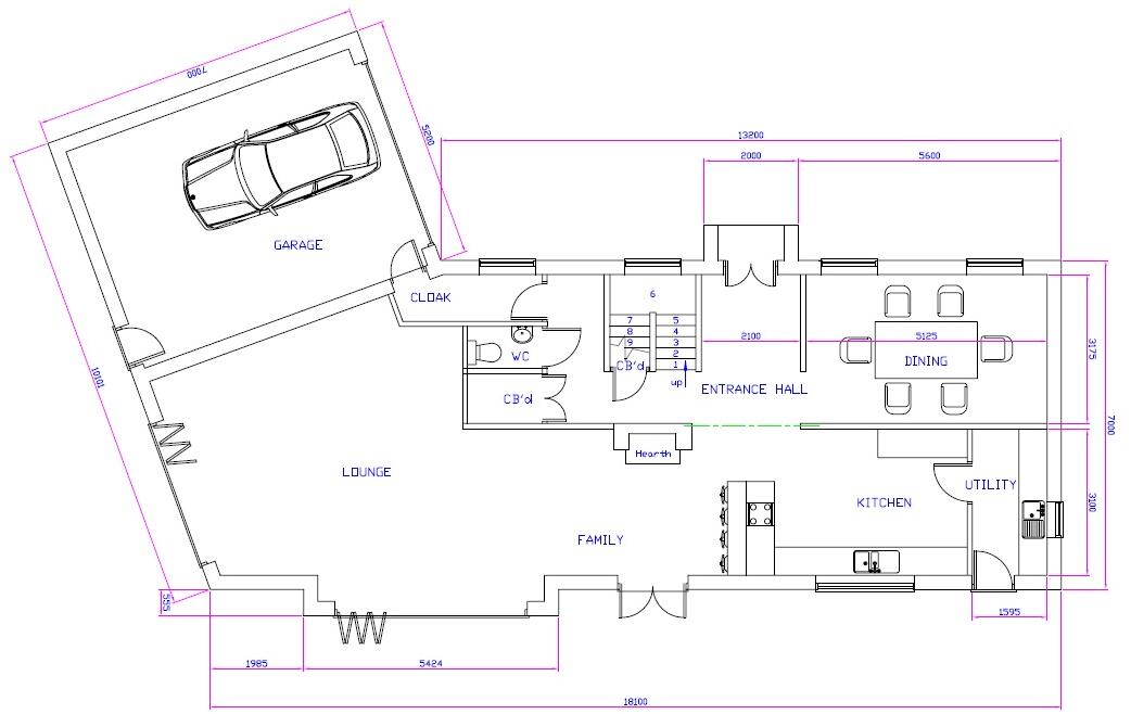
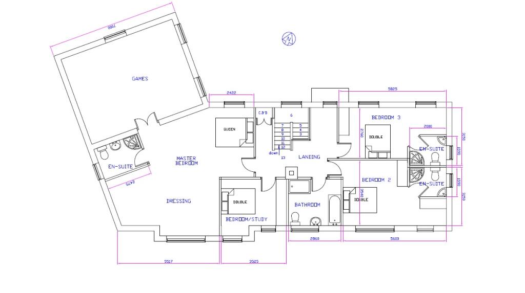
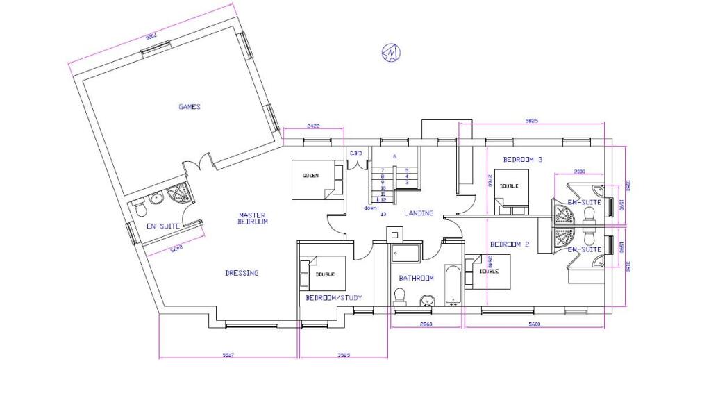
Located in the stunning market town of Louth this rare opportunity to acquire a building plot with full planning permission granted for a executive four bedroom family home. The current plans consist of entrance hall, cloakroom WC, dining room, open plan kitchen lounge family room, utility roo...
Property Oracle says ..
This listing is for a building plot with full planning permission for a four-bedroom, four-bathroom detached house on Grimsby Road, Louth, Lincolnshire. The architectural drawings show a substantial property, planned with a garage and what looks like a well-designed layout of living spaces across two floors. The inclusion of multiple en-suite bathrooms is a potentially appealing feature for families or those seeking multiple occupants. The plot itself currently consists of cleared land, shown in the available photos. The location in Louth benefits from being near several schools with good Ofsted ratings including King Edward VI Grammar School, Greenwich House School and Louth Kidgate Primary Academy. However, detailed information regarding the exact plot size in square feet is missing. The listing price of £125,000 should be viewed cautiously due to the lack of details on the property’s actual size when completed. Price comparison with nearby properties is difficult due to the inconsistency and lack of key details for other listed houses (e.g. square footage). The price would need to be evaluated based on the estimated size of the finished property and compared with local new-build prices. Overall, it offers potential value, but buyers should carry out thorough due diligence before purchasing.
Therefore, we give this property 4 / 10. *Disclaimer: This is our option and does constitute a recommendation or financial advice. Do your own research. *
- Price
- 6
- Condition
- 1
- Location
- 7
- Land
- 4
- Bedrooms
- 4
- Bathrooms
- 4
The heatmap indicates the level of crime in the area. The color of the heatmap indicates the crime severity and recency.
Metrics Year-on-Year
- Average area value
- 277,216.00 £Increased by 5.33 %
- Average area rental value
- 940.00 £/moIncreased by 21.29 %
- Est rental Yield
- 4.07 %Increased by 15.30 %
- Crime Rate
- 0.00 %
Agent Activity
Lovelle created the listing.
Nearby Schools
| Name | Type | Ofsted | Distance |
|---|---|---|---|
| King Edward Vi Grammar School | Academy Converter | 0.83 KM | |
| Greenwich House School | Other Independent School | Good | 1.09 KM |
| Louth Kidgate Primary Academy | Academy Converter | Outstanding | 1.28 KM |
| St Michael'S Church Of England School, Louth | Voluntary Controlled School | Good | 1.83 KM |
| Louth Academy | Academy Sponsor Led | 1.89 KM |
Images
Nearby Streets
| Name | Average Price | Average Sqft | Distance |
|---|---|---|---|
| Russell Danby Drive | £ 0 | 0 | 0.00 KM |
| St Mary's Lane | £ 500,000 | 0 | 0.00 KM |
| Mount Olivet | £ 0 | 0 | 0.00 KM |
| Goodwood Close | £ 0 | 0 | 0.00 KM |
| Westgate Place | £ 0 | 0 | 0.00 KM |
Nearby Listings
| Address | Price | Type | Score | Distance |
|---|---|---|---|---|
| Grimsby Road, Louth, LN11 | £ 125,000 | BUY | 4 / 10 | 0.00 KM |
| Grimsby Road, Louth, LN11 | £ 125,000 | BUY | Unknown | 0.00 KM |
| Grimsby Road, Louth LN11 0ED | £ 550,000 | BUY | 7 / 10 | 0.05 KM |
| 3 Grimsby Road, Louth, LN11 0ED | £ 425,000 | BUY | Unknown | 0.05 KM |
| GRIMSBY ROAD, LOUTH | £ 315,000 | BUY | Unknown | 0.11 KM |
Nearby Properties
| Address | Price | Distance |
|---|---|---|
| 17 Grimsby Road | £ 99,950 | 0.04 KM |
| 39 Grimsby Road | £ 150,000 | 0.04 KM |
| 19 Grimsby Road | £ 136,000 | 0.04 KM |
| 21 Grimsby Road | £ 90,000 | 0.04 KM |
| 31 Grimsby Road | £ 225,000 | 0.04 KM |