Hawkins Close, Harrow, HA1 4DJ
By Rouge Property
£ 650,000
Reviews
3 out of 5 stars
Rouge Property says ..
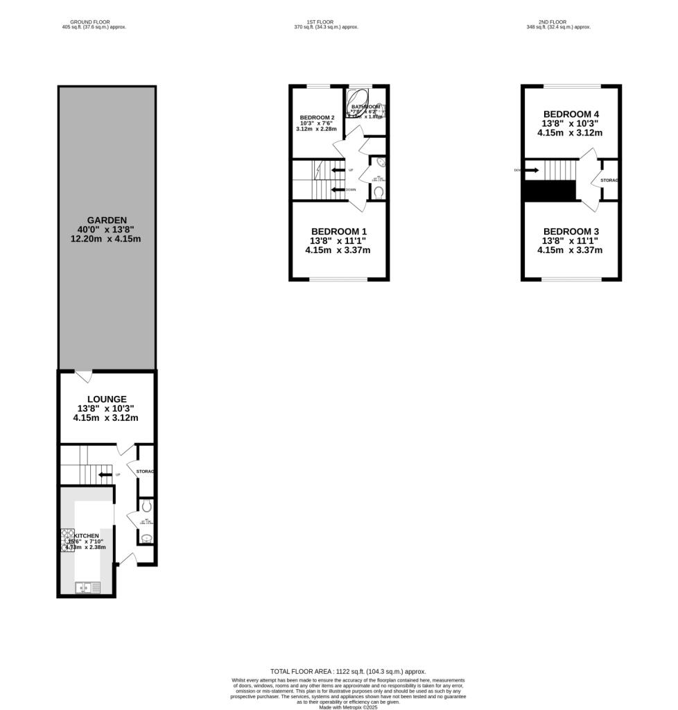
Rouge are pleased to present this four-bedroom terrace family home arranged over three floors. The property comprises four bedrooms, guest WC, gas central heating, bathrooom and double glazing, private rear garden and off street parking.
Property Oracle says ..
The property is located in West Harrow, within the HA1 4DJ postcode. The area benefits from relatively close proximity to several Underground stations, including Harrow-on-the-Hill (1.10 KM), Harrow & Wealdstone (2.13 KM), and also a number of Chiltern Railway and London Overground stations within a 3km radius. Several highly-rated primary and secondary schools are also within a kilometer of the property, making it potentially attractive to families. However, without specific details on the property’s size (SQFT and Plot size), a comprehensive analysis of the property’s value is difficult. The average house price in the area is significantly lower than the list price of £650,000, suggesting that this property may be overpriced compared to other properties in the area. The provided images show the property to be in a generally livable condition, though some minor cosmetic upgrades may improve its overall appeal. The property includes a small garden area.
Therefore, we give this property 6 / 10. *Disclaimer: This is our option and does constitute a recommendation or financial advice. Do your own research. *
- Price
- 4
- Condition
- 7
- Location
- 8
- Land
- 6
- Bedrooms
- 4
- Bathrooms
- 1
The heatmap indicates the level of crime in the area. The color of the heatmap indicates the crime severity and recency.
Metrics Year-on-Year
- Average area value
- 341,429.00 £Increased by 9.95 %
- Average area rental value
- 875.00 £/moDecreased by 18.53 %
- Est rental Yield
- 3.08 %Decreased by 25.78 %
- Crime Rate
- 3.00 %Unchanged by 0.00 %
Agent Activity
Rouge Property created the listing.
Nearby Schools
| Name | Type | Ofsted | Distance |
|---|---|---|---|
| St Anselm'S Catholic Primary School | Voluntary Aided School | Outstanding | 0.69 KM |
| The John Lyon School | Other Independent School | 0.80 KM | |
| Whitmore High School | Community School | Outstanding | 0.84 KM |
| Roxeth Mead School | Other Independent School | Good | 0.86 KM |
| Vaughan Primary School | Community School | Outstanding | 0.91 KM |
Images
Nearby Streets
| Name | Average Price | Average Sqft | Distance |
|---|---|---|---|
| Marshall Close | £ 495,000 | 0 | 0.00 KM |
| Pool Road | £ 320,000 | 0 | 0.00 KM |
| Bessborough Road | £ 0 | 0 | 0.00 KM |
| Copperfields | £ 0 | 0 | 0.00 KM |
| Grafton Road | £ 360,000 | 0 | 0.00 KM |
Nearby Transport
| Name | NLC | TLC | Distance |
|---|---|---|---|
| Harrow-On-The-Hill | 598 | HOH | 1.10 KM |
| Harrow And Wealdstone | 1397 | HRW | 2.13 KM |
| Sudbury Hill Harrow | 1484 | SDH | 2.46 KM |
| Northolt Park | 1478 | NLT | 2.62 KM |
| Headstone Lane | 1434 | HDL | 3.02 KM |
Nearby Listings
| Address | Price | Type | Score | Distance |
|---|---|---|---|---|
| Hawkins Close, Harrow | £ 525,000 | BUY | 5 / 10 | 0.05 KM |
| Butler Road, Harrow | £ 275,000 | BUY | 6 / 10 | 0.12 KM |
| Butler Road, West Harrow | £ 359,950 | BUY | 6 / 10 | 0.12 KM |
| Butler Road, Harrow, HA1 | £ 300,000 | BUY | 6 / 10 | 0.15 KM |
| Butler Road, Harrow, Middlesex | £ 775,000 | BUY | 7 / 10 | 0.15 KM |
Nearby Properties
| Address | Price | Distance |
|---|---|---|
| 62 Hawkins Close | £ 230,000 | 0.00 KM |
| 25 Hawkins Close | £ 397,000 | 0.00 KM |
| 4 Hawkins Close | £ 275,000 | 0.00 KM |
| 31 Hawkins Close | £ 268,000 | 0.00 KM |
| 35 Hawkins Close | £ 250,000 | 0.00 KM |