Albacore Avenue, Warsash, Hampshire, SO31
By Charters
£ 280,000
Reviews
3 out of 5 stars
Charters says ..
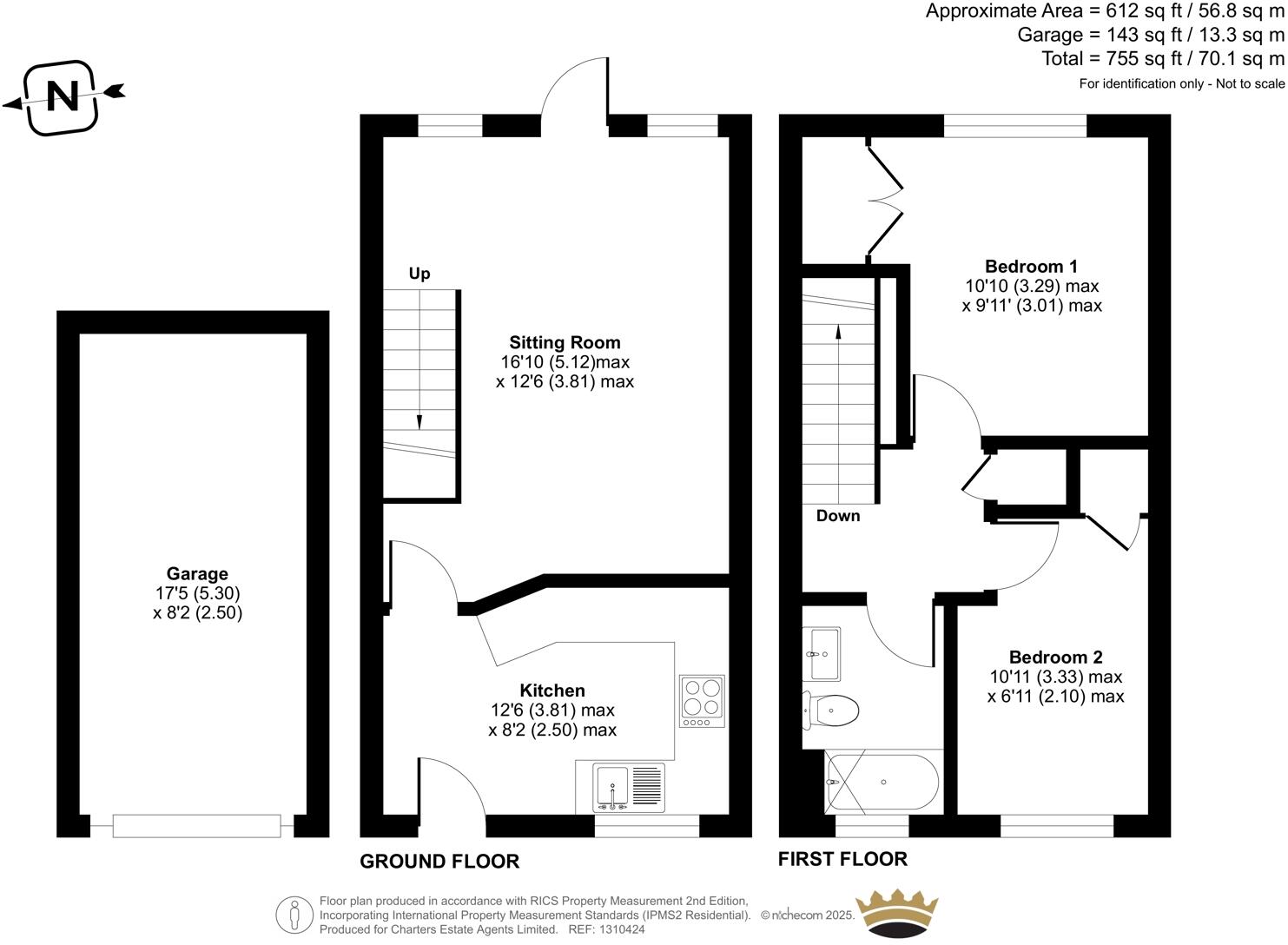
Tucked away along a peaceful private pathway in the desirable coastal village of Warsash, this beautifully presented two-bedroom mid-terraced home offers a perfect blend of comfort and everyday convenience.
Property Oracle says ..
Therefore, we give this property 7 / 10. *Disclaimer: This is our option and does constitute a recommendation or financial advice. Do your own research. *
- Price
- 7
- Condition
- 8
- Location
- 8
- Land
- 7
- Bedrooms
- 2
- Bathrooms
- 1
- Sqft (est)
- 754.55
The heatmap indicates the level of crime in the area. The color of the heatmap indicates the crime severity and recency.
Metrics Year-on-Year
- Average area value
- 691,555.00 £Increased by 13.60 %
- Est sale value
- 316,911.00 £Decreased by 1.18 %
- Average area rental value
- 1,511.00 £/moDecreased by 13.06 %
- Est letting value
- 0.00 £/moDecreased by 100.00 %
- Est rental Yield
- 2.62 %Decreased by 23.62 %
- Crime Rate
- 3.00 %Unchanged by 0.00 %
from 608,749.00 £
from 320,683.75 £
from 1,738.00 £/mo
from 754.55 £/mo
from 3.43 %
from 3.00 %
Agent Activity
Charters created the listing.
Nearby Schools
| Name | Type | Ofsted | Distance |
|---|---|---|---|
| Locks Heath Junior School | Community School | Good | 1.04 KM |
| Locks Heath Infant School | Community School | Outstanding | 1.15 KM |
| Sovereign And Strawberry Meadow Children'S Centre | Children's Centre | 1.29 KM | |
| Hook-With-Warsash Church Of England Academy | Academy Converter | Good | 1.32 KM |
| Brookfield Community School | Community School | Good | 1.42 KM |
Images
Nearby Streets
| Name | Average Price | Average Sqft | Distance |
|---|---|---|---|
| Highfields | £ 775,000 | 0 | 0.00 KM |
| Dibles Road (East) | £ 491,667 | 0 | 0.00 KM |
| Sorrel Close | £ 0 | 0 | 0.00 KM |
| Greenaway Lane | £ 685,000 | 0 | 0.00 KM |
| Dibles Road (West) | £ 550,000 | 0 | 0.00 KM |
Nearby Transport
| Name | NLC | TLC | Distance |
|---|---|---|---|
| Swanwick | 5920 | SNW | 3.17 KM |
| Bursledon | 5927 | BUO | 4.16 KM |
| Hamble | 5947 | HME | 5.46 KM |
| Netley | 5911 | NTL | 6.91 KM |
| Botley | 5894 | BOE | 7.53 KM |
Nearby Listings
| Address | Price | Type | Score | Distance |
|---|---|---|---|---|
| Albacore Avenue, Warsash, Hampshire, SO31 | £ 280,000 | BUY | 7 / 10 | 0.00 KM |
| Albacore Avenue, Warsash, Southampton, Hampshire, SO31 | £ 280,000 | BUY | 7 / 10 | 0.01 KM |
| Albacore Avenue, Warsash, Southampton | £ 289,995 | BUY | 7 / 10 | 0.01 KM |
| Argosy Close, Warsash | £ 385,000 | BUY | 7 / 10 | 0.08 KM |
| Argosy Close, Warsash | £ 280,000 | BUY | 7 / 10 | 0.10 KM |
Nearby Properties
| Address | Price | Distance |
|---|---|---|
| 3 Albacore Avenue | £ 153,000 | 0.01 KM |
| 1 Albacore Avenue | £ 290,000 | 0.01 KM |
| 11 Albacore Avenue | £ 157,500 | 0.01 KM |
| 17 Albacore Avenue | £ 119,950 | 0.01 KM |
| 29 Albacore Avenue | £ 190,000 | 0.01 KM |