102 Hadrians Tower, Rutherford Street, Newcastle upon Tyne NE4 5BJ
By Auction House
£ 95,000
Reviews
3 out of 5 stars
Auction House says ..
Auction Date Commencing on Monday 1st September at 1pm and ending 24 hours later on Tuesday 2nd September at 1pm with Auction House North East Please register to bid via our website - auctionhouse.co.uk/northeast
Property Oracle says ..
Therefore, we give this property 6 / 10. *Disclaimer: This is our option and does constitute a recommendation or financial advice. Do your own research. *
- Price
- 8
- Condition
- 8
- Location
- 9
- Land
- 1
- Bedrooms
- 1
- Bathrooms
- 1
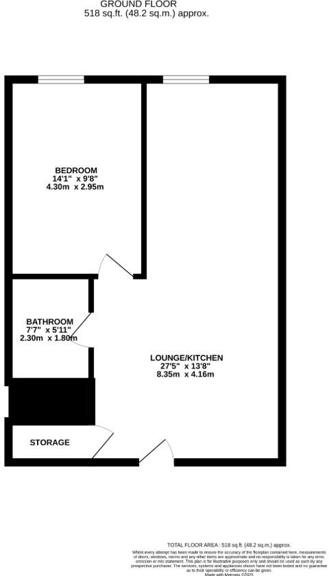
- Sqft (est)
- 558.00
The heatmap indicates the level of crime in the area. The color of the heatmap indicates the crime severity and recency.
Metrics Year-on-Year
- Average area value
- 225,500.00 £Decreased by 13.54 %
- Est sale value
- 126,666.00 £Decreased by 5.81 %
- Average area rental value
- 1,202.00 £/moDecreased by 6.09 %
- Est letting value
- 558.00 £/moUnchanged by 0.00 %
- Est rental Yield
- 6.40 %Increased by 8.66 %
- Crime Rate
- 8.00 %Unchanged by 0.00 %
from 260,800.00 £
from 134,478.00 £
from 1,280.00 £/mo
from 558.00 £/mo
from 5.89 %
from 8.00 %
Agent Activity
Auction House created the listing.
Nearby Schools
| Name | Type | Ofsted | Distance |
|---|---|---|---|
| Callerton Academy | Free Schools | 0.53 KM | |
| Our Lady And St Anne'S Catholic Primary School | Academy Converter | 0.56 KM | |
| Ncg | Further Education | Requires improvement | 0.78 KM |
| North East Futures Utc | University Technical College | 0.84 KM | |
| St Paul'S Cofe Primary School | Voluntary Aided School | Good | 0.89 KM |
Images
Nearby Streets
| Name | Average Price | Average Sqft | Distance |
|---|---|---|---|
| B1311 | £ 0 | 0 | 0.00 KM |
| Cross Villa Place No 3 | £ 135,000 | 0 | 0.00 KM |
| Dispensary Lane | £ 0 | 0 | 0.00 KM |
| Blandford Court | £ 0 | 0 | 0.00 KM |
| Orchard Street | £ 0 | 0 | 0.00 KM |
Nearby Transport
| Name | NLC | TLC | Distance |
|---|---|---|---|
| Newcastle | 7728 | NCL | 0.61 KM |
| Manors | 7603 | MAS | 1.92 KM |
| Dunston | 7744 | DOT | 3.23 KM |
| Metrocentre | 7725 | MCE | 5.02 KM |
| Heworth | 7766 | HEW | 7.64 KM |
Nearby Listings
| Address | Price | Type | Score | Distance |
|---|---|---|---|---|
| 106 Hadrians Tower, Rutherford Street, Newcastle upon Tyne NE4 5BJ | £ 95,000 | BUY | 8 / 10 | 0.00 KM |
| 304 Hadrians Tower, Rutherford Street, Newcastle upon Tyne NE4 5BJ | £ 95,000 | BUY | 6 / 10 | 0.00 KM |
| 102 Hadrians Tower, Rutherford Street, Newcastle upon Tyne NE4 5BJ | £ 95,000 | BUY | 6 / 10 | 0.00 KM |
| Rutherford Street, Newcastle Upon Tyne | £ 215,000 | BUY | 8 / 10 | 0.00 KM |
| Rutherford Street, City Centre, Newcastle Upon Tyne | £ 270,000 | BUY | 6 / 10 | 0.00 KM |
Nearby Properties
| Address | Price | Distance |
|---|---|---|
| 41a Bath Lane | £ 215,000 | 0.06 KM |
| 41b Bath Lane | £ 210,000 | 0.06 KM |
| 59 Thornton Street | £ 59,500 | 0.17 KM |
| 56 Thornton Street | £ 100,000 | 0.17 KM |
| 36 Blackfriars Court | £ 111,000 | 0.18 KM |