Silverweed Road, Emersons Green, BS16
By Homely Bespoke Estate Agents
£ 285,000
Reviews
4 out of 5 stars
Homely Bespoke Estate Agents says ..
Well-appointed 2-bed end of terrace house in Lyde Green. Open plan layout, landscaped south-facing garden, off-road parking. Ideal investment or first home. Close to amenities and transport links. Serene living environment in sought-after area.
Property Oracle says ..
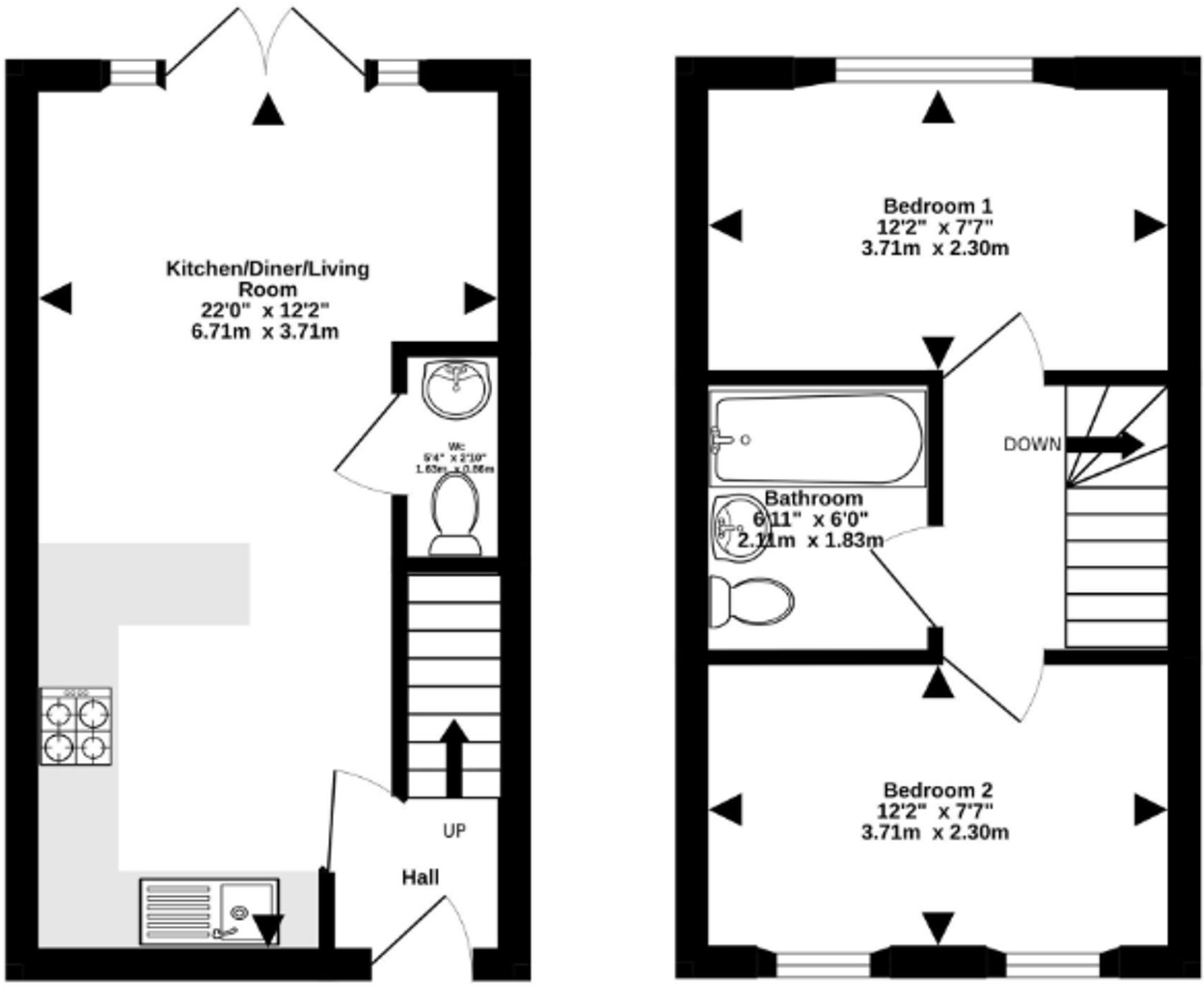
Emersons Green is a popular residential area in South Gloucestershire, known for its family-friendly atmosphere and convenient location. The property is close to several well-regarded primary schools, including Lyde Green Primary School (rated ‘Good’ by Ofsted) and Mangotsfield Church of England Voluntary Controlled Primary School (‘Outstanding’). The proximity to these schools is a significant advantage for families. Furthermore, the area has good transport links, with several train stations within a reasonable distance, providing access to Bristol and other major cities. The average house price in Emersons Green is considerably higher than the list price of this property, suggesting that the location itself is desirable. Based on the provided images, the property appears to be in excellent condition. It is modern, clean, and well-maintained, with recently updated fixtures and fittings. There is no visible evidence of wear and tear or the need for any significant repairs or renovations. The property benefits from a modern kitchen and bathrooms. The property includes a garden, which is a desirable feature for many buyers. While the exact plot size is not specified, the images show a well-maintained, enclosed garden with a patio area and a shed, providing ample space for outdoor activities and relaxation. Considering the property’s excellent condition, desirable location, and inclusion of a garden, the list price of £285,000 appears to be reasonable, particularly when compared to the average price per square foot in the area (£436). While the average house price in Emersons Green is significantly higher, this property is smaller than average and this reflects in the pricing. The nearby comparable properties support this conclusion, with similar properties in the area selling for prices in a similar range.
Therefore, we give this property 8 / 10. *Disclaimer: This is our option and does constitute a recommendation or financial advice. Do your own research. *
- Price
- 8
- Condition
- 9
- Location
- 9
- Land
- 7
- Bedrooms
- 2
- Bathrooms
- 2
- Sqft (est)
- 440.00
The heatmap indicates the level of crime in the area. The color of the heatmap indicates the crime severity and recency.
Metrics Year-on-Year
- Average area value
- 399,497.00 £Decreased by 1.14 %
- Est sale value
- 195,800.00 £Increased by 19.62 %
- Average area rental value
- 1,402.00 £/moDecreased by 1.61 %
- Est letting value
- 440.00 £/moUnchanged by 0.00 %
- Est rental Yield
- 4.21 %Decreased by 0.47 %
- Crime Rate
- 25.00 %Unchanged by 0.00 %
Agent Activity
Homely Bespoke Estate Agents created the listing.
Nearby Schools
| Name | Type | Ofsted | Distance |
|---|---|---|---|
| Lyde Green Primary School | Academy Sponsor Led | Good | 0.99 KM |
| Mangotsfield Church Of England Voluntary Controlled Primary School | Voluntary Controlled School | Outstanding | 1.98 KM |
| Emersons Green Primary School | Community School | Good | 2.34 KM |
| Blackhorse Primary School | Community School | Good | 2.83 KM |
| Mangotsfield School | Academy Sponsor Led | Requires improvement | 2.87 KM |
Images
Nearby Streets
| Name | Average Price | Average Sqft | Distance |
|---|---|---|---|
| Silverweed Road | £ 310,000 | 0 | 0.00 KM |
| Cottongrass Road | £ 0 | 0 | 0.00 KM |
| Campanula Gardens | £ 400,000 | 0 | 0.00 KM |
| Bramble Close | £ 0 | 0 | 0.00 KM |
| Sweet Pea Way | £ 673,333 | 0 | 0.00 KM |
Nearby Transport
| Name | NLC | TLC | Distance |
|---|---|---|---|
| Yate | 3380 | YAE | 6.12 KM |
| Bristol Parkway | 3230 | BPW | 9.18 KM |
| Keynsham | 3237 | KYN | 9.23 KM |
Nearby Listings
| Address | Price | Type | Score | Distance |
|---|---|---|---|---|
| Silverweed Road, Emersons Green, BS16 | £ 285,000 | BUY | 8 / 10 | 0.00 KM |
| Silverweed Road, Emersons Green, Bristol, BS16 | £ 280,000 | BUY | 7 / 10 | 0.03 KM |
| Silverweed Road, Bristol | £ 290,000 | BUY | 7 / 10 | 0.03 KM |
| Silverweed Road, Emersons Green, Bristol, South Gloucestershire, BS16 | £ 485,000 | BUY | 7 / 10 | 0.04 KM |
| Silverweed Road, Lyde Green, Bristol, BS16 7NU | £ 425,000 | BUY | Unknown | 0.04 KM |
Nearby Properties
| Address | Price | Distance |
|---|---|---|
| 95 Honeysuckle Road | £ 220,000 | 0.31 KM |
| 21 Hollyhock Lane | £ 425,000 | 0.31 KM |
| 28 Larch Close | £ 181,000 | 0.64 KM |
| 16 Larch Close | £ 157,000 | 0.64 KM |
| 18 Larch Close | £ 182,500 | 0.64 KM |