Lower Green, Risby, Bury St. Edmunds, Suffolk, IP28
By Lacy Scott & Knight
£ 300,000
Reviews
2 out of 5 stars
Lacy Scott & Knight says ..
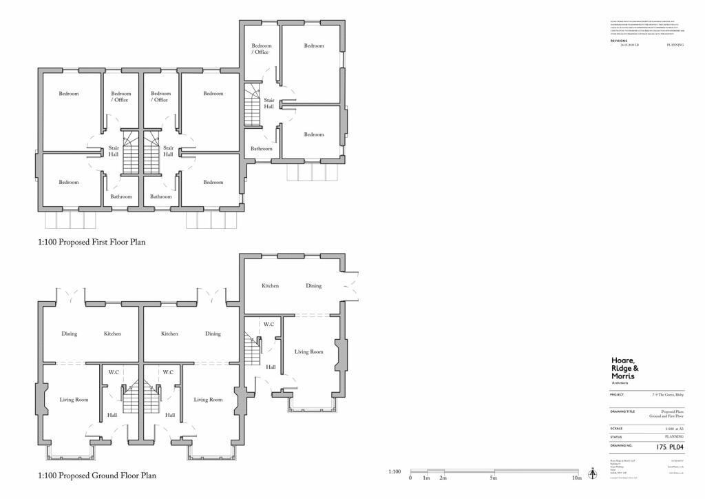
Detailed planning permission granted for a terrace of 3 dwellings in a plot extending to approximately 0.37 acres (subject to survey). The site is situated within the village conservation area, looking towards Lower Green. Risby is an attractive and sought after village with excellent access to B...
Property Oracle says ..
This property listing is for a plot of land at Lower Green, Risby, with detailed planning permission already granted for the construction of a terrace of three dwellings. The location in Risby, Suffolk offers a desirable village setting, conveniently located near highly-rated primary schools and within reasonable travelling distance to Bury St Edmunds. However, the property itself is currently undeveloped, as shown in the photographs provided; this is essentially the purchase of a plot of land, not a home. The images show that the land has been cleared for construction and the site is currently fenced. The asking price of £300,000 would need to be viewed in the context of construction costs to assess the overall value. This is a project for someone with the intention of development, rather than immediate occupation, therefore purchasers will have to add the costs of building to their overall budget. While comparable properties nearby are listed at significantly higher prices, these are finished properties. Therefore, while there is potential in the location and the planning permission, the current state of the property and potential future construction costs significantly affect the assessment of its value. The provided data lacks crucial details such as the actual plot size (which is only approximately given) and the precise dimensions of the planned dwellings. The availability of detailed architectural plans, should be checked as a next step.
Therefore, we give this property 5 / 10. *Disclaimer: This is our option and does constitute a recommendation or financial advice. Do your own research. *
- Price
- 6
- Condition
- 2
- Location
- 7
- Land
- 5
- Bedrooms
- 0
- Bathrooms
- 0
The heatmap indicates the level of crime in the area. The color of the heatmap indicates the crime severity and recency.
Metrics Year-on-Year
- Average area value
- 400,000.00 £Decreased by 62.22 %
- Average area rental value
- 2,250.00 £/moIncreased by 73.08 %
- Est rental Yield
- 6.75 %Increased by 359.18 %
- Crime Rate
- 0.00 %
Agent Activity
Lacy Scott & Knight marked this listing as sold.
Lacy Scott & Knight created the listing.
Nearby Schools
| Name | Type | Ofsted | Distance |
|---|---|---|---|
| Brookes Uk | Other Independent School | 0.03 KM | |
| Risby Church Of England Voluntary Controlled Primary School | Voluntary Controlled School | Outstanding | 0.41 KM |
| Westley Middle School | Academy Converter | Good | 5.96 KM |
| Sexton'S Manor Community Primary School | Community School | Good | 6.23 KM |
| Barrow Church Of England Voluntary Controlled Primary School | Voluntary Controlled School | Outstanding | 6.56 KM |
Images
Nearby Streets
| Name | Average Price | Average Sqft | Distance |
|---|---|---|---|
| Church Close | £ 0 | 0 | 0.00 KM |
| The Avenue | £ 475,000 | 0 | 0.00 KM |
Nearby Transport
| Name | NLC | TLC | Distance |
|---|---|---|---|
| Bury St Edmunds | 7008 | BSE | 9.13 KM |
Nearby Listings
| Address | Price | Type | Score | Distance |
|---|---|---|---|---|
| Lower Green, Risby, Bury St. Edmunds, Suffolk, IP28 | £ 300,000 | BUY | 5 / 10 | 0.00 KM |
| Risby, Bury St Edmunds, Suffolk | £ 2,000,000 | BUY | Unknown | 0.05 KM |
| The Green, Risby | £ 675,000 | BUY | Unknown | 0.25 KM |
| Welham Lane, Risby, Bury St. Edmunds | £ 575,000 | BUY | Unknown | 0.31 KM |
| Aylmer Close, Risby, Bury St Edmunds | £ 200,000 | BUY | 5 / 10 | 0.39 KM |
Nearby Properties
| Address | Price | Distance |
|---|---|---|
| Gage Cottage | £ 405,000 | 0.05 KM |
| Troodos | £ 250,000 | 0.05 KM |
| Fox Cottage | £ 765,000 | 0.05 KM |
| Cullross House | £ 580,000 | 0.05 KM |
| Misbourne | £ 144,000 | 0.05 KM |