Felicity J Lord says ..
OFFERS IN THE REIGON OF £550,000
Property Oracle says ..
Therefore, we give this property 7 / 10. *Disclaimer: This is our option and does constitute a recommendation or financial advice. Do your own research. *
- Price
- 8
- Condition
- 8
- Location
- 7
- Land
- 7
- Bedrooms
- 3
- Bathrooms
- 2
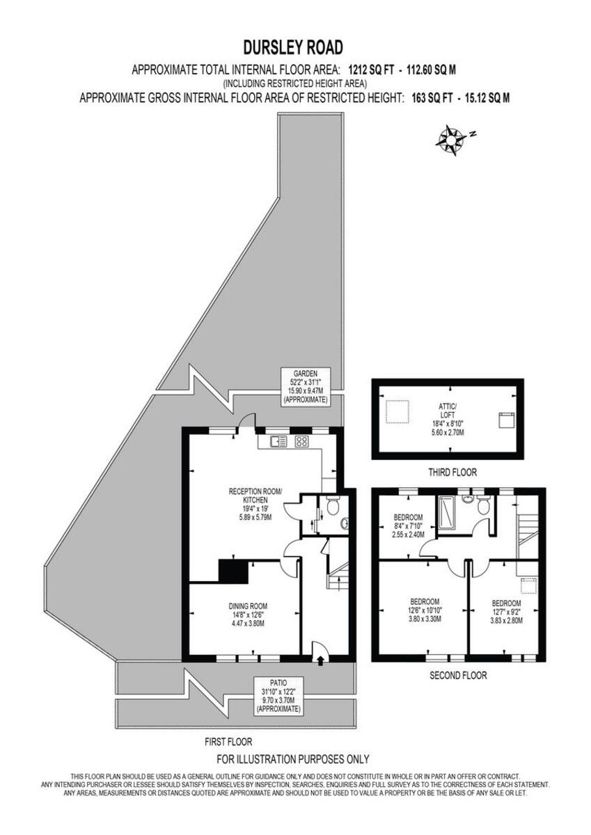
- Sqft (est)
- 1,212.00
The heatmap indicates the level of crime in the area. The color of the heatmap indicates the crime severity and recency.
Metrics Year-on-Year
- Average area value
- 569,167.00 £Increased by 19.48 %
- Est sale value
- 738,108.00 £Increased by 8.17 %
- Average area rental value
- 1,814.00 £/moIncreased by 1.06 %
- Est letting value
- 1,212.00 £/moDecreased by 50.00 %
- Est rental Yield
- 3.82 %Decreased by 15.49 %
- Crime Rate
- 8.00 %Unchanged by 0.00 %
from 476,380.00 £
from 682,356.00 £
from 1,795.00 £/mo
from 2,424.00 £/mo
from 4.52 %
from 8.00 %
Agent Activity
Felicity J Lord created the listing.
Nearby Schools
| Name | Type | Ofsted | Distance |
|---|---|---|---|
| The Halley Academy | Academy Sponsor Led | 0.25 KM | |
| Charlton Manor Primary School | Community School | Good | 0.82 KM |
| Shooter'S Hill Children'S Centre | Children's Centre Linked Site | 0.83 KM | |
| Kidbrooke Park Primary School | Community School | Good | 0.84 KM |
| Storkway And Shooter'S Hill Children'S Centre | Children's Centre | 0.92 KM |
Images
Nearby Streets
| Name | Average Price | Average Sqft | Distance |
|---|---|---|---|
| Centurian Square | £ 0 | 0 | 0.00 KM |
| Kelbrook Road | £ 0 | 0 | 0.00 KM |
| Rydons Close | £ 0 | 0 | 0.00 KM |
| Chichester Close | £ 0 | 0 | 0.00 KM |
| Old Dover Road | £ 0 | 0 | 0.00 KM |
Nearby Transport
| Name | NLC | TLC | Distance |
|---|---|---|---|
| Kidbrooke | 5108 | KDB | 1.65 KM |
| Charlton | 5144 | CTN | 2.03 KM |
| Eltham | 5103 | ELW | 2.19 KM |
| Westcombe Park | 5151 | WCB | 2.80 KM |
| Woolwich Dockyard | 5153 | WWD | 2.81 KM |
Nearby Listings
| Address | Price | Type | Score | Distance |
|---|---|---|---|---|
| Dursley Road, London SE3 | £ 550,000 | BUY | 7 / 10 | 0.00 KM |
| Dursley Road, SE3 | £ 400,000 | BUY | 7 / 10 | 0.10 KM |
| Dursley Road, London, SE3 | £ 550,000 | BUY | 8 / 10 | 0.23 KM |
| Wricklemarsh Road, Blackheath | £ 650,000 | BUY | 5 / 10 | 0.25 KM |
| Holburne Road, Blackheath, SE3 | £ 275,000 | BUY | 6 / 10 | 0.26 KM |
Nearby Properties
| Address | Price | Distance |
|---|---|---|
| 152 Dursley Road | £ 363,000 | 0.05 KM |
| 154 Dursley Road | £ 175,000 | 0.05 KM |
| 158 Dursley Road | £ 315,000 | 0.05 KM |
| 168 Dursley Road | £ 365,000 | 0.05 KM |
| 180 Dursley Road | £ 384,055 | 0.05 KM |