SA
Quinque, 5 Porta, London Road West, Bath, Somerset, BA1
By Savills New Homes
£ 1,325,000
Reviews
3 out of 5 stars
Savills New Homes says ..
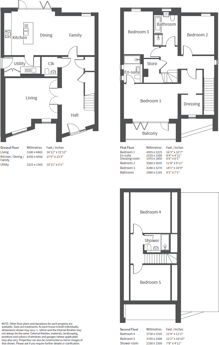
Quinque. A 5 bedroom light-filled detached house forming part of Porta. An exclusive collection of eight brand new 3 and 4 bedrooms homes close to the city centre.
Property Oracle says ..
Therefore, we give this property 7 / 10. *Disclaimer: This is our option and does constitute a recommendation or financial advice. Do your own research. *
- Price
- 7
- Condition
- 9
- Location
- 8
- Land
- 7
- Bedrooms
- 5
- Bathrooms
- 3
The heatmap indicates the level of crime in the area. The color of the heatmap indicates the crime severity and recency.
Metrics Year-on-Year
- Average area value
- 680,998.00 £Decreased by 7.75 %
- Average area rental value
- 1,898.00 £/moDecreased by 25.22 %
- Est rental Yield
- 3.34 %Decreased by 19.13 %
- Crime Rate
- 0.00 %
from 738,203.00 £
from 2,538.00 £/mo
from 4.13 %
from 0.00 %
Agent Activity
Savills New Homes created the listing.
Nearby Schools
| Name | Type | Ofsted | Distance |
|---|---|---|---|
| St Saviours Junior Church School | Academy Converter | 1.00 KM | |
| St Saviours Infant Church School | Academy Converter | 1.18 KM | |
| Bathwick St Mary Church School | Academy Converter | 1.31 KM | |
| King Edward'S School, Bath | Other Independent School | 1.40 KM | |
| St Mark'S Cofe School | Academy Converter | 1.43 KM |
Images
Nearby Streets
| Name | Average Price | Average Sqft | Distance |
|---|---|---|---|
| Saint Saviour's Way | £ 0 | 0 | 0.00 KM |
| Holland Road | £ 300,000 | 0 | 0.00 KM |
| Eastbourne Avenue | £ 950,000 | 0 | 0.00 KM |
| Meadows Lane | £ 0 | 0 | 0.00 KM |
| Warminster Road | £ 0 | 0 | 0.00 KM |
Nearby Transport
| Name | NLC | TLC | Distance |
|---|---|---|---|
| Bath Spa | 3271 | BTH | 3.06 KM |
| Oldfield Park | 3219 | OLF | 5.13 KM |
| Freshford | 3344 | FFD | 7.43 KM |
| Avoncliff | 3265 | AVF | 9.00 KM |
Nearby Listings
| Address | Price | Type | Score | Distance |
|---|---|---|---|---|
| 4 Porta, London Road West, Bath, Somerset, BA1 | £ 1,100,000 | BUY | Unknown | 0.00 KM |
| Quinque, 5 Porta, London Road West, Bath, Somerset, BA1 | £ 1,325,000 | BUY | 7 / 10 | 0.00 KM |
| 1 Porta, London Road West, Bath, Somerset, BA1 | £ 895,000 | BUY | 7 / 10 | 0.00 KM |
| London Road West, Bath | £ 1,100,000 | BUY | 7 / 10 | 0.01 KM |
| The Elms, Bath, Somerset, BA1 | £ 1,425,000 | BUY | Unknown | 0.11 KM |
Nearby Properties
| Address | Price | Distance |
|---|---|---|
| 8 London Road West | £ 425,000 | 0.20 KM |
| 6 The Elms | £ 1,320,000 | 0.20 KM |
| 5 The Elms | £ 1,300,000 | 0.20 KM |
| 1 The Elms | £ 950,000 | 0.20 KM |
| 2 The Elms | £ 1,000,000 | 0.20 KM |