The Long Road, Rowledge, Farnham, GU10
By Curchods Estate Agents
£ 750,000
Reviews
2 out of 5 stars
Curchods Estate Agents says ..
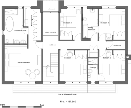
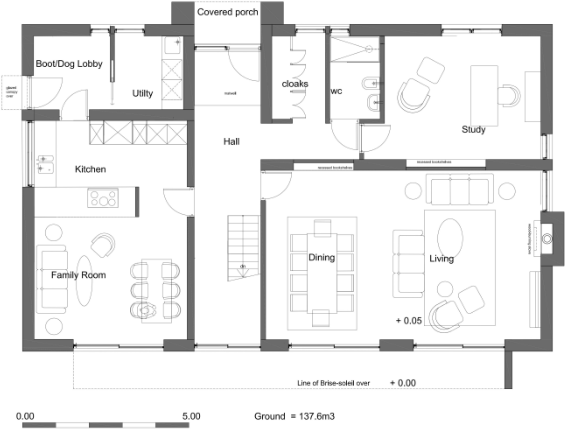
PLOT WITH PLANNING PERMISSION - Planning permission has been approved for a detached 5-bedroom house following demolition of the former Village Hall.
Property Oracle says ..
The property is a land plot in Rowledge, Farnham, with a mix of property types and price points nearby. Proximity to schools and transport links is positive. The plot size is relatively small. The listing price is above the average price for the area.
Therefore, we give this property 5 / 10. *Disclaimer: This is our option and does constitute a recommendation or financial advice. Do your own research. *
- Price
- 4
- Condition
- 0
- Location
- 6
- Land
- 5
- Bedrooms
- 0
- Bathrooms
- 0
- Sqft (est)
- 1,636.11
- Lot (est)
- 1,481.11
The heatmap indicates the level of crime in the area. The color of the heatmap indicates the crime severity and recency.
Metrics Year-on-Year
- Average area value
- 613,333.00 £Decreased by 16.79 %
- Est sale value
- 1,227,082.50 £Increased by 73.61 %
- Average area rental value
- 2,749.00 £/moIncreased by 5.81 %
- Est letting value
- 4,908.33 £/moIncreased by 200.00 %
- Est rental Yield
- 5.38 %Increased by 27.19 %
- Crime Rate
- 0.00 %
Agent Activity
Curchods Estate Agents created the listing.
Nearby Schools
| Name | Type | Ofsted | Distance |
|---|---|---|---|
| Rowledge Church Of England Controlled Primary School | Voluntary Controlled School | Good | 0.84 KM |
| Frensham Heights School | Other Independent School | 1.13 KM | |
| St Peter'S Cofe Primary School | Voluntary Aided School | Good | 1.97 KM |
| Weydon School | Academy Converter | 2.32 KM | |
| More House School | Other Independent Special School | Outstanding | 2.43 KM |
Images
Nearby Streets
| Name | Average Price | Average Sqft | Distance |
|---|---|---|---|
| Bell Lane | £ 0 | 0 | 0.00 KM |
| Thorn Close | £ 0 | 0 | 0.00 KM |
| Grove Close | £ 550,000 | 0 | 0.00 KM |
| Acacia Gardens | £ 587,498 | 0 | 0.00 KM |
| Juniper Close | £ 512,500 | 0 | 0.00 KM |
Nearby Transport
| Name | NLC | TLC | Distance |
|---|---|---|---|
| Farnham | 5545 | FNH | 4.51 KM |
| Bentley (Hampshire) | 5624 | BTY | 5.29 KM |
| Aldershot | 5623 | AHT | 9.78 KM |
Nearby Listings
| Address | Price | Type | Score | Distance |
|---|---|---|---|---|
| The Long Road, Rowledge, Farnham, GU10 | £ 750,000 | BUY | 5 / 10 | 0.00 KM |
| The Long Road, Rowledge, Farnham, GU10 | £ 625,000 | BUY | Unknown | 0.04 KM |
| The Avenue, Rowledge, Farnham, GU10 | £ 1,595,000 | BUY | 7 / 10 | 0.15 KM |
| The Avenue, Rowledge, Farnham, GU10 | £ 1,500,000 | BUY | Unknown | 0.18 KM |
| The Long Road, Rowledge, Farnham, Surrey, GU10 | £ 500,000 | BUY | 5 / 10 | 0.18 KM |
Nearby Properties
| Address | Price | Distance |
|---|---|---|
| The Old Orchard | £ 1,160,000 | 0.08 KM |
| Highbury | £ 800,000 | 0.09 KM |
| The Lodge | £ 1,950,000 | 0.13 KM |
| Bramblemead | £ 911,000 | 0.13 KM |
| Wardhill House | £ 1,050,000 | 0.14 KM |