Leek Road, Bosley, Macclesfield
By Holmes-Naden Estate Agents
£ 350,000
Reviews
2 out of 5 stars
Holmes-Naden Estate Agents says ..
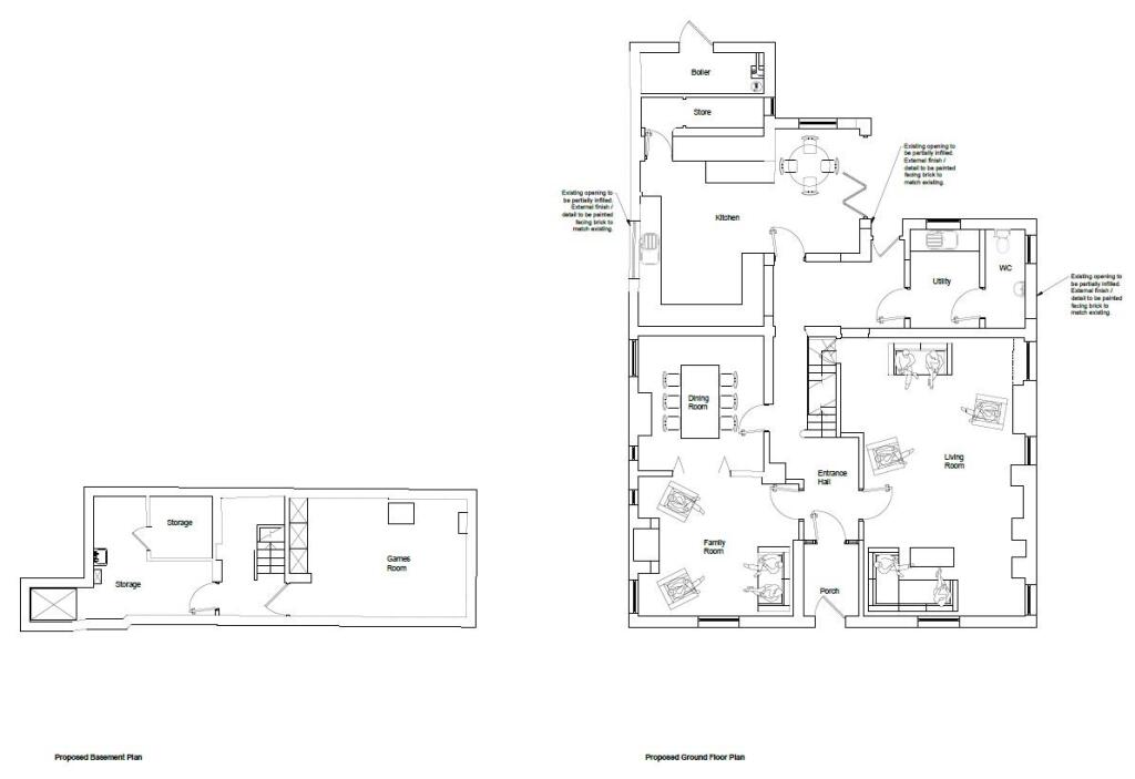
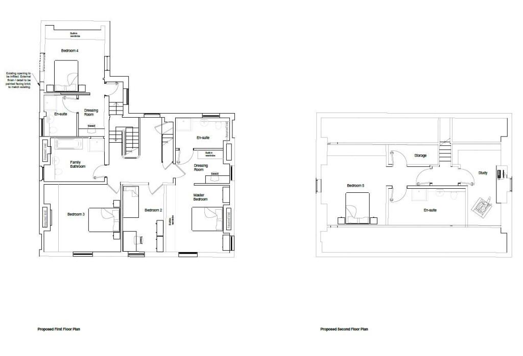
A superb opportunity to acquire a derelict former public house with planning permission to convert into a residential dwelling enjoying open countryside views.
Property Oracle says ..
This detached property on Leek Road, Bosley, presents a unique opportunity for buyers looking to undertake a renovation project. While the property requires significant work, it boasts five bedrooms and four bathrooms, offering ample living space. The location, while rural, is conveniently close to Congleton train station and Mossley Cofe Primary School. The inclusion of land adds to the property’s appeal, providing potential for outdoor activities and landscaping. The price reflects the property’s condition, making it an attractive option for those willing to invest in refurbishment.
Therefore, we give this property 5 / 10. *Disclaimer: This is our option and does constitute a recommendation or financial advice. Do your own research. *
- Price
- 7
- Condition
- 3
- Location
- 6
- Land
- 7
- Bedrooms
- 5
- Bathrooms
- 4
The heatmap indicates the level of crime in the area. The color of the heatmap indicates the crime severity and recency.
Metrics Year-on-Year
- Average area value
- 340,241.00 £Decreased by 8.44 %
- Average area rental value
- 1,141.00 £/moIncreased by 2.98 %
- Est rental Yield
- 4.02 %Increased by 12.29 %
- Crime Rate
- 6.00 %Unchanged by 0.00 %
Agent Activity
Holmes-Naden Estate Agents created the listing.
Nearby Schools
| Name | Type | Ofsted | Distance |
|---|---|---|---|
| Mossley Cofe Primary School | Academy Converter | Good | 0.63 KM |
| Daven Primary School | Academy Converter | 1.78 KM | |
| Buglawton Primary School | Community School | Good | 1.86 KM |
| Congleton Children'S Centre | Children's Centre | 1.88 KM | |
| Esland Congleton School | Other Independent Special School | 2.16 KM |
Images
Nearby Streets
| Name | Average Price | Average Sqft | Distance |
|---|---|---|---|
| Manor Close | £ 275,000 | 0 | 0.00 KM |
| Maxwell Road | £ 0 | 0 | 0.00 KM |
| Crosslands | £ 432,500 | 0 | 0.00 KM |
| Hartley Gardens | £ 0 | 0 | 0.00 KM |
| Trinity Court | £ 0 | 0 | 0.00 KM |
Nearby Transport
| Name | NLC | TLC | Distance |
|---|---|---|---|
| Congleton | 1227 | CNG | 0.47 KM |
| Kidsgrove | 1229 | KDG | 9.59 KM |
Nearby Listings
| Address | Price | Type | Score | Distance |
|---|---|---|---|---|
| Leek Road, Bosley, Macclesfield | £ 350,000 | BUY | 5 / 10 | 0.00 KM |
| Manor Close, Congleton | £ 275,000 | BUY | 6 / 10 | 0.17 KM |
| Boundary Lane, Mossley, Congleton | £ 265,000 | BUY | 7 / 10 | 0.19 KM |
| Manor Close, Congleton | £ 260,000 | BUY | 7 / 10 | 0.21 KM |
| Maxwell Road, Congleton | £ 375,000 | BUY | 6 / 10 | 0.21 KM |
Nearby Properties
| Address | Price | Distance |
|---|---|---|
| 33 Southlands Road | £ 245,000 | 0.09 KM |
| 18 Southlands Road | £ 234,000 | 0.09 KM |
| 19 Southlands Road | £ 182,500 | 0.09 KM |
| 20 Southlands Road | £ 235,000 | 0.09 KM |
| 13 Southlands Road | £ 220,250 | 0.09 KM |