Eastleaze Road, Blandford Forum, Dorset, DT11
By Vivien Horder
£ 205,000
Reviews
3 out of 5 stars
Vivien Horder says ..
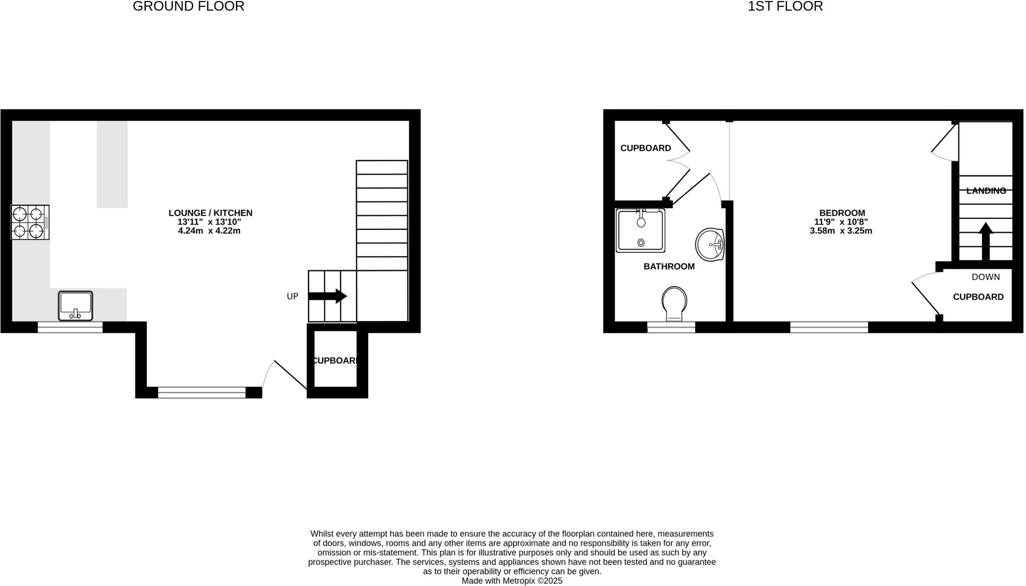
A well-maintained one-bedroom cluster house situated in a sought-after residential area. The property features UPVC double glazing, off-road parking for at least two vehicles and recently landscaped front garden. Early viewings are highly recommended.
Property Oracle says ..
Therefore, we give this property 6 / 10. *Disclaimer: This is our option and does constitute a recommendation or financial advice. Do your own research. *
- Price
- 7
- Condition
- 8
- Location
- 7
- Land
- 3
- Bedrooms
- 1
- Bathrooms
- 1
- Sqft (est)
- 317.75
The heatmap indicates the level of crime in the area. The color of the heatmap indicates the crime severity and recency.
Metrics Year-on-Year
- Average area value
- 256,000.00 £Decreased by 29.74 %
- Est sale value
- 167,772.00 £Increased by 86.57 %
- Average area rental value
- 1,198.00 £/moIncreased by 31.50 %
- Est letting value
- 635.50 £/mo
- Est rental Yield
- 5.62 %Increased by 87.33 %
- Crime Rate
- 7.00 %Unchanged by 0.00 %
from 364,352.00 £
from 89,923.25 £
from 911.00 £/mo
from 0.00 £/mo
from 3.00 %
from 7.00 %
Agent Activity
Vivien Horder created the listing.
Nearby Schools
| Name | Type | Ofsted | Distance |
|---|---|---|---|
| Milldown Cofe Academy | Academy Converter | 0.66 KM | |
| The Forum Centre | Pupil Referral Unit | Good | 0.86 KM |
| The Blandford School | Voluntary Controlled School | Requires improvement | 1.05 KM |
| Archbishop Wake Church Of England Primary School | Academy Converter | Good | 1.43 KM |
| Blandford | Children's Centre | 1.44 KM |
Images
Nearby Streets
| Name | Average Price | Average Sqft | Distance |
|---|---|---|---|
| Tin Pot Lane | £ 0 | 0 | 0.00 KM |
| Dukes Parade | £ 0 | 0 | 0.00 KM |
| Higher Shaftesbury Road | £ 0 | 0 | 0.00 KM |
| Newman Close | £ 0 | 0 | 0.00 KM |
| Charles Street | £ 0 | 0 | 0.00 KM |
Nearby Listings
| Address | Price | Type | Score | Distance |
|---|---|---|---|---|
| Eastleaze Road, Blandford Forum, Dorset, DT11 | £ 205,000 | BUY | 6 / 10 | 0.00 KM |
| Jubilee Way, Blandford Forum | £ 190,000 | BUY | 6 / 10 | 0.05 KM |
| Jubilee Way, Blandford Forum | £ 190,000 | BUY | 5 / 10 | 0.05 KM |
| Jubilee Way, Blandford Forum, Dorset, DT11 | £ 200,000 | BUY | 5 / 10 | 0.06 KM |
| Eastleaze Road, Blandford Forum | £ 185,000 | BUY | 5 / 10 | 0.07 KM |
Nearby Properties
| Address | Price | Distance |
|---|---|---|
| 32 Jubilee Way | £ 107,000 | 0.06 KM |
| 18 Jubilee Way | £ 210,000 | 0.06 KM |
| 45 Jubilee Way | £ 41,000 | 0.06 KM |
| 38 Jubilee Way | £ 132,000 | 0.06 KM |
| 16 Jubilee Way | £ 338,000 | 0.06 KM |