Dragon Parade, Harrogate
By Nicholls Tyreman
£ 875,000
Nicholls Tyreman says ..
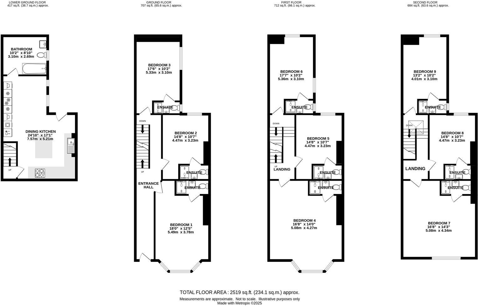
INVESTMENT OPPORTUNITY An extremely rare opportunity to purchase this high yielding, nine bedroom, terraced property. The property currently offers nine bedrooms with en-suite facilities and a communal dining kitchen. Recently completely renovated and modernised to the highest ...
- Bedrooms
- 9
- Bathrooms
- 9
The heatmap indicates the level of crime in the area. The color of the heatmap indicates the crime severity and recency.
Metrics Year-on-Year
- Average area value
- 314,167.00 £Decreased by 11.00 %
- Average area rental value
- 881.00 £/moDecreased by 9.92 %
- Est rental Yield
- 3.37 %Increased by 1.51 %
- Crime Rate
- 18.00 %Unchanged by 0.00 %
from 352,995.00 £
from 978.00 £/mo
from 3.32 %
from 18.00 %
Agent Activity
Nicholls Tyreman created the listing.
Nearby Schools
| Name | Type | Ofsted | Distance |
|---|---|---|---|
| Harrogate, Grove Road Community Primary School | Community School | Good | 0.55 KM |
| Springwell Harrogate | Academy Alternative Provision Converter | Outstanding | 0.60 KM |
| St Peter'S Church Of England Primary School | Academy Converter | Good | 0.80 KM |
| Harrogate, Bilton Grange Primary School | Academy Converter | Good | 1.20 KM |
| Harrogate Bilton Children'S Centre | Children's Centre | 1.25 KM |
Images
Nearby Streets
| Name | Average Price | Average Sqft | Distance |
|---|---|---|---|
| Chelmsford Road | £ 899,950 | 0 | 0.00 KM |
| Queensway | £ 100,000 | 0 | 0.00 KM |
| Station Avenue | £ 0 | 0 | 0.00 KM |
| Station Square | £ 175,000 | 0 | 0.00 KM |
| Cambridge Place | £ 533,333 | 0 | 0.00 KM |
Nearby Transport
| Name | NLC | TLC | Distance |
|---|---|---|---|
| Harrogate | 8213 | HGT | 0.43 KM |
| Hornbeam Park | 8212 | HBP | 1.98 KM |
| Starbeck | 8221 | SBE | 3.74 KM |
| Pannal | 8479 | PNL | 4.17 KM |
| Knaresborough | 8214 | KNA | 7.27 KM |
Nearby Listings
| Address | Price | Type | Score | Distance |
|---|---|---|---|---|
| Dragon Parade, Harrogate | £ 875,000 | BUY | Unknown | 0.00 KM |
| Dragon Parade, Harrogate, North Yorkshire, HG1 | £ 750,000 | BUY | 5 / 10 | 0.02 KM |
| Dragon Parade, Harrogate | £ 160,000 | BUY | 5 / 10 | 0.02 KM |
| Dragon Parade, Harrogate, North Yorkshire, HG1 | £ 90,000 | BUY | 6 / 10 | 0.03 KM |
| Dragon Parade, Harrogate, North Yorkshire, HG1 | £ 180,000 | BUY | Unknown | 0.03 KM |
Nearby Properties
| Address | Price | Distance |
|---|---|---|
| 17 Dragon Parade | £ 295,000 | 0.03 KM |
| 13 Dragon Parade | £ 250,000 | 0.03 KM |
| 1 | £ 129,950 | 0.03 KM |
| 12 Dragon Parade | £ 490,000 | 0.10 KM |
| 10 Dragon Parade | £ 249,950 | 0.10 KM |