Plasmarl, Llwydcoed, Aberdare
Penhill Jones Property logo

Plasmarl, Llwydcoed, Aberdare

By Penhill Jones Property

£ 365,000

Reviews

3 out of 5 stars

Penhill Jones Property says ..

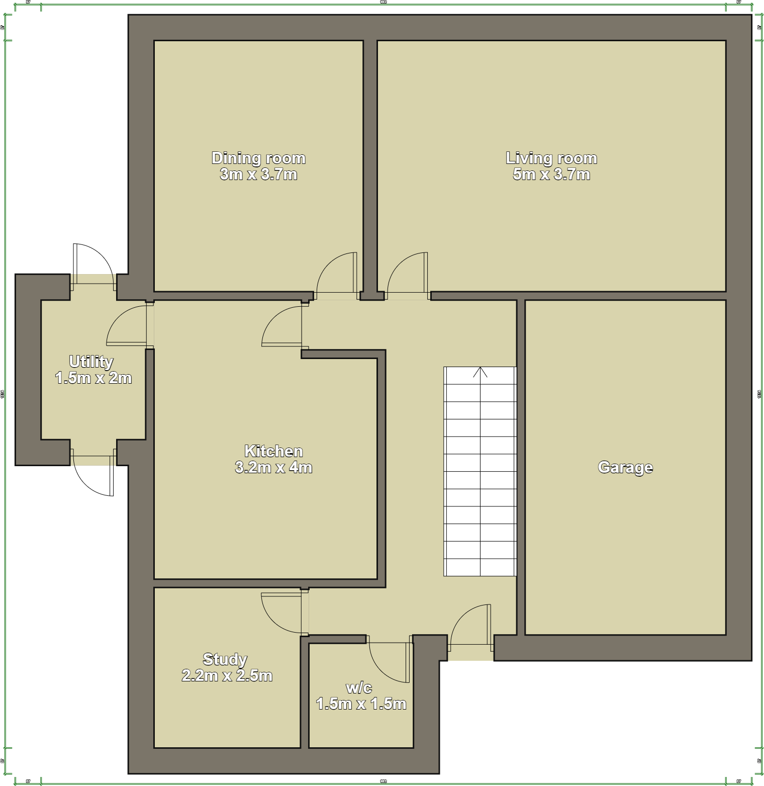
Plasmarl We are excited to market this very spacious and immaculately presented, 4 bedroom detached property in Plasmarl, in the highly sought after village of Llwydcoed.

Property Oracle says ..

Plasmarl, Llwydcoed, Aberdare is located in a residential area with nearby primary schools and a train station. The property itself appears to be in excellent condition, with a recently modernised interior and a well-maintained garden. While the provided data lacks square footage, the list price of £365,000 is higher than the area average of £205,366, but comparable to other nearby detached properties. The lack of precise square footage makes a definitive price per square foot comparison impossible. However, considering the apparent high-quality condition and the desirable features (such as the modern kitchen and bathrooms), the price may be justified within the context of the local market. The property benefits from a good-sized garden, adding to its overall appeal.

Therefore, we give this property 7 / 10. *Disclaimer: This is our option and does constitute a recommendation or financial advice. Do your own research. *

Price
7
Condition
9
Location
7
Land
7
Bedrooms
4
Bathrooms
3

The heatmap indicates the level of crime in the area. The color of the heatmap indicates the crime severity and recency.

Metrics Year-on-Year

Average area value
242,000.00 £
Decreased by 4.05 %
from 252,211.00 £
Average area rental value
437.00 £/mo
Decreased by 50.79 %
from 888.00 £/mo
Est rental Yield
2.17 %
Decreased by 48.70 %
from 4.23 %
Crime Rate
2.00 %
Unchanged by 0.00 %
from 2.00 %

Agent Activity

  • Penhill Jones Property created the listing.

Nearby Schools

NameTypeOfstedDistance
Llwydcoed PrimaryWelsh Establishment0.54 KM
Ty Gwyn Education CentresWelsh Establishment1.03 KM
Maesgwyn Special SchoolWelsh Establishment1.23 KM
Park Lane Special SchoolWelsh Establishment1.29 KM
Ysgol G.G. AberdarWelsh Establishment1.50 KM

Images

IMG_7117.jpeg IMG_7150.jpeg IMG_7160.jpeg IMG_7167.jpeg IMG_7174.jpeg IMG_7177.jpeg IMG_7181.jpeg IMG_7182.jpeg IMG_7191.jpeg IMG_7195.jpeg IMG_7200.jpeg IMG_7202.jpeg IMG_7205.jpeg IMG_7210.jpeg IMG_7214.jpeg IMG_7217.jpeg IMG_7227.jpeg IMG_7233.jpeg IMG_7236.jpeg IMG_7241.jpeg IMG_7246.jpeg IMG_7256.jpeg IMG_7259.jpeg IMG_7263.jpeg IMG_7272.jpeg IMG_7278.jpeg IMG_7283.jpeg IMG_7288.jpeg IMG_7299.jpeg IMG_7317.jpeg IMG_7322.jpeg IMG_7133.jpeg

Nearby Streets

NameAverage PriceAverage SqftDistance
Ebenezer Street £ 000.00 KM
Cherry Drive £ 000.00 KM
St. John Street £ 135,00000.00 KM
Ty Newydd £ 249,99500.00 KM
Yr Hen Ysgol £ 000.00 KM

Nearby Transport

NameNLCTLCDistance
Aberdare3982ABA2.92 KM
Cwmbach3981CMH6.43 KM
Fernhill3862FER9.01 KM
Treorchy3891TRY9.46 KM
Ton Pentre3897TPN9.64 KM

Nearby Listings

AddressPriceTypeScoreDistance
Plasmarl, Llwydcoed, Aberdare £ 365,000BUY7 / 100.00 KM
Windermere, Llwydcoed Road, Aberdare £ 389,995BUY7 / 100.13 KM
Beechwood Bungalow, Llwydcoed, Aberdare £ 360,000BUYUnknown0.31 KM
New Scales Houses, Llwydcoed, Aberdare, CF44 0UG £ 239,950BUYUnknown0.33 KM
Tan Y Bryn Gardens, Llwydcoed, Aberdare £ 265,000BUY7 / 100.35 KM

Nearby Properties

AddressPriceDistance
9 Plas Marl £ 244,9500.08 KM
5 Plas Marl £ 180,0000.08 KM
16 Plas Marl £ 160,0000.08 KM
29 Plas Marl £ 240,0000.08 KM
13 Plas Marl £ 196,0000.08 KM