Benner Lane, West End, Woking, Surrey, GU24
SE

Benner Lane, West End, Woking, Surrey, GU24

By Seymours Estate Agents

£ 925,000

Reviews

3 out of 5 stars

Seymours Estate Agents says ..

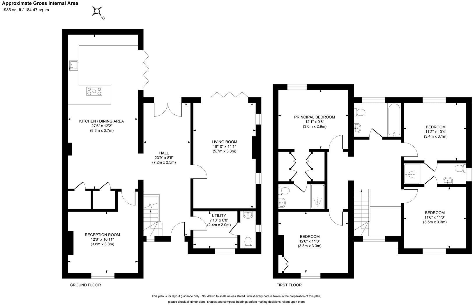
Substantial Character Home within 830m of Gordon’s School Dating back to circa 1909, this substantial character home seamlessly blends period charm with contemporary style. Having been thoughtfully extended and remodelled by the current owners, the property is presented in excellent co...

Property Oracle says ..

This is a well-presented semi-detached property located in a popular residential area. The house has been modernised with a contemporary kitchen and bathrooms. The property benefits from a good-sized garden. The proximity to well-regarded schools adds to the appeal for families. The price is a little high compared to the average for the area, but the size and condition of the property may justify the premium.

Therefore, we give this property 7 / 10. *Disclaimer: This is our option and does constitute a recommendation or financial advice. Do your own research. *

Price
6
Condition
8
Location
7
Land
7
Bedrooms
4
Bathrooms
2
Sqft (est)
1,986.00

The heatmap indicates the level of crime in the area. The color of the heatmap indicates the crime severity and recency.

Metrics Year-on-Year

Average area value
644,188.00 £
Increased by 3.54 %
from 622,146.00 £
Est sale value
842,064.00 £
Decreased by 26.64 %
from 1,147,908.00 £
Average area rental value
2,466.00 £/mo
Decreased by 21.84 %
from 3,155.00 £/mo
Est letting value
1,986.00 £/mo
Decreased by 50.00 %
from 3,972.00 £/mo
Est rental Yield
4.59 %
Decreased by 24.63 %
from 6.09 %
Crime Rate
23.00 %
Unchanged by 0.00 %
from 23.00 %

Agent Activity

  • Seymours Estate Agents created the listing.

Nearby Schools

NameTypeOfstedDistance
Holy Trinity Cofe Primary SchoolAcademy Converter0.09 KM
Gordon'S SchoolAcademy ConverterOutstanding1.32 KM
Bisley Cofe Primary SchoolVoluntary Aided SchoolGood1.78 KM
Valley End Cofe Infant SchoolVoluntary Controlled SchoolOutstanding2.73 KM
Knaphill SchoolAcademy Converter2.92 KM

Images

Picture No. 31 Picture No. 12 Picture No. 14 Picture No. 15 Picture No. 16 Picture No. 17 Picture No. 13 Picture No. 18 Picture No. 19 Picture No. 21 Picture No. 22 Picture No. 23 Picture No. 24 Picture No. 20 Picture No. 08 Picture No. 03 Picture No. 04 Picture No. 06 Picture No. 05 Picture No. 07 Picture No. 10 Picture No. 11 Picture No. 09 Picture No. 25 Picture No. 26 Picture No. 27 Picture No. 28 Picture No. 29 Picture No. 33

Nearby Streets

NameAverage PriceAverage SqftDistance
Sarsen Court £ 625,00000.00 KM
Queens Place £ 000.00 KM
Iris Drive £ 000.00 KM
Strawberry Fields £ 925,00000.00 KM
Halebourne Lane £ 3,000,00000.00 KM

Nearby Transport

NameNLCTLCDistance
Brookwood5687BKO4.09 KM
Sunningdale5671SNG5.73 KM
Bagshot5681BAG6.50 KM
Longcross5674LNG6.69 KM
Worplesdon5686WPL8.15 KM

Nearby Listings

AddressPriceTypeScoreDistance
Benner Lane, West End, Woking, Surrey, GU24 £ 925,000BUY7 / 100.00 KM
Benner Lane, West End, Woking, Surrey, GU24 £ 840,000BUY7 / 100.10 KM
WEST END £ 775,000BUYUnknown0.11 KM
Benner Lane, West End, Woking, GU24 £ 635,000BUYUnknown0.11 KM
Benner Lane, West End, Woking, Surrey, GU24 £ 850,000BUYUnknown0.11 KM

Nearby Properties

AddressPriceDistance
61 Benner Lane £ 620,0000.11 KM
53 Benner Lane £ 387,0000.11 KM
45 Benner Lane £ 385,0000.11 KM
27 Benner Lane £ 406,0000.11 KM
49 Benner Lane £ 910,0000.11 KM