High Road, Wilmington, Dartford, Kent, DA2
By Robinson Jackson
£ 550,000
Reviews
3 out of 5 stars
Robinson Jackson says ..
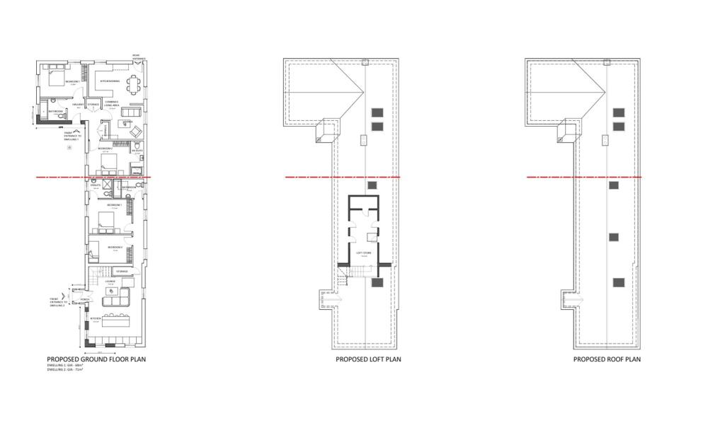
Development Opportunity – Planning Granted for Two Bungalows Robinson Jackson are delighted to offer to the market with a guide price of £550,000 - £600,000, this exciting development opportunity is located in the sought after village of Wilmington. The si...
Property Oracle says ..
This 5-bedroom bungalow on High Road, Wilmington, presents a unique opportunity for buyers seeking a project property in a well-connected location. While the property requires renovation, it offers ample space and the potential to create a comfortable family home. The proximity to schools and transportation links adds to its appeal. The garden and off-street parking are further benefits. However, prospective buyers should factor in the cost of renovations when considering the asking price.
Therefore, we give this property 6 / 10. *Disclaimer: This is our option and does constitute a recommendation or financial advice. Do your own research. *
- Price
- 7
- Condition
- 5
- Location
- 6
- Land
- 6
- Bedrooms
- 5
- Bathrooms
- 1
The heatmap indicates the level of crime in the area. The color of the heatmap indicates the crime severity and recency.
Metrics Year-on-Year
- Average area value
- 457,741.00 £Decreased by 8.07 %
- Average area rental value
- 1,925.00 £/moIncreased by 39.09 %
- Est rental Yield
- 5.05 %Increased by 51.20 %
- Crime Rate
- 2.00 %Unchanged by 0.00 %
Agent Activity
Robinson Jackson created the listing.
Nearby Schools
| Name | Type | Ofsted | Distance |
|---|---|---|---|
| North Kent College | Further Education | Good | 0.78 KM |
| Oakfield Primary Academy | Academy Converter | Good | 0.96 KM |
| Oakfield Children'S Centre | Children's Centre | 0.97 KM | |
| Wilmington Primary School | Academy Converter | Good | 1.11 KM |
| Wilmington Grammar School For Boys | Academy Converter | Good | 1.34 KM |
Images
Nearby Streets
| Name | Average Price | Average Sqft | Distance |
|---|---|---|---|
| Mayor's Lane | £ 0 | 0 | 0.00 KM |
| Linden Avenue | £ 0 | 0 | 0.00 KM |
| Trafalgar Road | £ 0 | 0 | 0.00 KM |
| Laurel Close | £ 0 | 0 | 0.00 KM |
| Heath Street | £ 0 | 0 | 0.00 KM |
Nearby Transport
| Name | NLC | TLC | Distance |
|---|---|---|---|
| Dartford | 5101 | DFD | 2.68 KM |
| Crayford | 5100 | CRY | 3.88 KM |
| Farningham Road | 5105 | FNR | 4.25 KM |
| Slade Green | 5154 | SGR | 4.89 KM |
| Swanley | 5075 | SAY | 5.56 KM |
Nearby Listings
| Address | Price | Type | Score | Distance |
|---|---|---|---|---|
| High Road, Wilmington, Dartford, Kent, DA2 | £ 550,000 | BUY | 6 / 10 | 0.00 KM |
| High Road, Dartford, Kent, DA2 | £ 230,000 | BUY | 7 / 10 | 0.04 KM |
| High Road, Wilmington, Dartford, Kent, DA2 | £ 530,000 | BUY | Unknown | 0.07 KM |
| High Road, Dartford, DA2 | £ 300,000 | BUY | 7 / 10 | 0.07 KM |
| High Road, Wilmington | £ 275,000 | BUY | 7 / 10 | 0.07 KM |
Nearby Properties
| Address | Price | Distance |
|---|---|---|
| 10 Southview Road | £ 175,000 | 0.06 KM |
| 14 Southview Road | £ 174,000 | 0.06 KM |
| 2 Southview Road | £ 325,000 | 0.06 KM |
| 4 Southview Road | £ 73,500 | 0.06 KM |
| 22 Southview Road | £ 182,000 | 0.06 KM |