River Rise Close, SE8, Deptford, LONDON, SE8
By Foxtons
£ 650,000
Reviews
3 out of 5 stars
Foxtons says ..
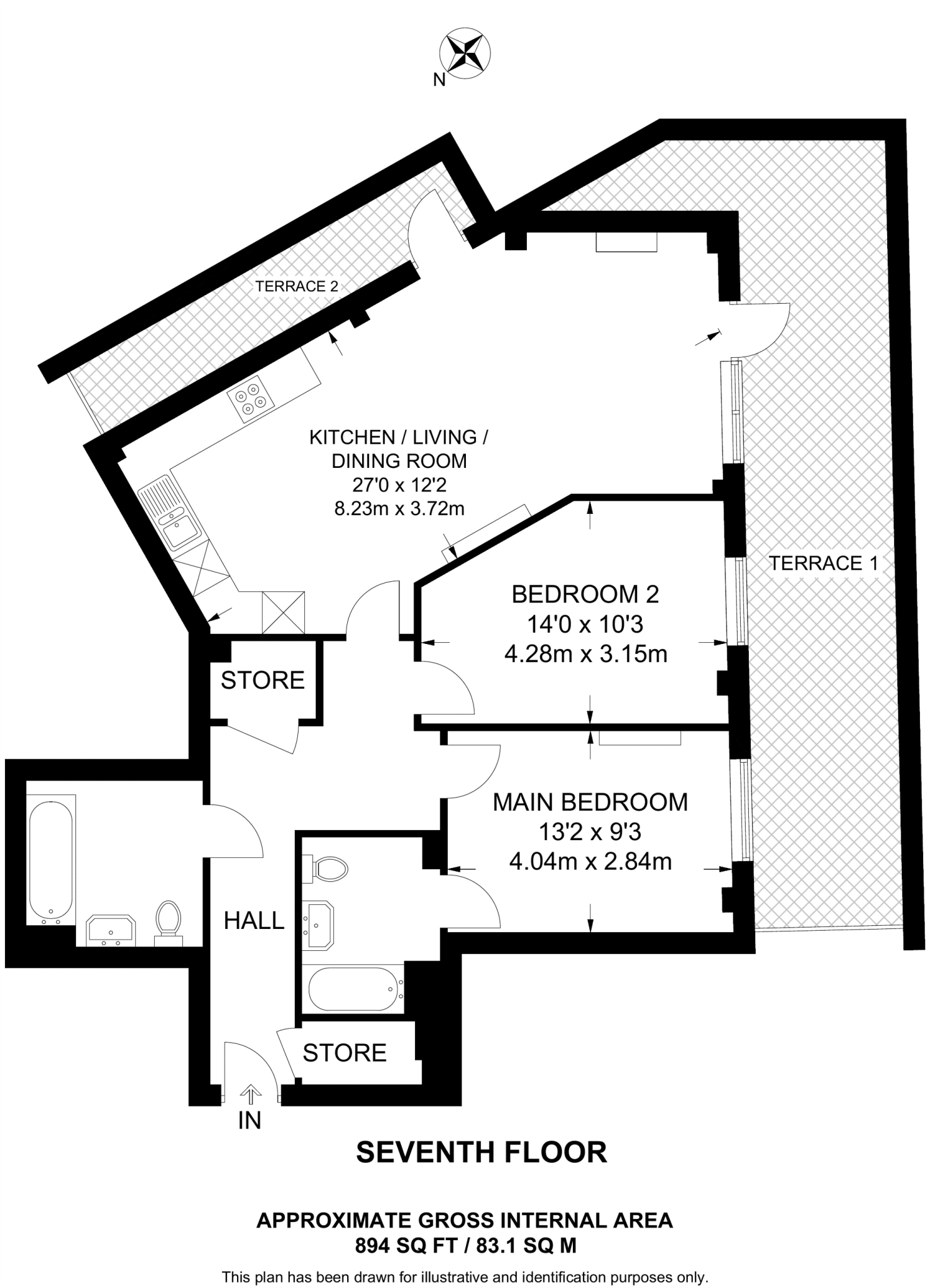
This contemporary 2 bedroom flat on the 7th floor boasts a bright and spacious reception room with modern open-plan kitchen and private balcony, 2 generously sized bedrooms and 2 modern bathrooms.
Property Oracle says ..
This property is a modern two bedroom, two bathroom flat located in Deptford, South East London. The property benefits from a large private roof terrace offering stunning views of the London skyline. The interior is modern and well-presented, with a contemporary kitchen and light and airy living space. The location is convenient, with good transport links and several highly-rated schools nearby. While the plot size is zero, the roof terrace provides significant outdoor space. The list price is slightly higher than the average price per square foot in the area, however, given the modern condition, desirable location and private terrace, it may represent good value for money.
Therefore, we give this property 7 / 10. *Disclaimer: This is our option and does constitute a recommendation or financial advice. Do your own research. *
- Price
- 7
- Condition
- 9
- Location
- 8
- Land
- 7
- Bedrooms
- 2
- Bathrooms
- 2
- Sqft (est)
- 894.48
The heatmap indicates the level of crime in the area. The color of the heatmap indicates the crime severity and recency.
Metrics Year-on-Year
- Average area value
- 460,000.00 £Decreased by 0.33 %
- Est sale value
- 559,050.00 £Decreased by 7.68 %
- Average area rental value
- 2,264.00 £/moIncreased by 1.25 %
- Est letting value
- 2,683.44 £/moUnchanged by 0.00 %
- Est rental Yield
- 5.91 %Increased by 1.72 %
- Crime Rate
- 9.00 %Unchanged by 0.00 %
Agent Activity
Foxtons created the listing.
Nearby Schools
| Name | Type | Ofsted | Distance |
|---|---|---|---|
| Marathon Science School | Other Independent School | Good | 0.33 KM |
| Deptford Park Primary School | Community School | Good | 0.43 KM |
| Sir Francis Drake Primary School | Community School | Requires improvement | 0.73 KM |
| Clyde Early Childhood Centre | Children's Centre | 0.96 KM | |
| St John'S Roman Catholic Primary School | Voluntary Aided School | Good | 0.97 KM |
Images
Nearby Streets
| Name | Average Price | Average Sqft | Distance |
|---|---|---|---|
| Lighter Close | £ 0 | 0 | 0.00 KM |
| Cary Avenue | £ 0 | 0 | 0.00 KM |
| Worgan Street | £ 0 | 0 | 0.00 KM |
| Helsinki Square | £ 0 | 0 | 0.00 KM |
| Kezia Street | £ 0 | 0 | 0.00 KM |
Nearby Transport
| Name | NLC | TLC | Distance |
|---|---|---|---|
| Surrey Quays | 1083 | SQE | 0.90 KM |
| New Cross | 5150 | NWX | 1.33 KM |
| Canada Water | 1659 | ZCW | 1.33 KM |
| Rotherhithe | 1039 | ROE | 1.72 KM |
| South Bermondsey | 5425 | SBM | 1.73 KM |
Nearby Listings
| Address | Price | Type | Score | Distance |
|---|---|---|---|---|
| River Rise Close, SE8, Deptford, LONDON, SE8 | £ 650,000 | BUY | 7 / 10 | 0.00 KM |
| River Rise Close, Surrey Quays | £ 425,000 | BUY | 6 / 10 | 0.01 KM |
| River Rise Close, Surrey Quays | £ 425,000 | BUY | 6 / 10 | 0.01 KM |
| Yeoman Street, Rotherhithe, SE8 | £ 385,000 | BUY | 6 / 10 | 0.02 KM |
| Copenhagen Court, Yeoman Street, London, SE8 5ER | £ 400,000 | BUY | 6 / 10 | 0.05 KM |
Nearby Properties
| Address | Price | Distance |
|---|---|---|
| 32 Yeoman Street | £ 365,000 | 0.05 KM |
| 10 Yeoman Street | £ 410,000 | 0.05 KM |
| 2 Yeoman Street | £ 280,000 | 0.05 KM |
| 12 Yeoman Street | £ 287,500 | 0.06 KM |
| 24 Yeoman Street | £ 249,999 | 0.11 KM |