Woburn Avenue, Theydon Bois, Epping, Essex, CM16
By Neil King Residential
£ 675,000
Reviews
3 out of 5 stars
Neil King Residential says ..
Offers over £675,000 - This charming cottage, built circa 1894, has been extended and lovingly restored whilst retaining many of it's delightful features. Woburn avenue is on the edge of Theydon Bois green, perfectly positioned for Epping Forest.
Property Oracle says ..
This charming three-bedroom terraced house in Theydon Bois, Essex, presents a compelling proposition for prospective buyers. Located on Woburn Avenue, close to the village green and within walking distance of Theydon Bois Primary School, the property offers a desirable combination of village living and family-friendly amenities. The images show a well-maintained property that has evidently seen recent improvement and modernisations. The property features a modern fitted kitchen, and three bedrooms and a modern bathroom. The interior boasts attractive features, such as a fireplace, hardwood flooring and built in storage. This enhances the property’s overall appeal. The substantial rear garden offers significant outdoor space. The current asking price aligns with the average pricing of similar houses in the area. This price reflects the desirable location, but a more precise evaluation necessitates access to detailed information regarding the property’s square footage and comparison with similar properties for sale. Given the currently available information, this property represents a strong contender for buyers in the area. Further due diligence on specific details, such as the property’s exact square footage and plot size, along with a full structural survey, will ensure an informed decision-making process.
Therefore, we give this property 6 / 10. *Disclaimer: This is our option and does constitute a recommendation or financial advice. Do your own research. *
- Price
- 7
- Condition
- 7
- Location
- 7
- Land
- 6
- Bedrooms
- 3
- Bathrooms
- 1
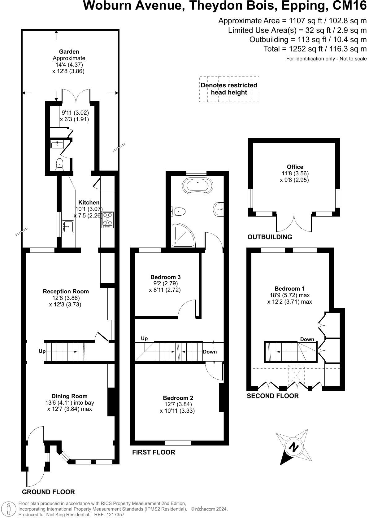
- Sqft (est)
- 1,252.00
The heatmap indicates the level of crime in the area. The color of the heatmap indicates the crime severity and recency.
Metrics Year-on-Year
- Average area value
- 1,148,360.00 £Increased by 8.83 %
- Est sale value
- 608,472.00 £Decreased by 17.06 %
- Average area rental value
- 2,257.00 £/moDecreased by 21.96 %
- Est letting value
- 0.00 £/moDecreased by 100.00 %
- Est rental Yield
- 2.36 %Decreased by 28.27 %
- Crime Rate
- 13.00 %Unchanged by 0.00 %
Agent Activity
Neil King Residential marked this listing as sold.
Neil King Residential created the listing.
Nearby Schools
| Name | Type | Ofsted | Distance |
|---|---|---|---|
| Theydon Bois Primary School | Academy Converter | 0.58 KM | |
| Davenant Foundation School | Academy Converter | Good | 1.59 KM |
| Hereward Primary School | Academy Converter | 1.69 KM | |
| Debden Park High School | Academy Converter | Outstanding | 1.89 KM |
| St John Fisher Catholic Primary School | Voluntary Aided School | Good | 2.29 KM |
Images
Nearby Streets
| Name | Average Price | Average Sqft | Distance |
|---|---|---|---|
| Maple Close | £ 1,500,000 | 0 | 0.00 KM |
| Station Hill | £ 0 | 0 | 0.00 KM |
| M11 | £ 0 | 0 | 0.00 KM |
Nearby Listings
| Address | Price | Type | Score | Distance |
|---|---|---|---|---|
| Hornbeam Close, Theydon Bois, CM16 | £ 750,000 | BUY | 7 / 10 | 0.13 KM |
| The Green, Theydon Bois | £ 850,000 | BUY | 6 / 10 | 0.14 KM |
| The Green, Theydon Bois | £ 825,000 | BUY | 6 / 10 | 0.14 KM |
| Blackacre Road, Theydon Bois, CM16 | £ 750,000 | BUY | 6 / 10 | 0.16 KM |
| 52 Hornbeam Road, Theydon Bois, Epping, Essex | £ 699,995 | BUY | Unknown | 0.16 KM |
Nearby Properties
| Address | Price | Distance |
|---|---|---|
| 13 Hornbeam Close | £ 560,000 | 0.10 KM |
| 10 Hornbeam Close | £ 510,000 | 0.10 KM |
| 14 Hornbeam Close | £ 620,000 | 0.10 KM |
| 22 Hornbeam Close | £ 595,000 | 0.10 KM |
| 3 Hornbeam Close | £ 770,000 | 0.10 KM |