Peckitt Street, York, YO1 9SF
Hunters logo

Peckitt Street, York, YO1 9SF

By Hunters

£ 995,000

Hunters says ..

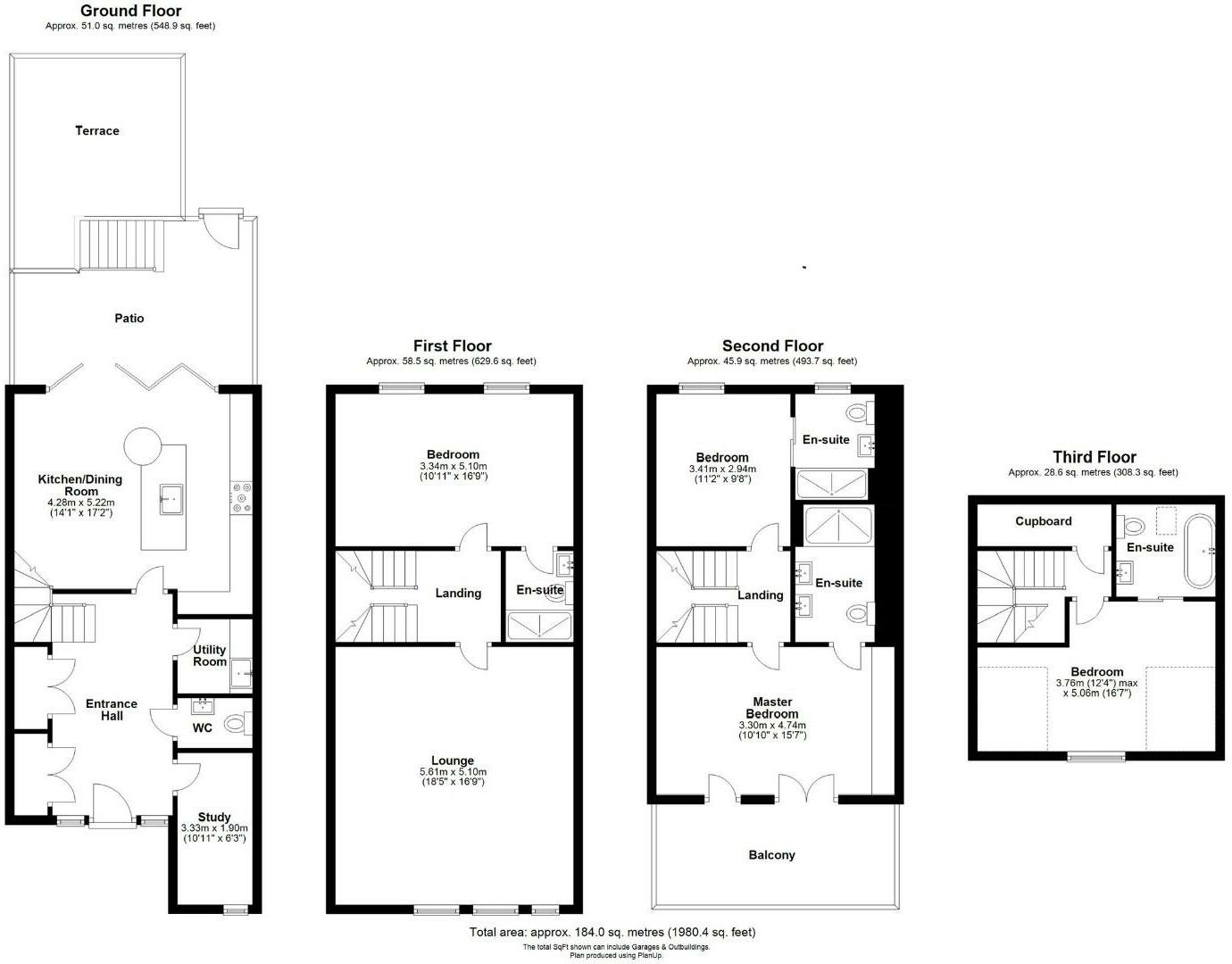
Forming part of an exclusive development in the heart of York’s city centre, Old School House is a remarkable property that has been tastefully converted to the highest of standards. Upon entering the property you have a spacious entrance hall with a generous amount of built in storage space...

Bedrooms
4
Bathrooms
4

The heatmap indicates the level of crime in the area. The color of the heatmap indicates the crime severity and recency.

Metrics Year-on-Year

Average area value
366,047.00 £
Decreased by 11.45 %
from 413,395.00 £
Average area rental value
1,355.00 £/mo
Decreased by 4.24 %
from 1,415.00 £/mo
Est rental Yield
4.44 %
Increased by 8.03 %
from 4.11 %
Crime Rate
19.00 %
Unchanged by 0.00 %
from 19.00 %

Agent Activity

  • Hunters created the listing.

Nearby Schools

NameTypeOfstedDistance
Fishergate Primary SchoolCommunity SchoolGood0.82 KM
Scarcroft Primary SchoolAcademy Converter0.96 KM
St George'S Catholic Primary School - A Catholic Voluntary AcademyAcademy Converter0.99 KM
St Wilfrid'S Catholic Primary School - A Catholic Voluntary AcademyAcademy Converter1.04 KM
York St John UniversityHigher Education Institutions1.04 KM

Images

3-396A0681.jpg 12-396A0702.jpg 4-396A0683.jpg 28-IMG_4094.jpg 11-396A0697.jpg 8-396A0691.jpg 1-396A0673.jpg 9-396A0693.jpg 6-396A0688.jpg 5-396A0685.jpg 15-396A0713.jpg 26-396A0762.jpg 21-396A0742.jpg 23-396A0752.jpg 20-396A0738.jpg 19-396A0733.jpg 13-396A0706.jpg 30-IMG_4097.jpg 2-396A0675.jpg 27-IMG_4091.jpg 17-396A0724.jpg 22-396A0750.jpg 18-396A0731.jpg 29-IMG_4095.jpg 33-IMG_4109.jpg 16-396A0720.jpg 24-396A0753.jpg 14-396A0707.jpg

Nearby Streets

NameAverage PriceAverage SqftDistance
King's Staith £ 1,000,00000.00 KM
Bishopthorpegate Street £ 230,00000.00 KM
Church Lane £ 000.00 KM
Castlegate £ 220,00000.00 KM
Bishopgate Street £ 000.00 KM

Nearby Transport

NameNLCTLCDistance
York8263YRK1.28 KM
Poppleton8254POP7.71 KM

Nearby Listings

AddressPriceTypeScoreDistance
Peckitt Street, York, YO1 9SF £ 995,000BUYUnknown0.00 KM
Peckitt Street, York, YO1 9SF £ 995,000BUY8 / 100.00 KM
South Esplanade, York, North Yorkshire, YO1 £ 830,000BUY7 / 100.04 KM
Tower Place, York, North Yorkshire, YO1 £ 475,000BUYUnknown0.07 KM
Tower Place, York, YO1 9RZ £ 565,000BUY6 / 100.09 KM

Nearby Properties

AddressPriceDistance
3 Peckitt Street £ 830,0000.02 KM
1 Tower Place £ 440,0000.07 KM
7 Tower Place £ 249,9500.08 KM
5 Tower Place £ 440,0000.08 KM
8 Tower Place £ 249,0000.08 KM