haart says ..
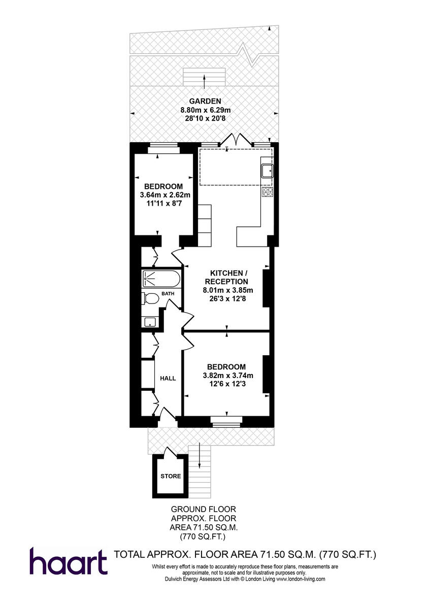
High-spec stunning 2-bedroom ground floor garden flat on Montpelier Road. Combining modern design with comfort, offering a stylish and spacious home in a prime location
Property Oracle says ..
Therefore, we give this property 8 / 10. *Disclaimer: This is our option and does constitute a recommendation or financial advice. Do your own research. *
- Price
- 9
- Condition
- 9
- Location
- 8
- Land
- 7
- Bedrooms
- 2
- Bathrooms
- 1
- Sqft (est)
- 1,183.97
The heatmap indicates the level of crime in the area. The color of the heatmap indicates the crime severity and recency.
Metrics Year-on-Year
- Average area value
- 759,842.00 £Increased by 24.51 %
- Est sale value
- 981,511.13 £Increased by 23.55 %
- Average area rental value
- 2,535.00 £/moDecreased by 1.90 %
- Est letting value
- 2,367.94 £/moUnchanged by 0.00 %
- Est rental Yield
- 4.00 %Decreased by 21.26 %
- Crime Rate
- 5.00 %Unchanged by 0.00 %
from 610,284.00 £
from 794,443.87 £
from 2,584.00 £/mo
from 2,367.94 £/mo
from 5.08 %
from 5.00 %
Agent Activity
haart created the listing.
Nearby Schools
| Name | Type | Ofsted | Distance |
|---|---|---|---|
| John Donne Primary School | Academy Converter | 0.29 KM | |
| East Peckham Children'S Centre | Children's Centre | 0.42 KM | |
| Nell Gwynn Nursery School | Local Authority Nursery School | Good | 0.50 KM |
| Harris Primary Academy Peckham Park | Academy Converter | Good | 0.65 KM |
| The St Thomas The Apostle College | Voluntary Aided School | Outstanding | 0.65 KM |
Images
Nearby Streets
| Name | Average Price | Average Sqft | Distance |
|---|---|---|---|
| Carlton Grove | £ 350,000 | 0 | 0.00 KM |
| Woodland Trail | £ 575,000 | 0 | 0.00 KM |
| Nazareth Gardens | £ 900,000 | 0 | 0.00 KM |
| Old Kent Road | £ 0 | 0 | 0.00 KM |
| McKerrell Road | £ 259,000 | 0 | 0.00 KM |
Nearby Transport
| Name | NLC | TLC | Distance |
|---|---|---|---|
| Queens Road Peckham | 5424 | QRP | 0.35 KM |
| Peckham Rye | 5423 | PMR | 1.20 KM |
| Nunhead | 5068 | NHD | 1.27 KM |
| South Bermondsey | 5425 | SBM | 1.55 KM |
| New Cross Gate | 5345 | NXG | 2.17 KM |
Nearby Listings
| Address | Price | Type | Score | Distance |
|---|---|---|---|---|
| Montpelier Road, London | £ 725,000 | BUY | 8 / 10 | 0.00 KM |
| Montpelier Road, London, SE15 | £ 500,000 | BUY | 7 / 10 | 0.02 KM |
| Montpelier Road, London, SE15 | £ 575,000 | BUY | 6 / 10 | 0.02 KM |
| Montpelier Road, London, SE15 | £ 1,150,000 | BUY | 5 / 10 | 0.09 KM |
| Carlton Grove, Peckham, SE15 | £ 300,000 | BUY | 6 / 10 | 0.09 KM |
Nearby Properties
| Address | Price | Distance |
|---|---|---|
| 34 Montpelier Road | £ 883,000 | 0.07 KM |
| 20 Montpelier Road | £ 360,000 | 0.07 KM |
| 22 Montpelier Road | £ 1,385,000 | 0.07 KM |
| 6 Montpelier Road | £ 68,000 | 0.07 KM |
| 40a Montpelier Road | £ 403,595 | 0.07 KM |