Huntspill Road, Highbridge, Somerset, TA9
Greenslade Taylor Hunt logo

Huntspill Road, Highbridge, Somerset, TA9

By Greenslade Taylor Hunt

£ 325,000

Reviews

2 out of 5 stars

Greenslade Taylor Hunt says ..

Period detached house with 4 bedrooms in a sought-after location. The property boasts private parking and a spacious garden. The home requires modernisation and renovation with the exception of the bathrooms.

Property Oracle says ..

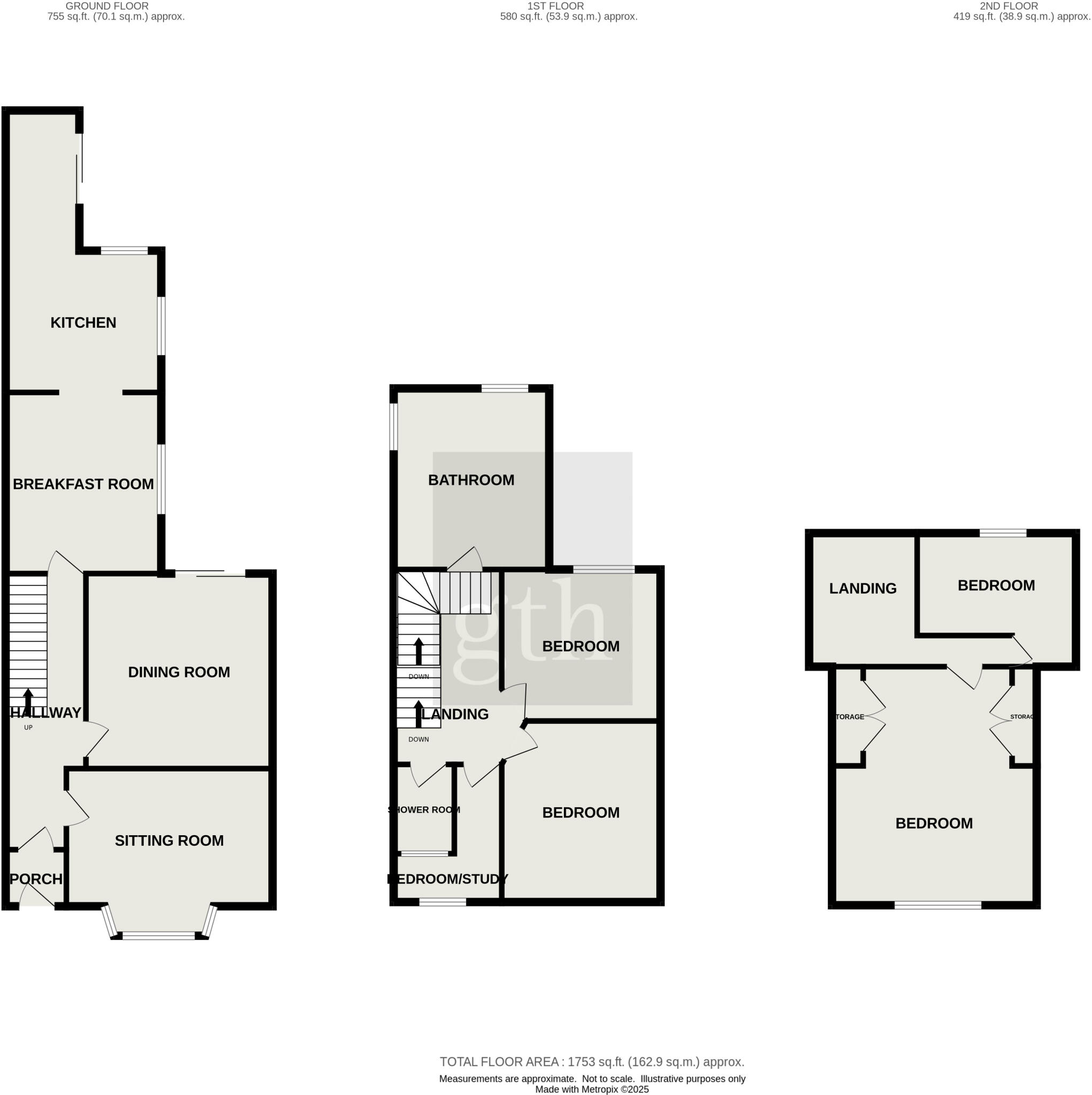
This detached property on Huntspill Road, Highbridge, offers a substantial 1,753 sqft of living space with four bedrooms and one bathroom. While the location benefits from proximity to schools and transportation, the property is in need of extensive renovation. The interior shows signs of wear and tear, and the kitchen and bathrooms require modernization. The garden, though present, needs landscaping. The property includes a garage, which also appears to be in poor condition. Considering the average price per square foot in the area and the property’s condition, the asking price of £325,000 seems competitive, presenting an opportunity for buyers willing to invest in a comprehensive renovation project.

Therefore, we give this property 5 / 10. *Disclaimer: This is our option and does constitute a recommendation or financial advice. Do your own research. *

Price
7
Condition
3
Location
7
Land
6
Bedrooms
4
Bathrooms
1
Sqft (est)
1,753.00

The heatmap indicates the level of crime in the area. The color of the heatmap indicates the crime severity and recency.

Metrics Year-on-Year

Average area value
408,738.00 £
Increased by 56.86 %
from 260,569.00 £
Est sale value
1,109,649.00 £
Increased by 183.86 %
from 390,919.00 £
Average area rental value
1,025.00 £/mo
Increased by 11.29 %
from 921.00 £/mo
Est letting value
1,753.00 £/mo
from 0.00 £/mo
Est rental Yield
3.01 %
Decreased by 29.01 %
from 4.24 %
Crime Rate
41.00 %
Unchanged by 0.00 %
from 41.00 %

Agent Activity

  • Greenslade Taylor Hunt created the listing.

Nearby Schools

NameTypeOfstedDistance
Sedgemoor NorthChildren's Centre0.79 KM
Churchfield Church SchoolAcademy Sponsor LedGood0.88 KM
West Huntspill Primary AcademyAcademy Sponsor Led0.98 KM
The King Alfred School An AcademyAcademy Sponsor Led1.03 KM
St Andrew'S Church Of England Voluntary Controlled Junior SchoolVoluntary Controlled SchoolGood2.58 KM

Images

Picture No. 30 Picture No. 11 Picture No. 58 Picture No. 39 Picture No. 51 Picture No. 50 Picture No. 52 Picture No. 21 Picture No. 60 Picture No. 16 Picture No. 07 Picture No. 17 Picture No. 25 Picture No. 40 Picture No. 19 Picture No. 49 Picture No. 57 Picture No. 06 Picture No. 08 Picture No. 02 Picture No. 37 Picture No. 46 Picture No. 31 Picture No. 12 Picture No. 42 Picture No. 18 Picture No. 14 Picture No. 45 Picture No. 10 Picture No. 13

Nearby Streets

NameAverage PriceAverage SqftDistance
Ryeland Street £ 272,00000.00 KM
Charmoise Road £ 000.00 KM
Texel Close £ 000.00 KM
A38 £ 127,47500.00 KM
Jacob Crescent £ 000.00 KM

Nearby Transport

NameNLCTLCDistance
Highbridge And Burnham3314HIG0.94 KM

Nearby Listings

AddressPriceTypeScoreDistance
Huntspill Road, Highbridge, Somerset, TA9 £ 325,000BUY5 / 100.00 KM
Huntspill Road Highbridge TA9 3DQ £ 310,000BUY7 / 100.01 KM
Huntspill Road, Highbridge, Somerset £ 230,000BUY7 / 100.01 KM
Huntspill Road, Highbridge, Somerset, TA9 £ 235,000BUY7 / 100.05 KM
Ryeland Street, Highbridge, Somerset, TA9 £ 249,950BUY7 / 100.07 KM

Nearby Properties

AddressPriceDistance
27 Huntspill Road £ 140,9500.01 KM
55a Huntspill Road £ 475,0000.01 KM
57 Huntspill Road £ 131,0000.01 KM
35 Huntspill Road £ 150,0000.01 KM
55 Huntspill Road £ 220,0000.01 KM