Garden Development Plots, Bristol Road, BS25
By NANCEKIVELL & PARTNERS LTD
£ 220,000
Reviews
3 out of 5 stars
NANCEKIVELL & PARTNERS LTD says ..
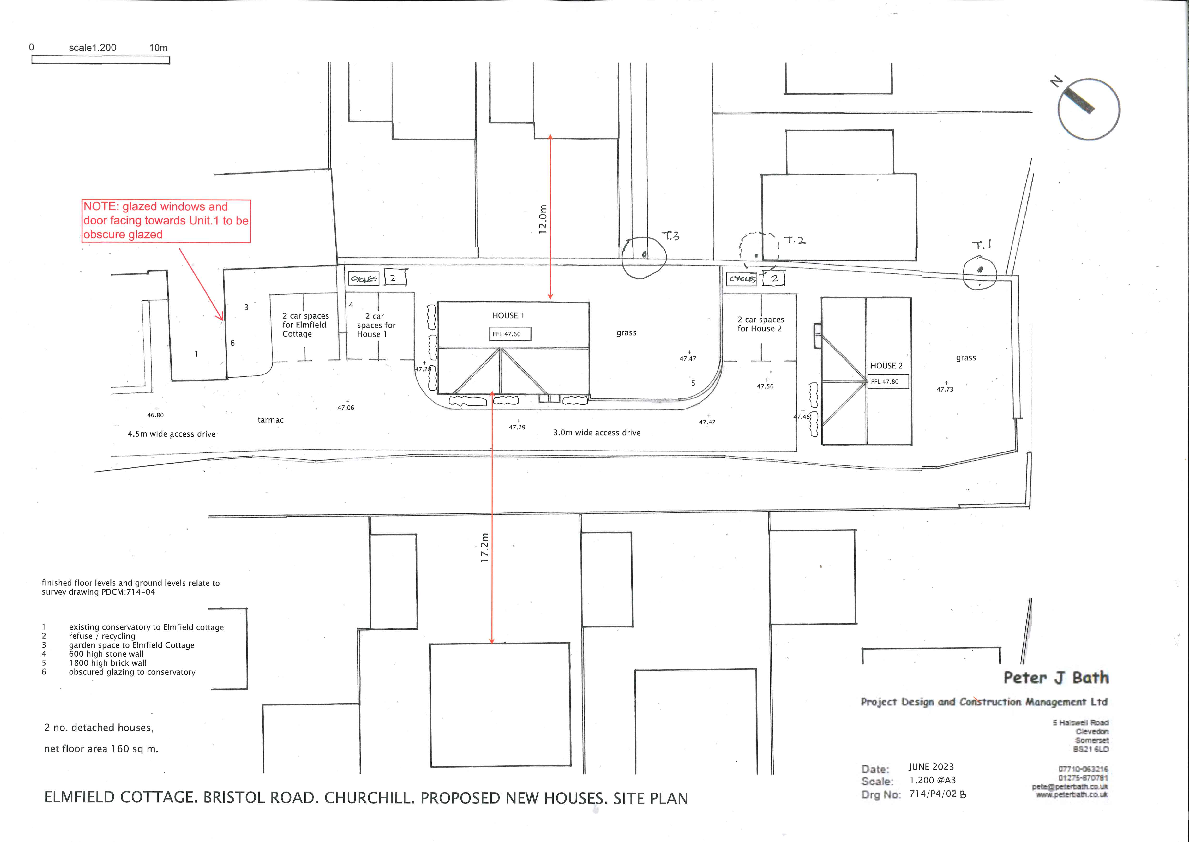
An opportunity to purchase residential development plot with granted planning permission for 2 residential houses with gardens & parking spots going FOR AUCTION if not Sold before on Tuesday 14th October 2025 at Mendip Spring Golf Club, Honeyhall Lane, Congresbury, BS49 5JT for a 19:00pm start.
Property Oracle says ..
This is a plot of land located on Bristol Road in North Somerset. The listing suggests it’s a development opportunity. While the location is desirable, with good schools and amenities nearby, the land itself requires significant renovation. The asking price of £220,000 reflects the fact that this is land only and needs work, making it a potentially attractive investment.
Therefore, we give this property 6 / 10. *Disclaimer: This is our option and does constitute a recommendation or financial advice. Do your own research. *
- Price
- 9
- Condition
- 3
- Location
- 7
- Land
- 8
- Bedrooms
- 3
- Bathrooms
- 0
The heatmap indicates the level of crime in the area. The color of the heatmap indicates the crime severity and recency.
Metrics Year-on-Year
- Average area value
- 881,250.00 £Increased by 10.74 %
- Average area rental value
- 1,300.00 £/moDecreased by 43.36 %
- Est rental Yield
- 1.77 %Decreased by 48.84 %
- Crime Rate
- 11.00 %Unchanged by 0.00 %
Agent Activity
NANCEKIVELL & PARTNERS LTD created the listing.
Nearby Schools
| Name | Type | Ofsted | Distance |
|---|---|---|---|
| Churchill Church Of England Primary School | Voluntary Controlled School | Good | 0.65 KM |
| Churchill Academy & Sixth Form | Academy Converter | Outstanding | 2.16 KM |
| Shipham Church Of England First School | Academy Converter | 2.51 KM | |
| Sandford Primary School | Academy Converter | 3.86 KM | |
| Sidcot School | Other Independent School | 4.23 KM |
Images
Nearby Streets
| Name | Average Price | Average Sqft | Distance |
|---|---|---|---|
| Warren View | £ 0 | 0 | 0.00 KM |
| Six Acres Close | £ 0 | 0 | 0.00 KM |
| Jews Lane | £ 0 | 0 | 0.00 KM |
| Rowan Way | £ 0 | 0 | 0.00 KM |
| Brook Gardens | £ 400,000 | 0 | 0.00 KM |
Nearby Transport
| Name | NLC | TLC | Distance |
|---|---|---|---|
| Yatton | 3392 | YAT | 7.32 KM |
Nearby Listings
| Address | Price | Type | Score | Distance |
|---|---|---|---|---|
| Garden Development Plots, Bristol Road, BS25 | £ 220,000 | BUY | 6 / 10 | 0.00 KM |
| Garden Development Plots, Bristol Road, BS25 | £ 250,000 | BUY | 8 / 10 | 0.00 KM |
| Bristol Road, Churchill, Winscombe, Somerset, BS25 | £ 610,000 | BUY | 7 / 10 | 0.04 KM |
| Exceptional nearly new home situated within the village of Churchill | £ 550,000 | BUY | 7 / 10 | 0.09 KM |
| Warren View, Churchill | £ 615,000 | BUY | 8 / 10 | 0.10 KM |
Nearby Properties
| Address | Price | Distance |
|---|---|---|
| 7 Granfield Gardens | £ 360,000 | 0.10 KM |
| 1 Granfield Gardens | £ 420,000 | 0.10 KM |
| 2 Granfield Gardens | £ 285,000 | 0.10 KM |
| 6 Granfield Gardens | £ 325,000 | 0.10 KM |
| Lenville | £ 450,000 | 0.15 KM |