Station Road, Strood, Rochester, Kent, ME2
By Quealy & Co
£ 250,000
Reviews
3 out of 5 stars
Quealy & Co says ..
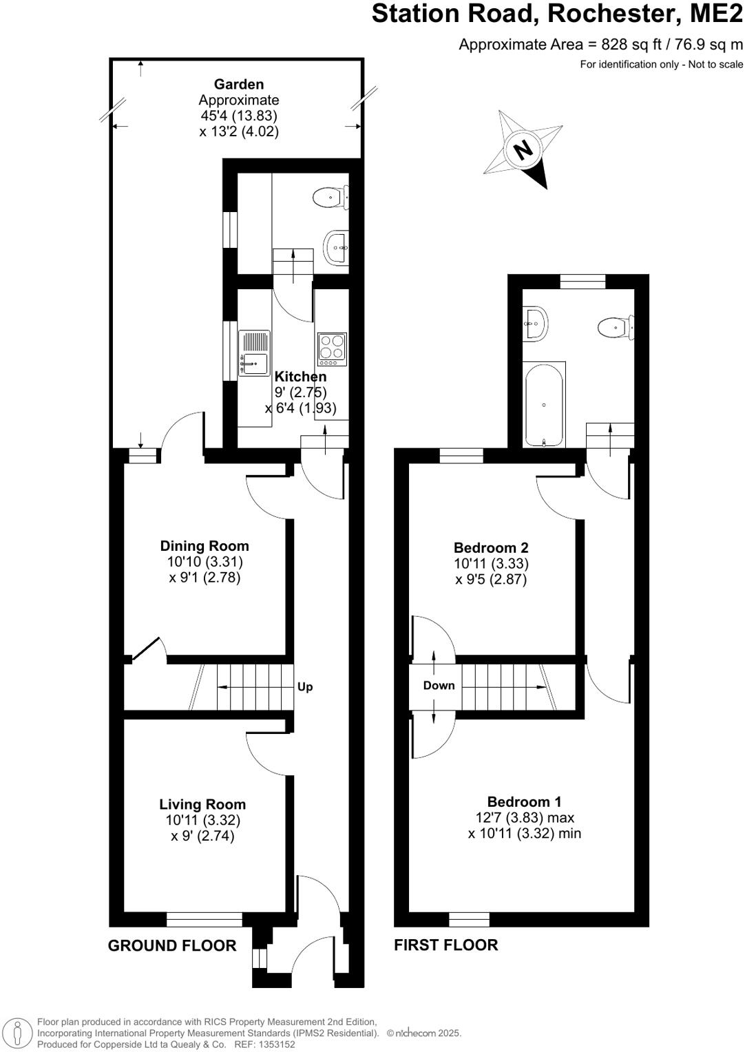
Fully REFURBISHED !!! / New Kitchen / Downstairs WC / Two Reception Rooms / Few Minutes To Train Station / Herringbone Flooring / Brand New Bathroom / MUST SEE PROPERTY !!!
Property Oracle says ..
This is a two-bedroom terraced house on Station Road, Strood. The property benefits from a recent renovation, presenting a modern interior. Its location is a strong point, with close proximity to Strood station and local schools. While the garden is mainly gravelled, it still provides outdoor space. The asking price of £250,000 seems fair considering the condition and location, aligning with the local market. Overall, this property would likely appeal to first-time buyers or commuters seeking a well-presented home with easy access to amenities and transport links.
Therefore, we give this property 7 / 10. *Disclaimer: This is our option and does constitute a recommendation or financial advice. Do your own research. *
- Price
- 7
- Condition
- 8
- Location
- 7
- Land
- 6
- Bedrooms
- 2
- Bathrooms
- 1
The heatmap indicates the level of crime in the area. The color of the heatmap indicates the crime severity and recency.
Metrics Year-on-Year
- Average area value
- 224,000.00 £Decreased by 29.61 %
- Average area rental value
- 1,116.00 £/moDecreased by 12.40 %
- Est rental Yield
- 5.98 %Increased by 24.58 %
- Crime Rate
- 10.00 %Unchanged by 0.00 %
Agent Activity
Quealy & Co created the listing.
Nearby Schools
| Name | Type | Ofsted | Distance |
|---|---|---|---|
| English Martyrs' Catholic Primary School | Voluntary Aided School | Good | 0.32 KM |
| Hilltop Primary Academy | Academy Converter | 0.74 KM | |
| Gun Lane Children'S Centre | Children's Centre | 0.77 KM | |
| All Faiths Children'S Academy | Academy Converter | Good | 0.78 KM |
| Temple Mill Primary School | Academy Sponsor Led | Good | 1.06 KM |
Images
Nearby Streets
| Name | Average Price | Average Sqft | Distance |
|---|---|---|---|
| Watermill Close | £ 0 | 0 | 0.00 KM |
| RRX60 | £ 280,000 | 0 | 0.00 KM |
| Taylor's Lane | £ 0 | 0 | 0.00 KM |
| Gas House Road | £ 0 | 0 | 0.00 KM |
| Edward Street | £ 0 | 0 | 0.00 KM |
Nearby Transport
| Name | NLC | TLC | Distance |
|---|---|---|---|
| Strood (Kent) | 5191 | SOO | 0.24 KM |
| Rochester | 5203 | RTR | 1.81 KM |
| Chatham | 5199 | CTM | 3.05 KM |
| Higham | 5202 | HGM | 4.91 KM |
| Cuxton | 5201 | CUX | 5.11 KM |
Nearby Listings
| Address | Price | Type | Score | Distance |
|---|---|---|---|---|
| Station Road, Strood, Rochester, Kent, ME2 | £ 250,000 | BUY | 7 / 10 | 0.00 KM |
| Station Road, Strood, Rochester, Kent, ME2 | £ 250,000 | BUY | 7 / 10 | 0.05 KM |
| Station Road, Strood, Rochester, Kent, ME2 | £ 230,000 | BUY | 6 / 10 | 0.05 KM |
| Station Road, Strood, Rochester, ME2 | £ 240,000 | BUY | 6 / 10 | 0.05 KM |
| Station Road, Strood, Rochester, ME2 4BS | £ 250,000 | BUY | 6 / 10 | 0.05 KM |
Nearby Properties
| Address | Price | Distance |
|---|---|---|
| 73 Station Road | £ 61,000 | 0.04 KM |
| 75 Station Road | £ 225,750 | 0.04 KM |
| 74 Station Road | £ 117,000 | 0.04 KM |
| 66 Station Road | £ 216,000 | 0.04 KM |
| 68 Station Road | £ 195,000 | 0.04 KM |