Church Road, Stowupland, Stowmarket, Suffolk, IP14
British Homesellers logo

Church Road, Stowupland, Stowmarket, Suffolk, IP14

By British Homesellers

£ 275,000

Reviews

3 out of 5 stars

British Homesellers says ..

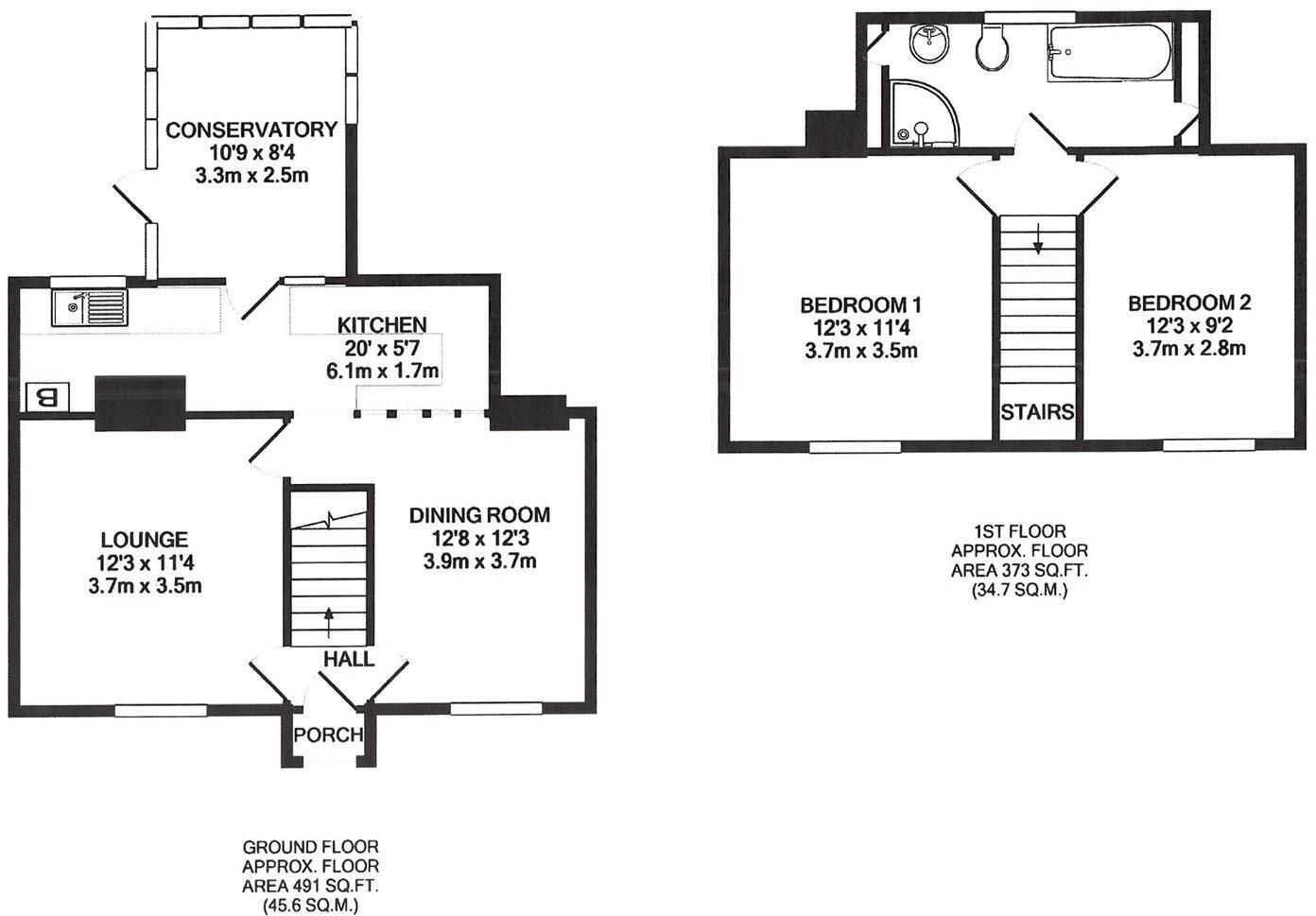
Charming Two Bedroom Semi-Detached Cottage in Stowupland Key Features Two Bedrooms • Semi-Detached Cottage • Conservatory • Gas Central Heating • Combi Boiler • Double Glazing • Single Garage • Off-Road Parking for Three Vehicles • Modernise...

Property Oracle says ..

This charming cottage on Church Road in Stowupland offers a blend of traditional features and modern living. The property benefits from its proximity to local schools and transportation links, making it a convenient location for families and commuters. The interior is well-maintained, with a modern kitchen and bathroom, while the garden provides a pleasant outdoor space. The property is competitively priced compared to the local average, making it an attractive option for potential buyers.

Therefore, we give this property 7 / 10. *Disclaimer: This is our option and does constitute a recommendation or financial advice. Do your own research. *

Price
8
Condition
7
Location
7
Land
7
Bedrooms
2
Bathrooms
1
Sqft (est)
948.73

The heatmap indicates the level of crime in the area. The color of the heatmap indicates the crime severity and recency.

Metrics Year-on-Year

Average area value
654,861.00 £
Increased by 78.04 %
from 367,826.00 £
Est sale value
343,440.26 £
Increased by 5.85 %
from 324,465.66 £
Average area rental value
650.00 £/mo
Decreased by 51.05 %
from 1,328.00 £/mo
Est letting value
0.00 £/mo
Decreased by 100.00 %
from 948.73 £/mo
Est rental Yield
1.19 %
Decreased by 72.52 %
from 4.33 %
Crime Rate
7.00 %
Unchanged by 0.00 %
from 7.00 %

Agent Activity

  • British Homesellers created the listing.

Nearby Schools

NameTypeOfstedDistance
Freeman Community Primary SchoolAcademy Converter0.11 KM
Stowupland High SchoolAcademy ConverterRequires improvement0.48 KM
Cedars Park Community Primary SchoolAcademy ConverterRequires improvement2.16 KM
Old Newton Church Of England Primary SchoolAcademy ConverterGood2.93 KM
Combs Ford Primary SchoolAcademy Converter3.89 KM

Images

Picture No. 33 Picture No. 08 Picture No. 09 Picture No. 07 Picture No. 06 Picture No. 13 Picture No. 11 Picture No. 22 Picture No. 16 Picture No. 17 Picture No. 21 Picture No. 18 Picture No. 20 Picture No. 19 Picture No. 24 Picture No. 28 Picture No. 29 Picture No. 30 Picture No. 26 Picture No. 27 Picture No. 25 Picture No. 31

Nearby Streets

NameAverage PriceAverage SqftDistance
Clover Close £ 112,50000.00 KM
Celadine Close £ 430,00000.00 KM
Daffodil Close £ 350,00000.00 KM
Crown Meadow £ 499,00000.00 KM
Dewberry View £ 350,00000.00 KM

Nearby Transport

NameNLCTLCDistance
Stowmarket7355SMK3.52 KM
Needham Market7354NMT5.90 KM

Nearby Listings

AddressPriceTypeScoreDistance
Church Road, Stowupland, Stowmarket, Suffolk, IP14 £ 275,000BUY7 / 100.00 KM
Church Road, Stowupland £ 350,000BUY7 / 100.07 KM
Greenfields, Church Road, Stowupland, Suffolk, IP14 £ 795,000BUY6 / 100.19 KM
Church Road, Stowupland, Stowmarket £ 400,000BUY6 / 100.20 KM
Oxlip Way, Stowupland, Stowmarket £ 275,000BUY7 / 100.28 KM

Nearby Properties

AddressPriceDistance
Inglewood £ 335,0000.20 KM
The Old Vicarage £ 490,0000.20 KM
Beam-end £ 310,0000.20 KM
Oak Gates £ 320,0000.20 KM
Coringa £ 355,0000.20 KM