ST
Higher Bore Street, Bodmin, Cornwall, PL31
By Stratton Creber
£ 65,000
Stratton Creber says ..
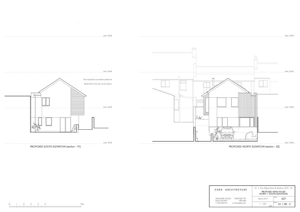
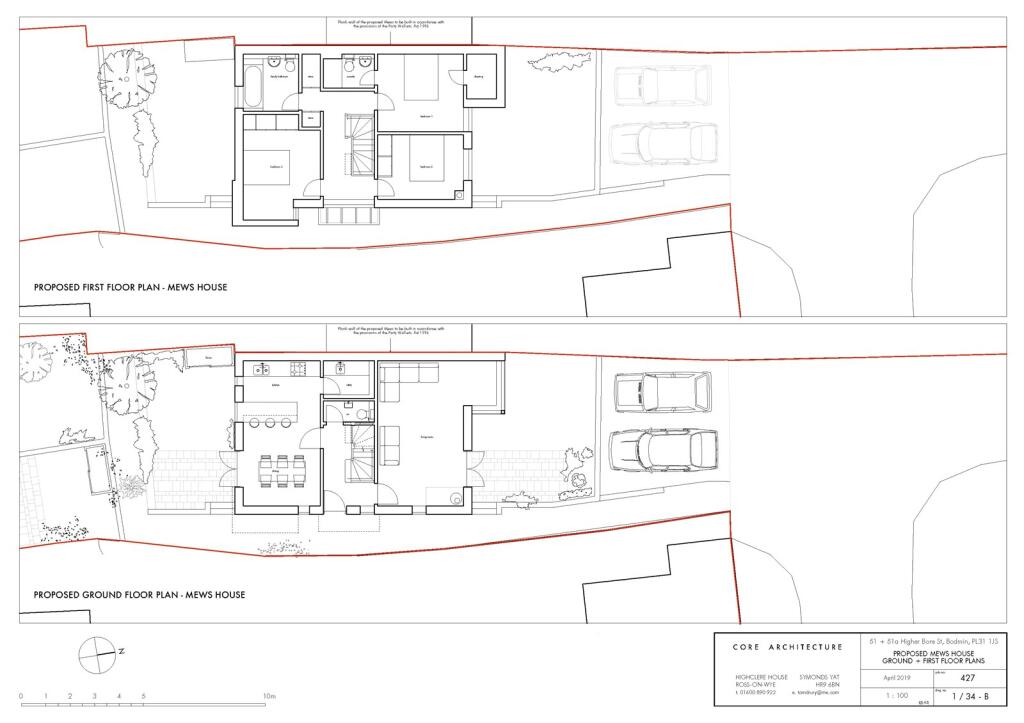
A unique opportunity to purchase a single building plot for a cleverly designed detached 3 bedroom home, tucked away at the rear of Higher Bore Street. The site benifits from a private rear garden and parking for two cars with vehicular access via Hillside Park. Once completed, the property ...
- Bedrooms
- 0
- Bathrooms
- 0
The heatmap indicates the level of crime in the area. The color of the heatmap indicates the crime severity and recency.
Metrics Year-on-Year
- Average area value
- 148,750.00 £Decreased by 17.27 %
- Average area rental value
- 888.00 £/moIncreased by 36.83 %
- Est rental Yield
- 7.16 %Increased by 65.36 %
- Crime Rate
- 44.00 %Unchanged by 0.00 %
from 179,793.00 £
from 649.00 £/mo
from 4.33 %
from 44.00 %
Agent Activity
Stratton Creber created the listing.
Nearby Schools
| Name | Type | Ofsted | Distance |
|---|---|---|---|
| North Cornwall Alternative Provision Academy | Academy Alternative Provision Converter | Good | 0.28 KM |
| St Mary'S Catholic Primary School, Bodmin | Academy Converter | Good | 0.39 KM |
| Beacon Ace Academy | Academy Converter | Good | 0.40 KM |
| Berrycoombe School | Academy Converter | 0.57 KM | |
| The Chestnuts Centre | Children's Centre | 0.61 KM |
Images
Nearby Streets
| Name | Average Price | Average Sqft | Distance |
|---|---|---|---|
| Tranquil Lane | £ 0 | 0 | 0.00 KM |
| Fore Street | £ 222,475 | 0 | 0.00 KM |
| Chapel Lane | £ 0 | 0 | 0.00 KM |
| Bethany Close | £ 0 | 0 | 0.00 KM |
| Mill Street | £ 0 | 0 | 0.00 KM |
Nearby Transport
| Name | NLC | TLC | Distance |
|---|---|---|---|
| Bodmin Parkway | 3501 | BOD | 7.76 KM |
| Luxulyan | 3518 | LUX | 9.28 KM |
| Lostwithiel | 3517 | LOS | 9.91 KM |
Nearby Listings
| Address | Price | Type | Score | Distance |
|---|---|---|---|---|
| Higher Bore Street, Bodmin, Cornwall, PL31 | £ 240,000 | BUY | 7 / 10 | 0.00 KM |
| Higher Bore Street, Bodmin, Cornwall, PL31 | £ 65,000 | BUY | Unknown | 0.00 KM |
| Higher Bore Street, Bodmin, Cornwall, PL31 | £ 420,000 | BUY | 4 / 10 | 0.00 KM |
| 3 Kerhuon Court, Bodmin, Cornwall, PL31 | £ 160,000 | BUY | 6 / 10 | 0.04 KM |
| Higher Bore Street, Bodmin, Cornwall, PL31 | £ 165,000 | BUY | 6 / 10 | 0.04 KM |
Nearby Properties
| Address | Price | Distance |
|---|---|---|
| 23 Higher Bore Street | £ 138,000 | 0.00 KM |
| 51 Higher Bore Street | £ 130,000 | 0.00 KM |
| 43 Higher Bore Street | £ 115,000 | 0.00 KM |
| 41 Higher Bore Street | £ 32,500 | 0.01 KM |
| 3 Higher Bore Street | £ 165,000 | 0.01 KM |