Treagust & Co says ..
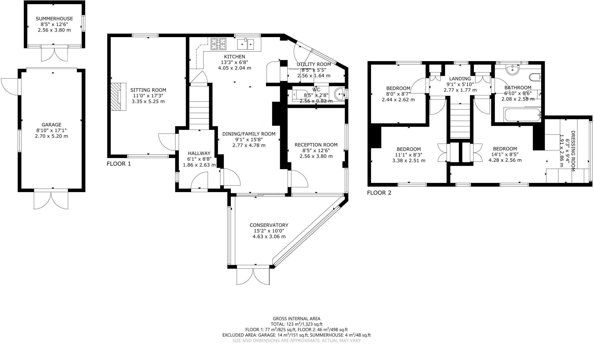
Located in the sought-after area of Record Road in West Emsworth, this energy efficient home, presented by Treagust & Co, boasts an extended layout offering 1323 sq ft of versatile living space. Set on a well-screened corner plot, this charming property features three bedrooms and three reception...
Property Oracle says ..
This three-bedroom semi-detached property located on Record Road in Emsworth, Havant, offers a blend of potential and needs. The house benefits from a highly desirable location within a sought-after coastal town, known for its family-friendly atmosphere and amenities, including excellent schools and train station. The property also has the benefit of being close to Emsworth village centre and harbourside. The garden is a significant asset, offering considerable space for outdoor living and potential for further development or improvement. However, the property’s interior condition, as shown in the photos, needs significant modernisation. The decor and fittings are dated. While functional, it would benefit from updates to the kitchen, bathrooms, and throughout the property. Potential buyers should factor in renovation costs when considering the overall investment. The lack of detailed property plot size information prevents a precise assessment of value per square foot. More information is needed before definitive pricing comparison can be made but, considering the location and garden, the listing price could be seen as reasonable. It is always advised that potential buyers obtain a full survey prior to purchase.
Therefore, we give this property 6 / 10. *Disclaimer: This is our option and does constitute a recommendation or financial advice. Do your own research. *
- Price
- 7
- Condition
- 5
- Location
- 7
- Land
- 8
- Bedrooms
- 3
- Bathrooms
- 1
- Sqft (est)
- 1,323.00
The heatmap indicates the level of crime in the area. The color of the heatmap indicates the crime severity and recency.
Metrics Year-on-Year
- Average area value
- 500,000.00 £Decreased by 10.71 %
- Est sale value
- 609,903.00 £Increased by 18.51 %
- Average area rental value
- 1,441.00 £/moIncreased by 8.26 %
- Est letting value
- 1,323.00 £/mo
- Est rental Yield
- 3.46 %Increased by 21.40 %
- Crime Rate
- 15.00 %Unchanged by 0.00 %
Agent Activity
Treagust & Co created the listing.
Nearby Schools
| Name | Type | Ofsted | Distance |
|---|---|---|---|
| The Orchard Children'S Centre | Children's Centre Linked Site | 0.21 KM | |
| Emsworth Primary School | Community School | Good | 0.26 KM |
| Glenwood School | Community Special School | Requires improvement | 0.56 KM |
| St James Church Of England Controlled Primary School | Voluntary Controlled School | Good | 1.14 KM |
| Warblington School | Community School | Good | 2.53 KM |
Images
Nearby Streets
| Name | Average Price | Average Sqft | Distance |
|---|---|---|---|
| A27 | £ 0 | 0 | 0.00 KM |
| Boat Storage | £ 0 | 0 | 0.00 KM |
| Exeter Close | £ 0 | 0 | 0.00 KM |
| Harbour Court | £ 0 | 0 | 0.00 KM |
| Saint Peter's Square | £ 650,000 | 0 | 0.00 KM |
Nearby Transport
| Name | NLC | TLC | Distance |
|---|---|---|---|
| Emsworth | 5257 | EMS | 0.93 KM |
| Warblington | 5264 | WBL | 2.31 KM |
| Havant | 5532 | HAV | 3.90 KM |
| Southbourne | 5263 | SOB | 4.26 KM |
| Rowlands Castle | 5658 | RLN | 4.87 KM |
Nearby Listings
| Address | Price | Type | Score | Distance |
|---|---|---|---|---|
| Record Road, Emsworth | £ 495,000 | BUY | 8 / 10 | 0.00 KM |
| Record Road, Emsworth | £ 450,000 | BUY | 6 / 10 | 0.00 KM |
| Record Road, Emsworth, Hampshire | £ 720,000 | BUY | 7 / 10 | 0.11 KM |
| Bosmere Gardens, Emsworth | £ 425,000 | BUY | Unknown | 0.18 KM |
| Bosmere Gardens, Emsworth | £ 415,000 | BUY | 7 / 10 | 0.18 KM |
Nearby Properties
| Address | Price | Distance |
|---|---|---|
| 39 Record Road | £ 91,000 | 0.00 KM |
| 28 Record Road | £ 330,000 | 0.00 KM |
| 17 Record Road | £ 925,000 | 0.00 KM |
| 34 Record Road | £ 227,000 | 0.00 KM |
| 2a Record Road | £ 725,000 | 0.00 KM |