Irlams says ..
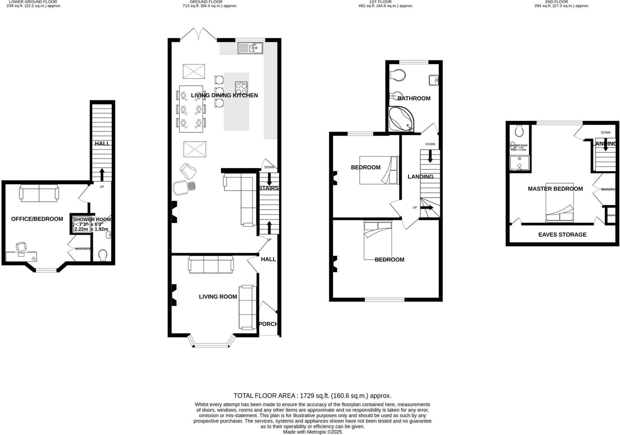
A beautifully presented, much extended and refurbished four-bedroom, three-bathroom Victorian terraced property in a popular position a short stroll from the town centre, Tatton Park and The Heath. EPC Rating: TBC
Property Oracle says ..
This property is a 4-bedroom, 3-bathroom house located on Queen Street in Knutsford, Cheshire. Knutsford is a desirable town in the North West of England, known for its attractive architecture and proximity to Tatton Park. The property itself appears to be well-maintained and recently renovated, as evidenced by the modern kitchen and bathrooms shown in the photographs. The property benefits from a garden, adding to its appeal. While the provided data lacks specific pricing per square foot for comparable properties, the list price of £595,000 seems reasonable considering the property’s condition, location, and size, especially in comparison to other properties in the area. The presence of nearby schools and a train station further enhances its desirability.
Therefore, we give this property 8 / 10. *Disclaimer: This is our option and does constitute a recommendation or financial advice. Do your own research. *
- Price
- 8
- Condition
- 9
- Location
- 9
- Land
- 7
- Bedrooms
- 4
- Bathrooms
- 3
- Sqft (est)
- 1,728.00
- Lot (est)
- 1,729.00
The heatmap indicates the level of crime in the area. The color of the heatmap indicates the crime severity and recency.
Metrics Year-on-Year
- Average area value
- 678,106.00 £Increased by 15.18 %
- Est sale value
- 1,012,608.00 £Increased by 35.96 %
- Average area rental value
- 1,651.00 £/moDecreased by 17.16 %
- Est letting value
- 1,728.00 £/moUnchanged by 0.00 %
- Est rental Yield
- 2.92 %Decreased by 28.08 %
- Crime Rate
- 24.00 %Unchanged by 0.00 %
Agent Activity
Irlams created the listing.
Nearby Schools
| Name | Type | Ofsted | Distance |
|---|---|---|---|
| Egerton Primary School | Academy Converter | 0.45 KM | |
| Yorston Lodge School | Other Independent School | 0.68 KM | |
| Cheshire Studio School | Studio Schools | Good | 0.79 KM |
| Knutsford Academy | Academy Converter | Good | 0.79 KM |
| Bexton Primary School | Academy Converter | 1.49 KM |
Images
Nearby Streets
| Name | Average Price | Average Sqft | Distance |
|---|---|---|---|
| Elizabeth Gaskell Court | £ 0 | 0 | 0.00 KM |
| Drury Lane | £ 580,000 | 0 | 0.00 KM |
| Warren Close | £ 185,800 | 0 | 0.00 KM |
| Manchester Road | £ 544,490 | 0 | 0.00 KM |
| Devis Way | £ 846,407 | 0 | 0.00 KM |
Nearby Transport
| Name | NLC | TLC | Distance |
|---|---|---|---|
| Knutsford | 2848 | KNF | 0.88 KM |
| Mobberley | 2849 | MOB | 5.45 KM |
| Plumley | 2308 | PLM | 5.88 KM |
| Ashley | 2850 | ASY | 6.73 KM |
| Hale (Manchester) | 2845 | HAL | 8.64 KM |
Nearby Listings
| Address | Price | Type | Score | Distance |
|---|---|---|---|---|
| Queen Street, Knutsford | £ 595,000 | BUY | 8 / 10 | 0.00 KM |
| Queen Street, Knutsford, WA16 | £ 495,000 | BUY | 7 / 10 | 0.03 KM |
| Queen Street, Knutsford, WA16 | £ 465,000 | BUY | Unknown | 0.05 KM |
| Queen Street, Knutsford, WA16 | £ 350,000 | BUY | 8 / 10 | 0.06 KM |
| Victoria Street, Knutsford | £ 850,000 | BUY | 9 / 10 | 0.07 KM |
Nearby Properties
| Address | Price | Distance |
|---|---|---|
| 16 Queen Street | £ 250,000 | 0.00 KM |
| 23 Queen Street | £ 199,500 | 0.00 KM |
| 9 Queen Street | £ 455,000 | 0.00 KM |
| 14 Queen Street | £ 190,000 | 0.00 KM |
| 21 Queen Street | £ 151,000 | 0.00 KM |