ehB Residential says ..
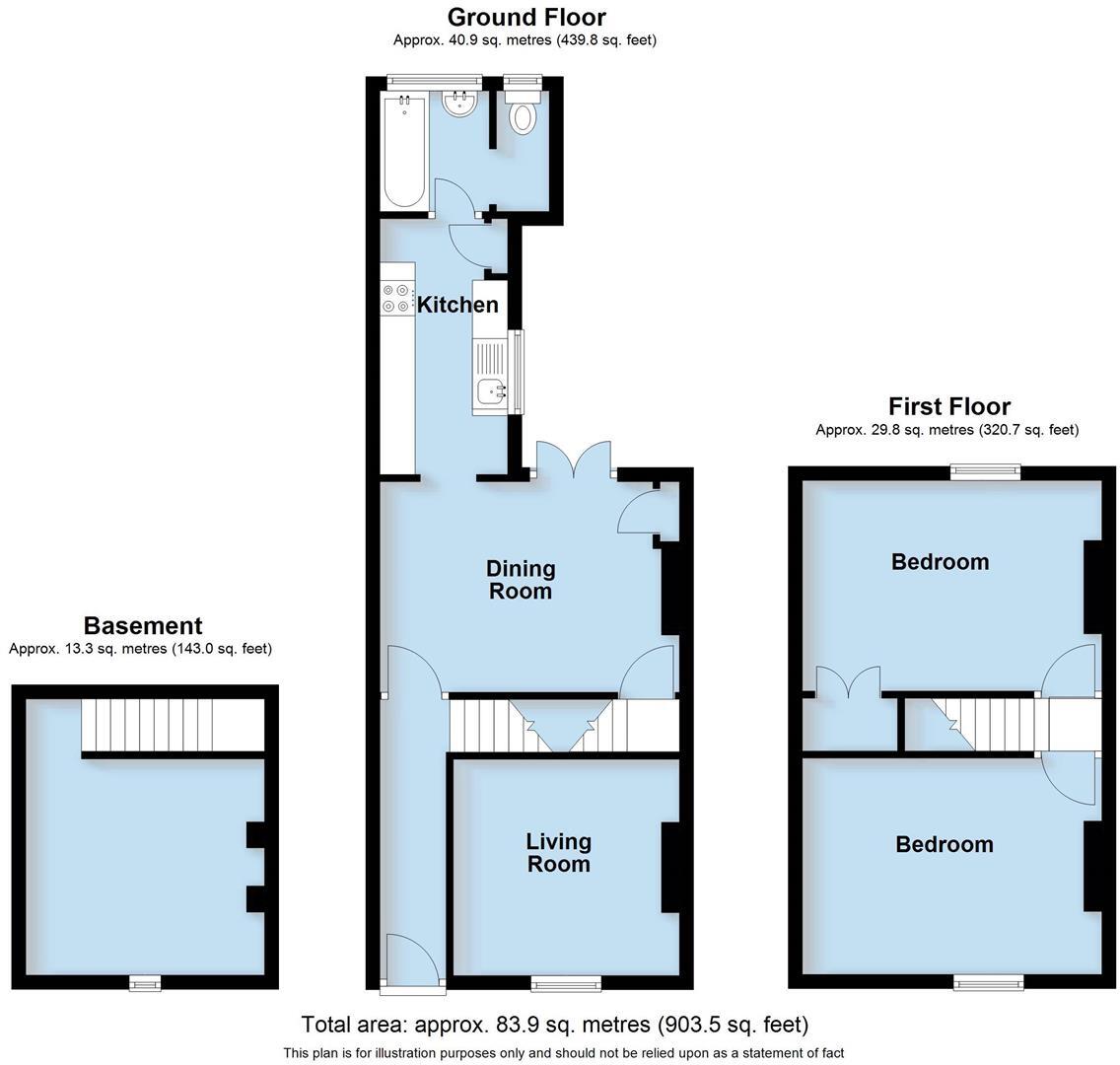
A most conveniently located two bedroom mid terrace house. Within walking distance of good local amenities including Warwick Town Centre, local shops, Warwick Hospital, and Railway Station. The property which has recently been freshly redecorated comprises; entrance hall sitting room, dining ...
Property Oracle says ..
The property is located on Guy Street, Warwick, a location that benefits from being within walking distance of Warwick town centre and its train station. This is a positive aspect for potential buyers, offering convenient access to amenities and transport links. The presence of several highly-rated schools within a short distance further enhances the appeal of the location for families. The property itself appears to be a terraced house in relatively good condition, though some modernisation may be desirable. The images show a small but usable rear garden, which is a valuable addition in a town centre location. While specific square footage is unavailable, the list price of £275,000 seems reasonable when compared to similar properties in the area, although a lack of precise square footage data prevents a definitive price-per-square-foot analysis. More information on the property’s size would allow for a more precise assessment of its value.
Therefore, we give this property 7 / 10. *Disclaimer: This is our option and does constitute a recommendation or financial advice. Do your own research. *
- Price
- 7
- Condition
- 7
- Location
- 8
- Land
- 6
- Bedrooms
- 2
- Bathrooms
- 1
The heatmap indicates the level of crime in the area. The color of the heatmap indicates the crime severity and recency.
Metrics Year-on-Year
- Average area value
- 623,000.00 £Increased by 100.32 %
- Average area rental value
- 1,154.00 £/moIncreased by 2.21 %
- Est rental Yield
- 2.22 %Decreased by 49.08 %
- Crime Rate
- 14.00 %Unchanged by 0.00 %
Agent Activity
ehB Residential created the listing.
Nearby Schools
| Name | Type | Ofsted | Distance |
|---|---|---|---|
| Warwick Nursery School | Local Authority Nursery School | Good | 0.30 KM |
| Coten End Primary School | Community School | Outstanding | 0.32 KM |
| Emscote School | Other Independent School | 0.68 KM | |
| St Mary Immaculate Catholic Primary School | Voluntary Aided School | Good | 0.80 KM |
| Warwick Preparatory School | Other Independent School | 0.84 KM |
Images
Nearby Streets
| Name | Average Price | Average Sqft | Distance |
|---|---|---|---|
| Montgomery Court | £ 0 | 0 | 0.00 KM |
| Guy's Cliffe Terrace | £ 0 | 0 | 0.00 KM |
| Station Avenue | £ 0 | 0 | 0.00 KM |
| Broad Street | £ 179,950 | 0 | 0.00 KM |
| St. John's | £ 0 | 0 | 0.00 KM |
Nearby Transport
| Name | NLC | TLC | Distance |
|---|---|---|---|
| Warwick | 4600 | WRW | 0.32 KM |
| Warwick Parkway | 8530 | WRP | 3.63 KM |
| Leamington Spa | 4597 | LMS | 4.76 KM |
| Kenilworth | 7985 | KNW | 6.42 KM |
Nearby Listings
| Address | Price | Type | Score | Distance |
|---|---|---|---|---|
| Guy Street, Warwick | £ 275,000 | BUY | 7 / 10 | 0.00 KM |
| Guy Street, Warwick | £ 265,000 | BUY | Unknown | 0.03 KM |
| Guy Street, Warwick, Warwickshire, CV34 | £ 300,000 | BUY | 8 / 10 | 0.05 KM |
| Cherry Street, Warwick | £ 325,000 | BUY | 7 / 10 | 0.07 KM |
| Cherry Street, Warwick | £ 300,000 | BUY | 7 / 10 | 0.07 KM |
Nearby Properties
| Address | Price | Distance |
|---|---|---|
| 6 Guy Street | £ 335,000 | 0.04 KM |
| 10 Guy Street | £ 268,000 | 0.04 KM |
| 14 Guy Street | £ 155,000 | 0.04 KM |
| 21 Guy Street | £ 269,000 | 0.04 KM |
| 12 Guy Street | £ 41,251 | 0.04 KM |