Rampton Baseley says ..
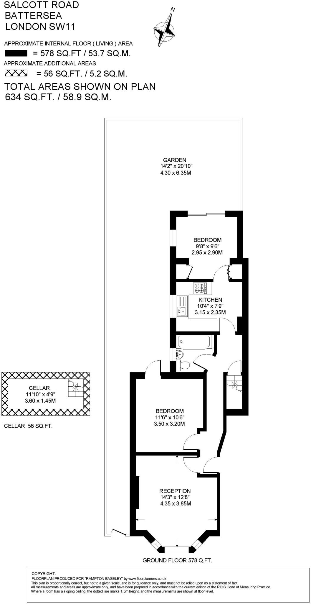
This well-presented, two-bedroom garden flat is set on the ground floor of a handsome Victorian house on a highly sought-after road between the commons. The flat has approximately 578 sq ft of living space, is light and spacious throughout and benefits from a south-facing garden.
Property Oracle says ..
Therefore, we give this property 6 / 10. *Disclaimer: This is our option and does constitute a recommendation or financial advice. Do your own research. *
- Price
- 6
- Condition
- 6
- Location
- 8
- Land
- 5
- Bedrooms
- 2
- Bathrooms
- 1
- Sqft (est)
- 634.00
- Lot (est)
- 634.00
The heatmap indicates the level of crime in the area. The color of the heatmap indicates the crime severity and recency.
Metrics Year-on-Year
- Average area value
- 939,476.00 £Decreased by 7.90 %
- Est sale value
- 601,032.00 £Increased by 7.73 %
- Average area rental value
- 3,276.00 £/moIncreased by 16.67 %
- Est letting value
- 1,902.00 £/moIncreased by 50.00 %
- Est rental Yield
- 4.18 %Increased by 26.67 %
- Crime Rate
- 6.00 %Unchanged by 0.00 %
from 1,020,087.00 £
from 557,920.00 £
from 2,808.00 £/mo
from 1,268.00 £/mo
from 3.30 %
from 6.00 %
Agent Activity
Rampton Baseley created the listing.
Nearby Schools
| Name | Type | Ofsted | Distance |
|---|---|---|---|
| Belleville Primary School | Academy Converter | 0.15 KM | |
| Dolphin School (Incorporating Noahs Ark Nursery Schools) | Other Independent School | 0.17 KM | |
| Honeywell Junior School | Foundation School | Outstanding | 0.42 KM |
| Honeywell Infant School | Foundation School | Outstanding | 0.42 KM |
| Ark Bolingbroke Academy | Free Schools | Good | 0.44 KM |
Images
Nearby Streets
| Name | Average Price | Average Sqft | Distance |
|---|---|---|---|
| Cairns Road | £ 818,750 | 0 | 0.00 KM |
| Stonell's Road | £ 0 | 0 | 0.00 KM |
| Auckland Road | £ 701,818 | 0 | 0.00 KM |
| Aliwal Road | £ 0 | 0 | 0.00 KM |
| Eckstein Road | £ 950,000 | 0 | 0.00 KM |
Nearby Transport
| Name | NLC | TLC | Distance |
|---|---|---|---|
| Clapham Junction | 5595 | CLJ | 0.92 KM |
| Wandsworth Common | 5395 | WSW | 1.32 KM |
| Balham | 5399 | BAL | 2.14 KM |
| Wandsworth Town | 5576 | WNT | 2.60 KM |
| Imperial Wharf | 9586 | IMW | 2.75 KM |
Nearby Listings
| Address | Price | Type | Score | Distance |
|---|---|---|---|---|
| Salcott Road, SW11 | £ 750,000 | BUY | 6 / 10 | 0.00 KM |
| Bennerley Road, London, SW11 | £ 950,000 | BUY | Unknown | 0.02 KM |
| Salcott Road, SW11 | £ 950,000 | BUY | 6 / 10 | 0.03 KM |
| Wakehurst Road, LONDON, SW11 | £ 1,600,000 | BUY | 6 / 10 | 0.06 KM |
| Bennerley Road, London, SW11 | £ 1,850,000 | BUY | Unknown | 0.06 KM |
Nearby Properties
| Address | Price | Distance |
|---|---|---|
| 71a Salcott Road | £ 475,000 | 0.01 KM |
| 88 Salcott Road | £ 440,000 | 0.01 KM |
| 77 Salcott Road | £ 845,000 | 0.01 KM |
| 93 Salcott Road | £ 1,115,000 | 0.01 KM |
| 79 Salcott Road | £ 475,000 | 0.01 KM |