CL
Norwood Park, Bearsden, G61
By Clyde Property
£ 260,000
Reviews
3 out of 5 stars
Clyde Property says ..
This bright and spacious first floor flat is set within beautifully maintained communal gardens and enjoys private access to the scenic shoreline of St Germains Loch.
Property Oracle says ..
Therefore, we give this property 6 / 10. *Disclaimer: This is our option and does constitute a recommendation or financial advice. Do your own research. *
- Price
- 8
- Condition
- 5
- Location
- 7
- Land
- 7
- Bedrooms
- 3
- Bathrooms
- 2
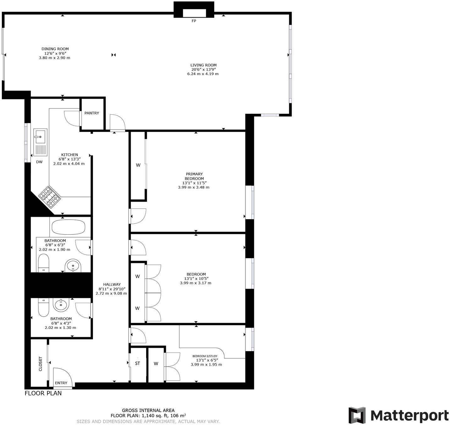
- Sqft (est)
- 1,140.97
The heatmap indicates the level of crime in the area. The color of the heatmap indicates the crime severity and recency.
Metrics Year-on-Year
- Average area value
- 406,889.00 £Decreased by 7.33 %
- Est sale value
- 347,995.85 £Increased by 10.11 %
- Average area rental value
- 1,900.00 £/moDecreased by 24.09 %
- Est letting value
- 1,140.97 £/moUnchanged by 0.00 %
- Est rental Yield
- 5.60 %Decreased by 18.13 %
- Crime Rate
- 0.00 %
from 439,063.00 £
from 316,048.69 £
from 2,503.00 £/mo
from 1,140.97 £/mo
from 6.84 %
from 0.00 %
Agent Activity
Clyde Property created the listing.
Images
Nearby Streets
| Name | Average Price | Average Sqft | Distance |
|---|---|---|---|
| Whistlefield Court | £ 363,500 | 0 | 0.00 KM |
| Lochside | £ 0 | 0 | 0.00 KM |
| Drymen Wynd | £ 0 | 0 | 0.00 KM |
| Canniesburn Drive | £ 242,500 | 0 | 0.00 KM |
| Chapelton Avenue | £ 0 | 0 | 0.00 KM |
Nearby Transport
| Name | NLC | TLC | Distance |
|---|---|---|---|
| Bearsden | 9966 | BRN | 0.60 KM |
| Westerton | 9998 | WES | 1.11 KM |
| Hillfoot | 9983 | HLF | 1.24 KM |
| Anniesland | 9972 | ANL | 2.71 KM |
| Kelvindale | 1655 | KVD | 3.01 KM |
Nearby Listings
| Address | Price | Type | Score | Distance |
|---|---|---|---|---|
| Norwood Park, Bearsden, G61 | £ 260,000 | BUY | 6 / 10 | 0.00 KM |
| Norwood Park, Bearsden | £ 240,000 | BUY | 7 / 10 | 0.00 KM |
| Norwood Park, Bearsden, G61 | £ 265,000 | BUY | 6 / 10 | 0.03 KM |
| 53 Norwood Park, Bearsden, G61 2RZ | £ 260,000 | BUY | 6 / 10 | 0.07 KM |
| 63 Norwood Park, Bearsden, G61 2RZ | £ 350,000 | BUY | Unknown | 0.09 KM |