St Michael’s Road, Tunbridge Wells, TN4
By Alexandre Boyes
£ 350,000
Reviews
3 out of 5 stars
Alexandre Boyes says ..
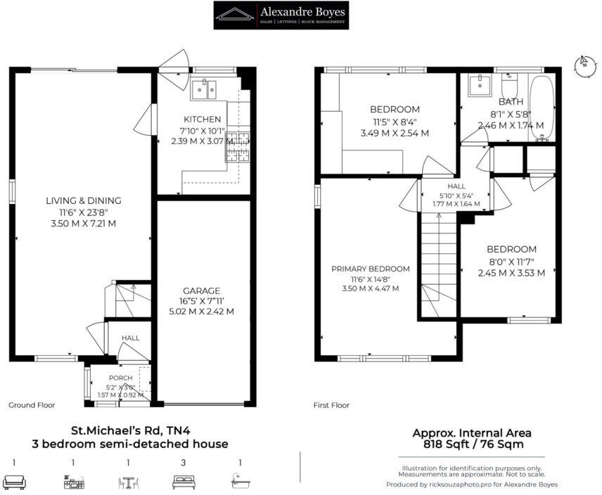
A well proportioned end of terrace family house, located in the popular St Johns area of the town in need of updating. Tunbridge Wells has an excellent range of educational, leisure and shopping facilities including the Royal Victoria Place shopping centre and Pantiles. There are a selection o...
Property Oracle says ..
This end-of-terrace property on St Michael’s Road, Tunbridge Wells, presents a good opportunity for buyers looking to renovate. The location is convenient, with nearby schools and transportation links. While the property requires significant updating, the price reflects this, making it an attractive investment for those willing to undertake refurbishment. The garden is a definite plus, offering outdoor space in a popular residential area.
Therefore, we give this property 6 / 10. *Disclaimer: This is our option and does constitute a recommendation or financial advice. Do your own research. *
- Price
- 7
- Condition
- 4
- Location
- 7
- Land
- 6
- Bedrooms
- 3
- Bathrooms
- 1
- Sqft (est)
- 938.00
The heatmap indicates the level of crime in the area. The color of the heatmap indicates the crime severity and recency.
Metrics Year-on-Year
- Average area value
- 384,737.00 £Decreased by 1.20 %
- Est sale value
- 381,766.00 £Increased by 15.95 %
- Average area rental value
- 1,963.00 £/moIncreased by 39.81 %
- Est letting value
- 1,876.00 £/moIncreased by 100.00 %
- Est rental Yield
- 6.12 %Increased by 41.34 %
- Crime Rate
- 4.00 %Unchanged by 0.00 %
Agent Activity
Alexandre Boyes created the listing.
Nearby Schools
| Name | Type | Ofsted | Distance |
|---|---|---|---|
| St John'S Church Of England Primary School | Voluntary Controlled School | Good | 0.26 KM |
| St Augustine'S Catholic Primary School | Academy Converter | Good | 0.38 KM |
| The Skinners' School | Academy Converter | 0.81 KM | |
| St Barnabas Cofe Va Primary School | Voluntary Aided School | Good | 0.82 KM |
| Tunbridge Wells Grammar School For Boys | Community School | Good | 0.84 KM |
Images
Nearby Streets
| Name | Average Price | Average Sqft | Distance |
|---|---|---|---|
| St Michael's Road | £ 450,000 | 0 | 0.00 KM |
| Newlands Rise | £ 0 | 0 | 0.00 KM |
| Dunstan Grove | £ 0 | 0 | 0.00 KM |
| The Fairways | £ 1,000,000 | 0 | 0.00 KM |
| New England Road | £ 0 | 0 | 0.00 KM |
Nearby Transport
| Name | NLC | TLC | Distance |
|---|---|---|---|
| High Brooms | 5235 | HIB | 1.14 KM |
| Tunbridge Wells | 5230 | TBW | 1.90 KM |
| Tonbridge | 5229 | TON | 5.00 KM |
| Frant | 5218 | FRT | 5.62 KM |
| Leigh (Kent) | 5294 | LIH | 8.20 KM |
Nearby Listings
| Address | Price | Type | Score | Distance |
|---|---|---|---|---|
| St Michael’s Road, Tunbridge Wells, TN4 | £ 350,000 | BUY | 6 / 10 | 0.00 KM |
| St. Michaels Road, Tunbridge Wells, TN4 9JG | £ 700,000 | BUY | 7 / 10 | 0.03 KM |
| St. Michaels Road, Tunbridge Wells | £ 450,000 | BUY | 6 / 10 | 0.08 KM |
| St Davids Road, Tunbridge Wells | £ 485,000 | BUY | Unknown | 0.17 KM |
| Newlands Road, Tunbridge Wells | £ 825,000 | BUY | Unknown | 0.20 KM |
Nearby Properties
| Address | Price | Distance |
|---|---|---|
| 27 St Michaels Road | £ 275,000 | 0.04 KM |
| 29 St Michaels Road | £ 360,000 | 0.04 KM |
| 36 St Michaels Road | £ 285,000 | 0.04 KM |
| 40 St Michaels Road | £ 325,000 | 0.04 KM |
| 15 St Michaels Road | £ 362,000 | 0.04 KM |