Devon Way, Trowse, Norwich, Norfolk, NR14
By Winkworth
£ 425,000
Reviews
3 out of 5 stars
Winkworth says ..
Perfectly positioned in the highly desirable village of Trowse, just moments from the vibrant heart of Norwich, Devon Way offers the rare opportunity to enjoy the very best of both worlds, the tranquillity of village life with the energy along with the convenience of the city close at hand. This ...
Property Oracle says ..
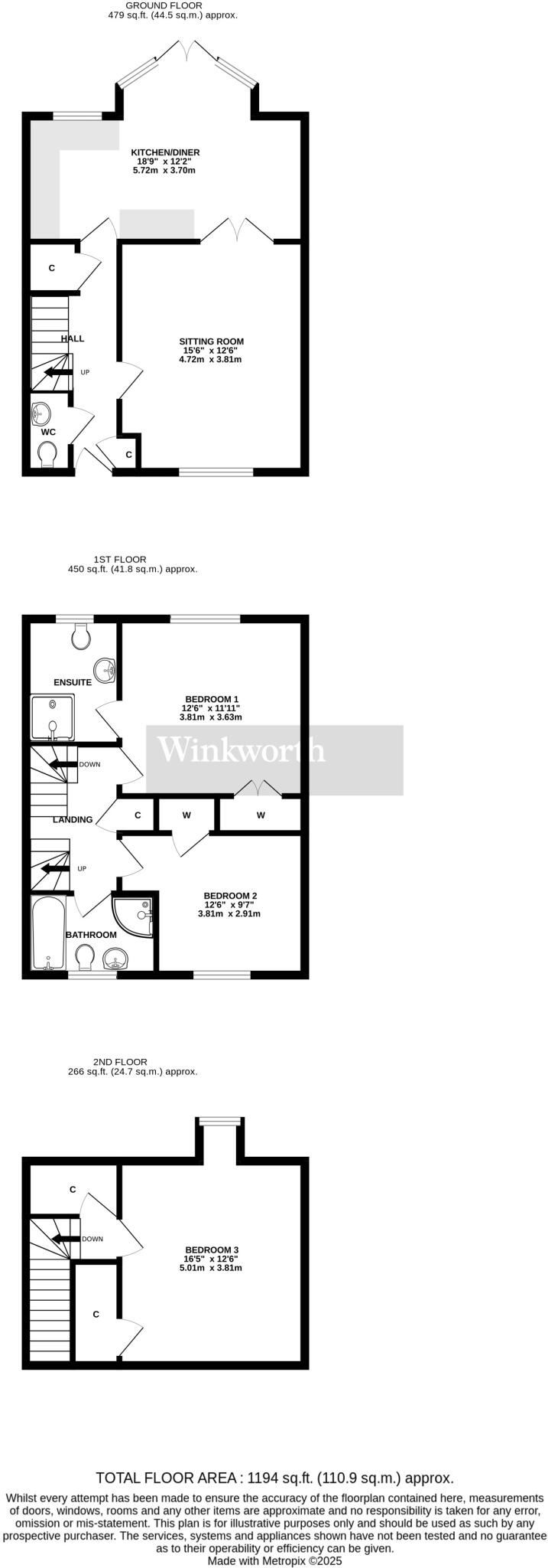
This property is a 3-bedroom, 2-bathroom semi-detached house located in Trowse, Norwich. The location is desirable, with an ‘Outstanding’ rated primary school (Trowse Primary School) within close proximity (0.48km). Norwich city centre is also relatively accessible (2.55km). The property itself appears to be in good condition, well-maintained, and modern in style. The images show a well-landscaped garden with a patio area, shed and detached garage, indicating a good amount of outdoor space. The list price of £425,000 seems reasonable considering the average price in the area (£362,550), the property’s condition, and the size of the plot. While comparable properties in the area have prices ranging from £285,000 to £925,000, this property falls within the lower to mid-range of this spectrum, making it potentially good value for money.
Therefore, we give this property 7 / 10. *Disclaimer: This is our option and does constitute a recommendation or financial advice. Do your own research. *
- Price
- 7
- Condition
- 9
- Location
- 8
- Land
- 7
- Bedrooms
- 3
- Bathrooms
- 2
- Sqft (est)
- 1,044.36
- Lot (est)
- 1,194.00
The heatmap indicates the level of crime in the area. The color of the heatmap indicates the crime severity and recency.
Metrics Year-on-Year
- Average area value
- 433,750.00 £Increased by 0.82 %
- Est sale value
- 367,614.72 £Increased by 20.55 %
- Average area rental value
- 1,125.00 £/moDecreased by 11.21 %
- Est letting value
- 0.00 £/mo
- Est rental Yield
- 3.11 %Decreased by 11.90 %
- Crime Rate
- 10.00 %Unchanged by 0.00 %
Agent Activity
Winkworth created the listing.
Nearby Schools
| Name | Type | Ofsted | Distance |
|---|---|---|---|
| Trowse Primary School | Community School | Outstanding | 0.48 KM |
| Lionwood Infant And Nursery School | Academy Converter | Outstanding | 2.01 KM |
| Thorpe Hamlet & Heartsease Children'S Centre | Children's Centre | 2.58 KM | |
| Lionwood Junior School | Academy Converter | Good | 2.58 KM |
| Lakenham Primary School | Foundation School | Good | 2.59 KM |
Images
Nearby Streets
| Name | Average Price | Average Sqft | Distance |
|---|---|---|---|
| Loddon Road | £ 0 | 0 | 0.00 KM |
| Meadow Close | £ 0 | 0 | 0.00 KM |
| White Horse Lane | £ 300,000 | 0 | 0.00 KM |
| Mustard Way | £ 682,500 | 0 | 0.00 KM |
| Hall Drive | £ 0 | 0 | 0.00 KM |
Nearby Transport
| Name | NLC | TLC | Distance |
|---|---|---|---|
| Norwich | 7309 | NRW | 2.55 KM |
Nearby Listings
| Address | Price | Type | Score | Distance |
|---|---|---|---|---|
| Devon Way, Trowse, Norwich, Norfolk, NR14 | £ 425,000 | BUY | 7 / 10 | 0.00 KM |
| Devon Way, Trowse, NR14 | £ 425,000 | BUY | 7 / 10 | 0.05 KM |
| Hudson Avenue, Trowse, Norwich, Norfolk, NR14 | £ 565,000 | BUY | 6 / 10 | 0.17 KM |
| Hudson Avenue, Trowse, Norwich | £ 550,000 | BUY | 8 / 10 | 0.18 KM |
| The Street, Trowse, Norwich, NR14 | £ 1,250,000 | BUY | 7 / 10 | 0.29 KM |
Nearby Properties
| Address | Price | Distance |
|---|---|---|
| 8 Devon Way | £ 285,000 | 0.05 KM |
| 30 Devon Way | £ 470,000 | 0.05 KM |
| 6 Devon Way | £ 575,000 | 0.05 KM |
| 1 Devon Way | £ 492,500 | 0.05 KM |
| 3 Devon Way | £ 306,000 | 0.05 KM |