Dairy Way, Gaywood, King's Lynn, Norfolk, PE30
By The Norfolk Agents
£ 375,000
Reviews
3 out of 5 stars
The Norfolk Agents says ..
This well presented home combines practical family living with a welcoming atmosphere and a fantastic location available with no onward chain.
Property Oracle says ..
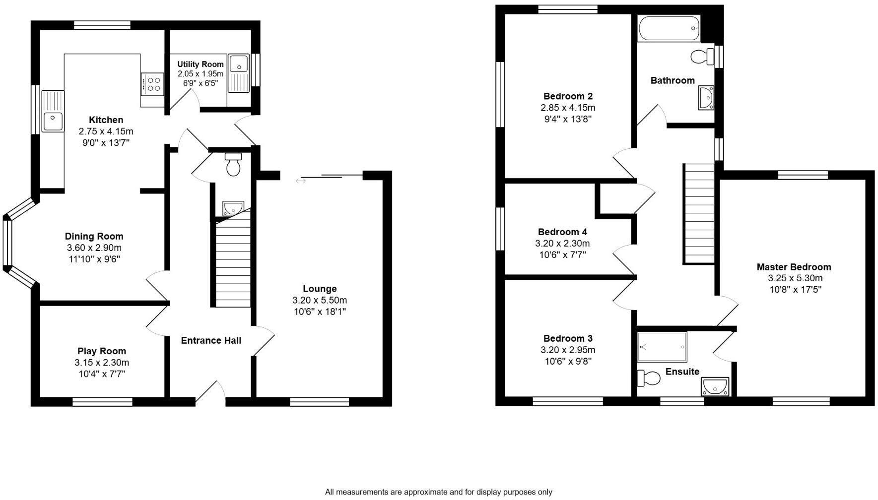
This is a detached property in Gaywood, King’s Lynn, featuring four bedrooms and two bathrooms. The house appears to be well-maintained and modernised, with a recently updated kitchen and bathrooms. It benefits from off-street parking and a garden with both paved and artificial grass areas. The property is located within a reasonable distance of local schools and transportation links, making it suitable for families and commuters. The asking price of £375,000 seems fair in comparison to similar properties in the area.
Therefore, we give this property 7 / 10. *Disclaimer: This is our option and does constitute a recommendation or financial advice. Do your own research. *
- Price
- 7
- Condition
- 8
- Location
- 7
- Land
- 6
- Bedrooms
- 4
- Bathrooms
- 2
- Sqft (est)
- 1,039.58
The heatmap indicates the level of crime in the area. The color of the heatmap indicates the crime severity and recency.
Metrics Year-on-Year
- Average area value
- 245,074.00 £Decreased by 15.93 %
- Est sale value
- 244,301.30 £Decreased by 37.50 %
- Average area rental value
- 1,254.00 £/moDecreased by 5.43 %
- Est letting value
- 1,039.58 £/moUnchanged by 0.00 %
- Est rental Yield
- 6.14 %Increased by 12.45 %
- Crime Rate
- 11.00 %Unchanged by 0.00 %
Agent Activity
The Norfolk Agents created the listing.
Nearby Schools
| Name | Type | Ofsted | Distance |
|---|---|---|---|
| Gaywood Primary School | Academy Converter | Good | 0.49 KM |
| St Martha'S Catholic Primary School | Academy Converter | 0.51 KM | |
| Springwood High School | Academy Converter | Good | 0.67 KM |
| South Wootton Junior School | Foundation School | Good | 1.13 KM |
| Reffley Academy | Academy Sponsor Led | 1.32 KM |
Images
Nearby Streets
| Name | Average Price | Average Sqft | Distance |
|---|---|---|---|
| Sorrel Court | £ 360,000 | 0 | 0.00 KM |
| Sandringham Road | £ 199,995 | 0 | 0.00 KM |
| Lea Way | £ 0 | 0 | 0.00 KM |
| Magnolia Drive | £ 280,000 | 0 | 0.00 KM |
| Orchard Crescent | £ 289,983 | 0 | 0.00 KM |
Nearby Transport
| Name | NLC | TLC | Distance |
|---|---|---|---|
| Kings Lynn | 7115 | KLN | 2.98 KM |
Nearby Listings
| Address | Price | Type | Score | Distance |
|---|---|---|---|---|
| Dairy Way, Gaywood, King's Lynn, Norfolk, PE30 | £ 375,000 | BUY | 7 / 10 | 0.00 KM |
| Shared Ownership Property just off Wootton Road | £ 92,500 | BUY | 6 / 10 | 0.12 KM |
| Queen Elizabeth Avenue, Gaywood, King's Lynn, Norfolk, PE30 | £ 220,000 | BUY | 7 / 10 | 0.12 KM |
| Wootton Road, King's Lynn | £ 325,000 | BUY | 7 / 10 | 0.13 KM |
| Wootton Road, King's Lynn, PE30 | £ 285,000 | BUY | 6 / 10 | 0.14 KM |
Nearby Properties
| Address | Price | Distance |
|---|---|---|
| 3 Bridge Place | £ 127,500 | 0.06 KM |
| 176 Wootton Road | £ 132,500 | 0.10 KM |
| 178 Wootton Road | £ 117,000 | 0.10 KM |
| 180 Wootton Road | £ 105,000 | 0.10 KM |
| 15 Meadowvale Gardens | £ 185,000 | 0.10 KM |