Mobberley Road, Knutsford, WA16
By Stuart Rushton & Co
£ 500,000
Reviews
4 out of 5 stars
Stuart Rushton & Co says ..
Ideal family home with 4 bedrooms, three bathrooms, modern kitchen/diner, spacious lounge, landscaped garden, parking for 2, and garage. Convenient location near town centre.
Property Oracle says ..
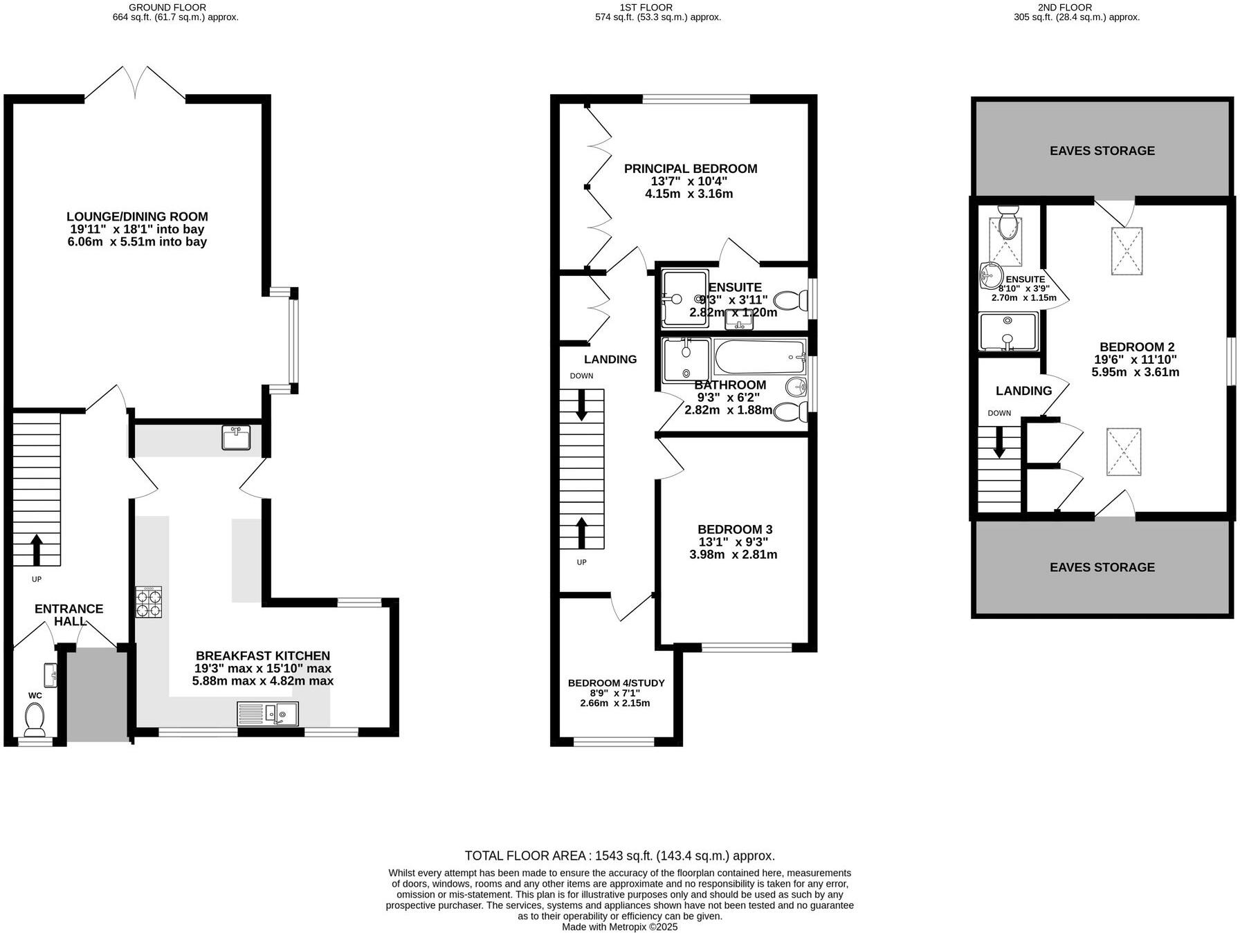
This property is a 4 bedroom, 3 bathroom semi-detached house located on Mobberley Road in Knutsford, Cheshire. The location is excellent, with nearby primary schools such as St Vincent’s Catholic Primary School (rated “Good” by Ofsted) and Manor Park Primary School and Nursery within a kilometer. Knutsford train station is also conveniently located just 0.67km away. The property itself appears to be in very good condition, recently modernised with a contemporary kitchen and bathrooms. There is a garden to the rear of the property. The list price of £500,000 is slightly below the average price for the area (£626,016), and considering the property’s size (1,543 sqft) and condition, it seems like a reasonable price, especially when compared to similar properties in the area. The average price per sqft in the area is £489, making this property slightly below average in price per sqft.
Therefore, we give this property 8 / 10. *Disclaimer: This is our option and does constitute a recommendation or financial advice. Do your own research. *
- Price
- 8
- Condition
- 9
- Location
- 9
- Land
- 7
- Bedrooms
- 4
- Bathrooms
- 3
- Sqft (est)
- 1,543.00
The heatmap indicates the level of crime in the area. The color of the heatmap indicates the crime severity and recency.
Metrics Year-on-Year
- Average area value
- 678,106.00 £Increased by 15.18 %
- Est sale value
- 904,198.00 £Increased by 35.96 %
- Average area rental value
- 1,651.00 £/moDecreased by 17.16 %
- Est letting value
- 1,543.00 £/moUnchanged by 0.00 %
- Est rental Yield
- 2.92 %Decreased by 28.08 %
- Crime Rate
- 18.00 %Unchanged by 0.00 %
Agent Activity
Stuart Rushton & Co created the listing.
Nearby Schools
| Name | Type | Ofsted | Distance |
|---|---|---|---|
| St Vincent'S Catholic Primary School | Voluntary Aided School | Good | 0.74 KM |
| Manor Park Primary School And Nursery | Academy Converter | 0.75 KM | |
| Knutsford Children'S Centre | Children's Centre | 0.79 KM | |
| Egerton Primary School | Academy Converter | 1.13 KM | |
| Yorston Lodge School | Other Independent School | 1.42 KM |
Images
Nearby Streets
| Name | Average Price | Average Sqft | Distance |
|---|---|---|---|
| Richmond Hill | £ 575,000 | 0 | 0.00 KM |
| Hollow Lane | £ 235,000 | 0 | 0.00 KM |
| Brook Lane | £ 0 | 0 | 0.00 KM |
| Drury Lane | £ 580,000 | 0 | 0.00 KM |
| Woodvale Road | £ 1,000,000 | 0 | 0.00 KM |
Nearby Transport
| Name | NLC | TLC | Distance |
|---|---|---|---|
| Knutsford | 2848 | KNF | 0.67 KM |
| Mobberley | 2849 | MOB | 4.55 KM |
| Ashley | 2850 | ASY | 6.35 KM |
| Plumley | 2308 | PLM | 6.76 KM |
| Hale (Manchester) | 2845 | HAL | 8.54 KM |
Nearby Listings
| Address | Price | Type | Score | Distance |
|---|---|---|---|---|
| Mobberley Road, Knutsford, WA16 | £ 500,000 | BUY | 8 / 10 | 0.00 KM |
| Mobberley Road, Knutsford | £ 395,000 | BUY | 8 / 10 | 0.03 KM |
| Mobberley Road, Knutsford | £ 425,000 | BUY | 5 / 10 | 0.05 KM |
| , Mobberley Road, Knutsford | £ 470,000 | BUY | 6 / 10 | 0.05 KM |
| Church Mews, Knutsford | £ 340,000 | BUY | 7 / 10 | 0.07 KM |
Nearby Properties
| Address | Price | Distance |
|---|---|---|
| 6 Woodlands Court | £ 270,000 | 0.05 KM |
| 1 Woodlands Court | £ 265,000 | 0.05 KM |
| 5 Woodlands Court | £ 67,000 | 0.05 KM |
| 123 Mobberley Road | £ 389,000 | 0.05 KM |
| 119 Mobberley Road | £ 250,000 | 0.05 KM |