Keats Fearn says ..
A spacious and well presented family home situated in a popular residential area. The 'Ofsted outstanding' Folly Hill Infants School is within 100 yards, Farnham's beautiful 320 acre park is within a short walk and the elegant Georgian town centre is only 1.5 miles away. The a...
Property Oracle says ..
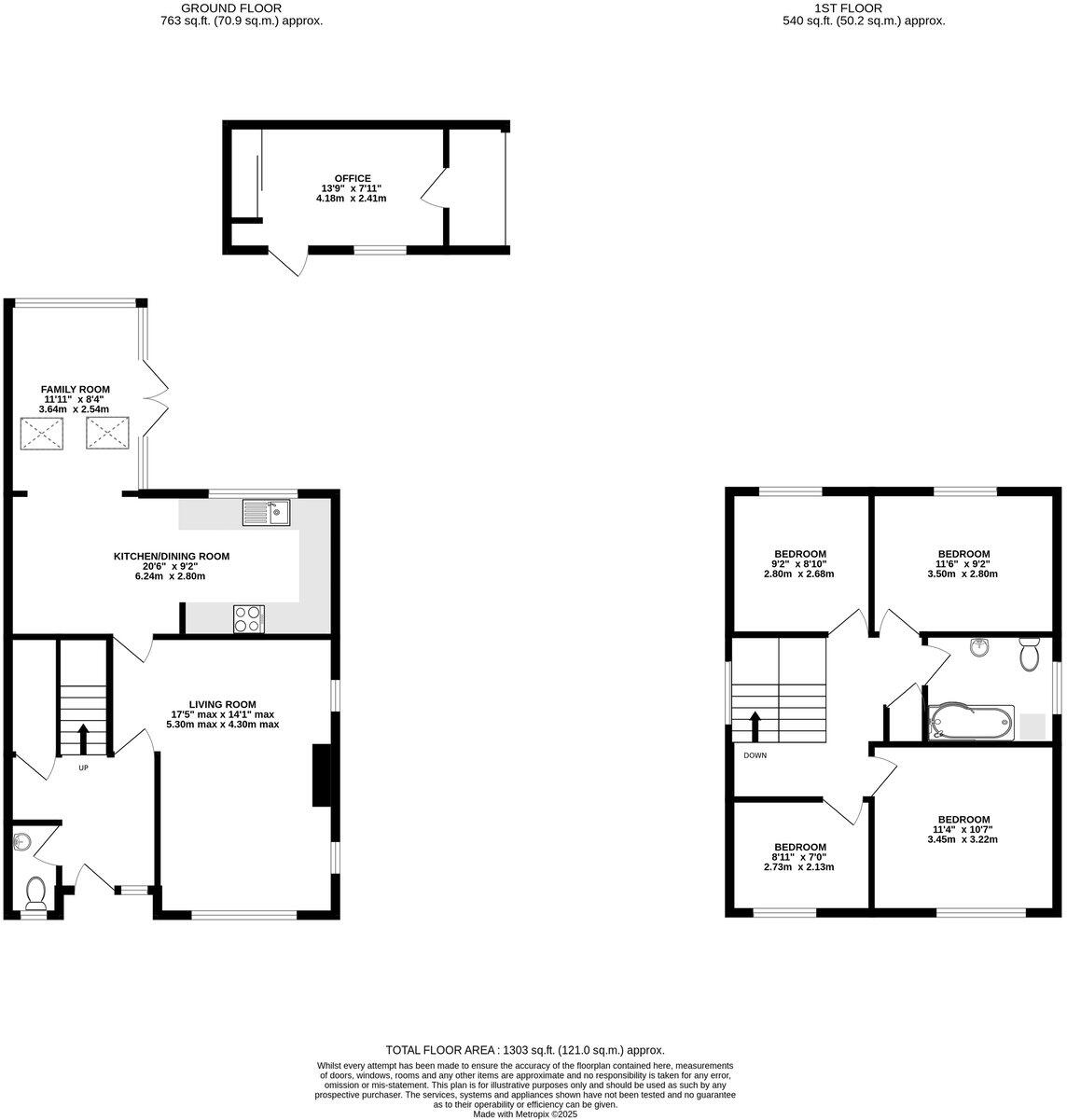
The property is located in Windermere Way, Farnham, Surrey, GU9 0DE. It’s a four-bedroom, one-bathroom detached house with a plot size of 1,303 sqft. The list price is £650,000.
The property appears to be in excellent condition. Recent renovations are evident in the kitchen and conservatory extensions. The interior is modern and well-maintained. The garden is of a good size, enclosed and well-maintained.
The location is good. It is within a reasonable distance of Farnham town centre, offering access to shops, amenities, and transport links. The proximity to several schools, including Hale Nursery & Primary Academy and University for the Creative Arts, adds to its family-friendly appeal. Farnham train station is approximately 2.59 km away, providing convenient access to London and other areas.
Considering the average house price in the area is £256,563 and the average price per sqft is £199, the list price of £650,000 for this property appears high. However, this needs to be considered alongside the property’s condition, size, and location. The property is larger than average and has undergone significant improvements, justifying a higher price than properties of similar size in the area. Nearby comparable properties on Windermere Way have sold for between £332,500 and £685,000, indicating some price variation. The lack of sqft data for these comparable properties makes a precise price per sqft comparison difficult. The property’s size and improvements, along with its location, suggest that while the price is above average, it may not be unreasonable within the context of the local market.
Therefore, we give this property 7 / 10. *Disclaimer: This is our option and does constitute a recommendation or financial advice. Do your own research. *
- Price
- 6
- Condition
- 9
- Location
- 8
- Land
- 7
- Bedrooms
- 4
- Bathrooms
- 1
- Lot (est)
- 1,303.00
The heatmap indicates the level of crime in the area. The color of the heatmap indicates the crime severity and recency.
Metrics Year-on-Year
- Average area value
- 272,143.00 £Decreased by 0.84 %
- Average area rental value
- 950.00 £/moDecreased by 12.68 %
- Est rental Yield
- 4.19 %Decreased by 11.97 %
- Crime Rate
- 4.00 %Unchanged by 0.00 %
Agent Activity
Keats Fearn created the listing.
Nearby Schools
| Name | Type | Ofsted | Distance |
|---|---|---|---|
| Hale Nursery & Primary Academy | Academy Converter | 0.51 KM | |
| Hale Sure Start Children'S Centre | Children's Centre | 0.53 KM | |
| University For The Creative Arts | Higher Education Institutions | Good | 1.66 KM |
| Potters Gate Cofe Primary School | Academy Converter | 1.97 KM | |
| Potters Gate Sure Start Children'S Centre | Children's Centre | 1.97 KM |
Images
Nearby Streets
| Name | Average Price | Average Sqft | Distance |
|---|---|---|---|
| Armsworth Way | £ 900,000 | 0 | 0.00 KM |
| Verdun Street | £ 0 | 0 | 0.00 KM |
| Cardinal Way | £ 0 | 0 | 0.00 KM |
| Fernhill Close | £ 950,000 | 0 | 0.00 KM |
| The Green | £ 675,000 | 0 | 0.00 KM |
Nearby Transport
| Name | NLC | TLC | Distance |
|---|---|---|---|
| Farnham | 5545 | FNH | 2.59 KM |
| Aldershot | 5623 | AHT | 5.25 KM |
| Fleet | 5522 | FLE | 7.17 KM |
| Bentley (Hampshire) | 5624 | BTY | 8.95 KM |
| Farnborough (Main) | 5521 | FNB | 9.06 KM |
Nearby Listings
| Address | Price | Type | Score | Distance |
|---|---|---|---|---|
| Windermere Way, Farnham, GU9 | £ 650,000 | BUY | 7 / 10 | 0.00 KM |
| Coniston Drive, Farnham, Surrey, GU9 | £ 650,000 | BUY | 7 / 10 | 0.08 KM |
| Windermere Way, Farnham | £ 650,000 | BUY | 7 / 10 | 0.08 KM |
| Windermere Way, Farnham, Surrey | £ 685,000 | BUY | 6 / 10 | 0.08 KM |
| Coniston Drive, Farnham, Surrey, GU9 | £ 695,000 | BUY | 8 / 10 | 0.14 KM |
Nearby Properties
| Address | Price | Distance |
|---|---|---|
| 39 Windermere Way | £ 435,000 | 0.09 KM |
| 5 Windermere Way | £ 332,500 | 0.09 KM |
| 7 Windermere Way | £ 490,000 | 0.09 KM |
| 40 Windermere Way | £ 550,000 | 0.09 KM |
| 17 Windermere Way | £ 573,000 | 0.09 KM |