TH
Conversion Opportunity To 15 Flats, Walsall, WS3
By The Online Property Agency
£ 599,999
Reviews
1 out of 5 stars
The Online Property Agency says ..
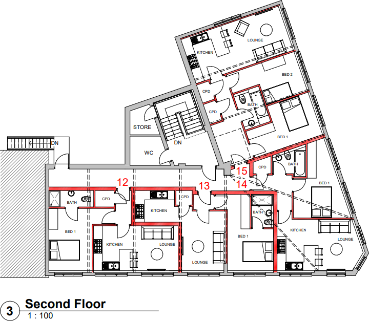
Former commercial premises with prior approval for 15 x self contained apartments
Property Oracle says ..
Therefore, we give this property 3 / 10. *Disclaimer: This is our option and does constitute a recommendation or financial advice. Do your own research. *
- Price
- 4
- Condition
- 3
- Location
- 7
- Land
- 1
- Bedrooms
- 15
- Bathrooms
- 0
- Sqft (est)
- 376.74
The heatmap indicates the level of crime in the area. The color of the heatmap indicates the crime severity and recency.
Metrics Year-on-Year
- Average area value
- 189,689.00 £Increased by 0.18 %
- Est sale value
- 83,636.28 £Increased by 7.77 %
- Average area rental value
- 868.00 £/moDecreased by 3.12 %
- Est letting value
- 376.74 £/mo
- Est rental Yield
- 5.49 %Decreased by 3.35 %
- Crime Rate
- 19.00 %Unchanged by 0.00 %
from 189,340.00 £
from 77,608.44 £
from 896.00 £/mo
from 0.00 £/mo
from 5.68 %
from 19.00 %
Agent Activity
The Online Property Agency created the listing.
Nearby Schools
| Name | Type | Ofsted | Distance |
|---|---|---|---|
| Leamore Primary School | Community School | Good | 0.36 KM |
| Christ Church Cofe Primary School | Voluntary Controlled School | Good | 0.38 KM |
| Sunshine Infant And Nursery School | Community School | Good | 0.52 KM |
| Phoenix Academy | Academy Special Converter | Good | 0.65 KM |
| Blakenall Heath Junior School | Community School | Good | 0.69 KM |
Images
Nearby Streets
| Name | Average Price | Average Sqft | Distance |
|---|---|---|---|
| May Street | £ 0 | 0 | 0.00 KM |
| Old Road | £ 0 | 0 | 0.00 KM |
| High Street | £ 0 | 0 | 0.00 KM |
| Irvine Close | £ 170,000 | 0 | 0.00 KM |
| Blakenall Row | £ 0 | 0 | 0.00 KM |
Nearby Transport
| Name | NLC | TLC | Distance |
|---|---|---|---|
| Bloxwich | 1141 | BLX | 2.10 KM |
| Walsall | 1216 | WSL | 2.85 KM |
| Bloxwich North | 1018 | BWN | 3.14 KM |
| Bescot Stadium | 1003 | BSC | 4.97 KM |
| Landywood | 1017 | LAW | 6.11 KM |
Nearby Listings
| Address | Price | Type | Score | Distance |
|---|---|---|---|---|
| Conversion Opportunity To 15 Flats, Walsall, WS3 | £ 599,999 | BUY | 3 / 10 | 0.00 KM |
| West Street, Leamore Walsall | £ 120,000 | BUY | 5 / 10 | 0.13 KM |
| West Street, Leamore, Walsall | £ 195,000 | BUY | 7 / 10 | 0.17 KM |
| West Street, Bloxwich | £ 130,000 | BUY | 5 / 10 | 0.17 KM |
| West Street, Leamore, Walsall, WS3 | £ 160,000 | BUY | 6 / 10 | 0.18 KM |
Nearby Properties
| Address | Price | Distance |
|---|---|---|
| 12 Leamore Lane | £ 15,000 | 0.04 KM |
| 20 Leamore Lane | £ 74,000 | 0.04 KM |
| 14 Leamore Lane | £ 80,000 | 0.06 KM |
| 649 Bloxwich Road | £ 202,500 | 0.10 KM |
| 655 Bloxwich Road | £ 78,000 | 0.10 KM |