Haldane Crescent, Wakefield, West Yorkshire
By Manning Stainton
£ 225,000
Reviews
3 out of 5 stars
Manning Stainton says ..
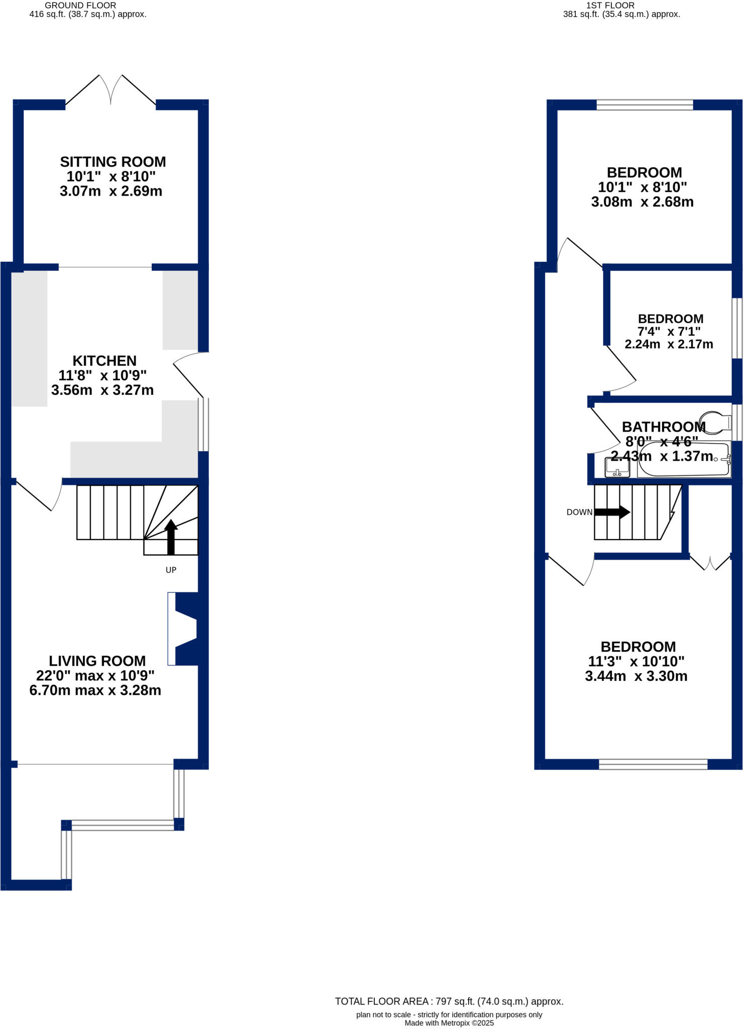
Three bedroom semi detached property located in WF1. Ideally suited for commuting and amenities that features two reception rooms, double driveway and modern decor. Ideally suited for the first time buyer, early viewing is highly advised!
Property Oracle says ..
The property is a well-maintained 3-bedroom semi-detached house with a modern kitchen and bathroom. The list price seems slightly higher than the average for the area, but not unreasonable given the apparent condition and proximity to amenities. More data is needed for a comprehensive price analysis.
Therefore, we give this property 7 / 10. *Disclaimer: This is our option and does constitute a recommendation or financial advice. Do your own research. *
- Price
- 7
- Condition
- 8
- Location
- 8
- Land
- 7
- Bedrooms
- 3
- Bathrooms
- 1
The heatmap indicates the level of crime in the area. The color of the heatmap indicates the crime severity and recency.
Metrics Year-on-Year
- Average area value
- 487,548.00 £Increased by 147.89 %
- Average area rental value
- 861.00 £/moIncreased by 8.44 %
- Est rental Yield
- 2.12 %Decreased by 56.20 %
- Crime Rate
- 11.00 %Unchanged by 0.00 %
Agent Activity
Manning Stainton created the listing.
Nearby Schools
| Name | Type | Ofsted | Distance |
|---|---|---|---|
| Outwood Academy City Fields | Academy Converter | Outstanding | 0.53 KM |
| Ivy Lane School | Other Independent Special School | 0.64 KM | |
| Outwood Primary Academy Park Hill | Academy Sponsor Led | 0.69 KM | |
| Meadowcroft School | Other Independent Special School | Requires improvement | 1.13 KM |
| Wakefield Greenhill Primary School | Community School | Good | 1.29 KM |
Images
Nearby Streets
| Name | Average Price | Average Sqft | Distance |
|---|---|---|---|
| Hebden Road | £ 0 | 0 | 0.00 KM |
| Gisburn Road | £ 180,000 | 0 | 0.00 KM |
| Scarlett Close | £ 0 | 0 | 0.00 KM |
| Cooper Way | £ 210,000 | 0 | 0.00 KM |
| Arncliffe Road | £ 0 | 0 | 0.00 KM |
Nearby Transport
| Name | NLC | TLC | Distance |
|---|---|---|---|
| Wakefield Kirkgate | 8584 | WKK | 1.94 KM |
| Wakefield Westgate | 8591 | WKF | 3.27 KM |
| Sandal And Agbrigg | 8358 | SNA | 3.32 KM |
| Outwood | 8309 | OUT | 4.36 KM |
| Normanton | 8528 | NOR | 6.12 KM |
Nearby Listings
| Address | Price | Type | Score | Distance |
|---|---|---|---|---|
| Haldane Crescent, Wakefield, West Yorkshire | £ 225,000 | BUY | 7 / 10 | 0.00 KM |
| Forest Close, Wakefield | £ 265,000 | BUY | 7 / 10 | 0.19 KM |
| Rylstone Grove, Wakefield | £ 125,000 | BUY | 5 / 10 | 0.20 KM |
| Barleycorn Close, Wakefield, West Yorkshire, WF1 | £ 330,000 | BUY | Unknown | 0.20 KM |
| Barnstone Vale, Wakefield, West Yorkshire, WF1 | £ 300,000 | BUY | 7 / 10 | 0.21 KM |
Nearby Properties
| Address | Price | Distance |
|---|---|---|
| 5 Haldane Crescent | £ 190,000 | 0.04 KM |
| 6 Haldane Crescent | £ 145,000 | 0.04 KM |
| 16 Haldane Crescent | £ 115,000 | 0.04 KM |
| 46 Haldane Crescent | £ 125,000 | 0.04 KM |
| 32 Haldane Crescent | £ 135,000 | 0.04 KM |