Gladstone Avenue, Liverpool, Merseyside, L16
Venmore logo

Gladstone Avenue, Liverpool, Merseyside, L16

By Venmore

£ 440,000

Reviews

3 out of 5 stars

Venmore says ..

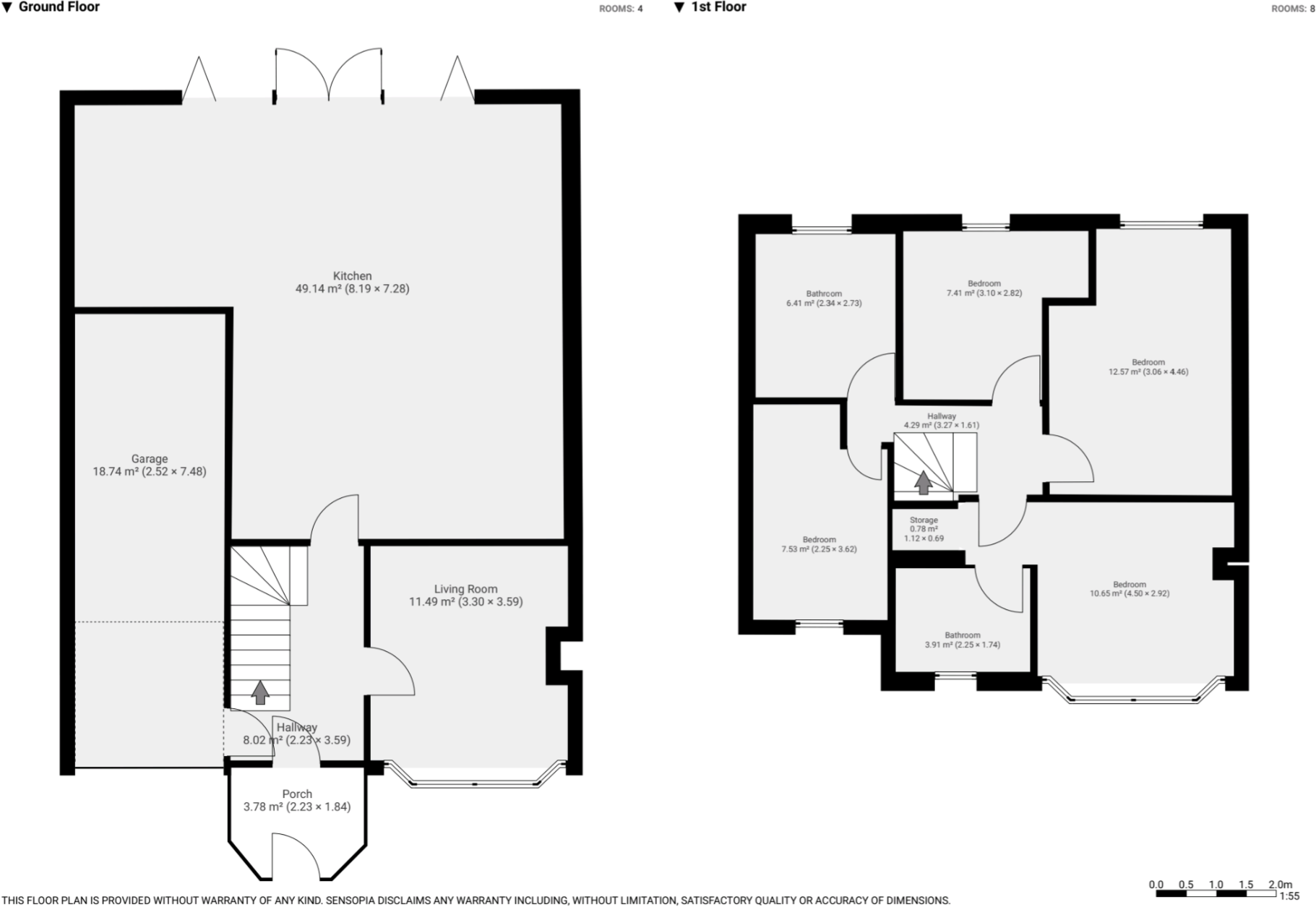
Exceptional 4-Bedroom Family Home | Stylish Interiors | Spacious Garden | No Chain Welcome to this immaculately presented four-bedroom family home, thoughtfully finished to a high standard throughout.

Property Oracle says ..

This property is a 4-bedroom, 2-bathroom semi-detached house located in Roby, Knowsley. The house has undergone a significant extension and modernisation, boasting a large open-plan kitchen/living area with bi-fold doors leading to the garden. The property also features a garage and a well-maintained paved driveway. The interior is modern and well-presented, with contemporary fixtures and fittings. The location is convenient, with good access to local schools and transportation links. The list price is higher than the average price for the area, but the size and modern features of the property may justify this. The lack of plot size information prevents a full assessment of land value.

Therefore, we give this property 6 / 10. *Disclaimer: This is our option and does constitute a recommendation or financial advice. Do your own research. *

Price
6
Condition
9
Location
7
Land
4
Bedrooms
4
Bathrooms
2
Sqft (est)
1,557.75

The heatmap indicates the level of crime in the area. The color of the heatmap indicates the crime severity and recency.

Metrics Year-on-Year

Average area value
348,125.00 £
Increased by 25.38 %
from 277,649.00 £
Est sale value
573,252.00 £
Increased by 67.27 %
from 342,705.00 £
Average area rental value
950.00 £/mo
Decreased by 13.64 %
from 1,100.00 £/mo
Est letting value
1,557.75 £/mo
from 0.00 £/mo
Est rental Yield
3.27 %
Decreased by 31.16 %
from 4.75 %
Crime Rate
5.00 %
Unchanged by 0.00 %
from 5.00 %

Agent Activity

  • Venmore created the listing.

Nearby Schools

NameTypeOfstedDistance
St Paschal Baylon Catholic Primary SchoolVoluntary Aided SchoolGood0.23 KM
Childwall Valley Primary SchoolCommunity SchoolGood0.55 KM
Malvern Primary SchoolCommunity SchoolGood1.23 KM
Childwall Abbey SchoolCommunity Special SchoolGood1.32 KM
Hope SchoolCommunity Special SchoolOutstanding1.32 KM

Images

Picture No. 39 Picture No. 38 Picture No. 44 Picture No. 06 Picture No. 07 Picture No. 15 Picture No. 12 Picture No. 25 Picture No. 26 Picture No. 27 Picture No. 30 Picture No. 33 Picture No. 04 Picture No. 16 Picture No. 40 Picture No. 42 Picture No. 28 Picture No. 22 Picture No. 31 Picture No. 29 Picture No. 18 Picture No. 10 Picture No. 09 Picture No. 41 Picture No. 19 Picture No. 02 Picture No. 24 Picture No. 21 Picture No. 34 Picture No. 32 Picture No. 03 Picture No. 05 Picture No. 81 Picture No. 80 Picture No. 79 Picture No. 61 Picture No. 52 Picture No. 53 Picture No. 49 Picture No. 50 Picture No. 54 Picture No. 55 Picture No. 56 Picture No. 58 Picture No. 59 Picture No. 60 Picture No. 62 Picture No. 63

Nearby Streets

NameAverage PriceAverage SqftDistance
Sycamore Way £ 000.00 KM
Deepdale Road £ 180,00000.00 KM
Thornton Road £ 258,32500.00 KM
Dauntsey Brow £ 107,00000.00 KM
Hartopp Road £ 217,50000.00 KM

Nearby Transport

NameNLCTLCDistance
Roby2261ROB2.01 KM
Broad Green2240BGE2.45 KM
Huyton2160HUY3.33 KM
Hunts Cross2235HNX4.86 KM
Liverpool South Parkway9709LPY5.21 KM

Nearby Listings

AddressPriceTypeScoreDistance
Gladstone Avenue, Liverpool, Merseyside, L16 £ 440,000BUY6 / 100.00 KM
Glynne Grove, Liverpool £ 290,000BUY6 / 100.02 KM
Keswick Way, Childwall, Liverpool £ 325,000BUY6 / 100.11 KM
Keswick Way, Liverpool, Merseyside, L16 £ 250,000BUY7 / 100.11 KM
Keswick Way, Childwall, L16 £ 280,000BUYUnknown0.11 KM

Nearby Properties

AddressPriceDistance
1 Glynne Grove £ 195,0000.01 KM
16 Keswick Way £ 170,0000.11 KM
23 Keswick Way £ 184,0000.11 KM
31 Keswick Way £ 213,0000.11 KM
41 Keswick Way £ 194,5000.11 KM