St. James's Street, Brighton
By David Maslen Estate Agents
£ 235,000
Reviews
2 out of 5 stars
David Maslen Estate Agents says ..
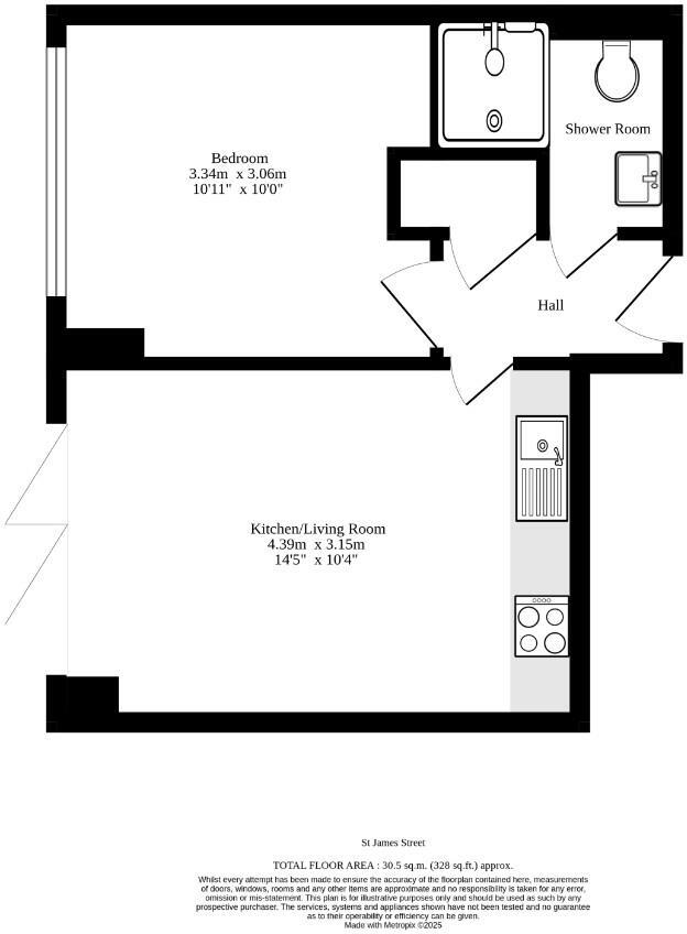
A WELL PRESENTED 1 bedroom third floor flat located in the sought-after KEMP TOWN area of Brighton, 3 MINUTES’ WALK TO THE SEA, close to a range of independent shops, cafes & restaurants. Property highlights include: the OPEN PLAN lounge/kitchen with bi-folding doors onto the BALCONY with SEA VIE...
Property Oracle says ..
This 1-bedroom flat located on St. James’s Street, Brighton, presents a compelling opportunity within a desirable urban setting. The property is situated in Kemptown, a lively district known for its diverse range of shops, restaurants, and pubs, all within easy walking distance. The proximity to Brighton’s seafront and excellent transport links adds to its appeal. The interior is presented in good condition, with a modern, updated feel. The kitchen and bathroom appear clean and well-maintained, and the living space is comfortably furnished. The exterior is undergoing some form of renovation, as evidenced by the scaffolding, which may be a factor to consider. While the property lacks a garden, this is common for flats in this area. The list price appears competitive when considering similar properties in the local market, although a precise price-per-square-foot comparison is difficult due to the limited data available on comparable properties. Overall, this property offers a convenient and stylish living space in a highly desirable location, making it an attractive option for buyers seeking a vibrant city lifestyle.
Therefore, we give this property 5 / 10. *Disclaimer: This is our option and does constitute a recommendation or financial advice. Do your own research. *
- Price
- 7
- Condition
- 7
- Location
- 8
- Land
- 1
- Bedrooms
- 1
- Bathrooms
- 0
- Sqft (est)
- 328.30
The heatmap indicates the level of crime in the area. The color of the heatmap indicates the crime severity and recency.
Metrics Year-on-Year
- Average area value
- 392,498.00 £Decreased by 19.21 %
- Est sale value
- 182,534.80 £Increased by 9.45 %
- Average area rental value
- 1,784.00 £/moDecreased by 5.61 %
- Est letting value
- 656.60 £/moIncreased by 100.00 %
- Est rental Yield
- 5.45 %Increased by 16.70 %
- Crime Rate
- 27.00 %Unchanged by 0.00 %
Agent Activity
David Maslen Estate Agents created the listing.
Nearby Schools
| Name | Type | Ofsted | Distance |
|---|---|---|---|
| Carlton Hill Primary School | Community School | Good | 0.53 KM |
| Tarner Children'S Centre | Children's Centre | 0.58 KM | |
| Tarnerland Nursery School | Local Authority Nursery School | Outstanding | 0.66 KM |
| Middle Street Primary School | Community School | Good | 0.83 KM |
| Royal Spa Nursery School | Local Authority Nursery School | Outstanding | 0.92 KM |
Images
Nearby Streets
| Name | Average Price | Average Sqft | Distance |
|---|---|---|---|
| Parochial Terrace | £ 0 | 0 | 0.00 KM |
| Marine Parade | £ 280,000 | 0 | 0.00 KM |
| A23 | £ 0 | 0 | 0.00 KM |
| Avenue | £ 0 | 0 | 0.00 KM |
| Barrack Yard | £ 0 | 0 | 0.00 KM |
Nearby Transport
| Name | NLC | TLC | Distance |
|---|---|---|---|
| Brighton | 5268 | BTN | 1.09 KM |
| London Road (Brighton) | 5281 | LRB | 1.74 KM |
| Moulsecoomb | 5312 | MCB | 3.39 KM |
| Preston Park | 5285 | PRP | 3.52 KM |
| Hove | 5273 | HOV | 4.21 KM |
Nearby Listings
| Address | Price | Type | Score | Distance |
|---|---|---|---|---|
| St James Street | £ 180,000 | BUY | 5 / 10 | 0.03 KM |
| St. James's Street, Brighton | £ 260,000 | BUY | 5 / 10 | 0.03 KM |
| St. James's Street, BN2 | £ 120,000 | BUY | 5 / 10 | 0.03 KM |
| St. James's Street, Brighton | £ 400,000 | BUY | Unknown | 0.03 KM |
| St James' Street, Brighton | £ 180,000 | BUY | 5 / 10 | 0.05 KM |
Nearby Properties
| Address | Price | Distance |
|---|---|---|
| 108a St James's Street | £ 230,000 | 0.03 KM |
| 110a St James's Street | £ 160,000 | 0.03 KM |
| 118a St James's Street | £ 305,000 | 0.04 KM |
| 6 St James's Place | £ 820,000 | 0.05 KM |
| 13 Manchester Street | £ 259,400 | 0.05 KM |