Woodfield Grove, Manchester, Greater Manchester, M30
By Pure Investor
£ 180,000
Reviews
3 out of 5 stars
Pure Investor says ..
Buy-to-let property investment in Eccles, Manchester | Being sold with the current tenants in situ | Freehold property | Current rental income of £990pcm | Good tenants in situ | Popular Manchester location
Property Oracle says ..
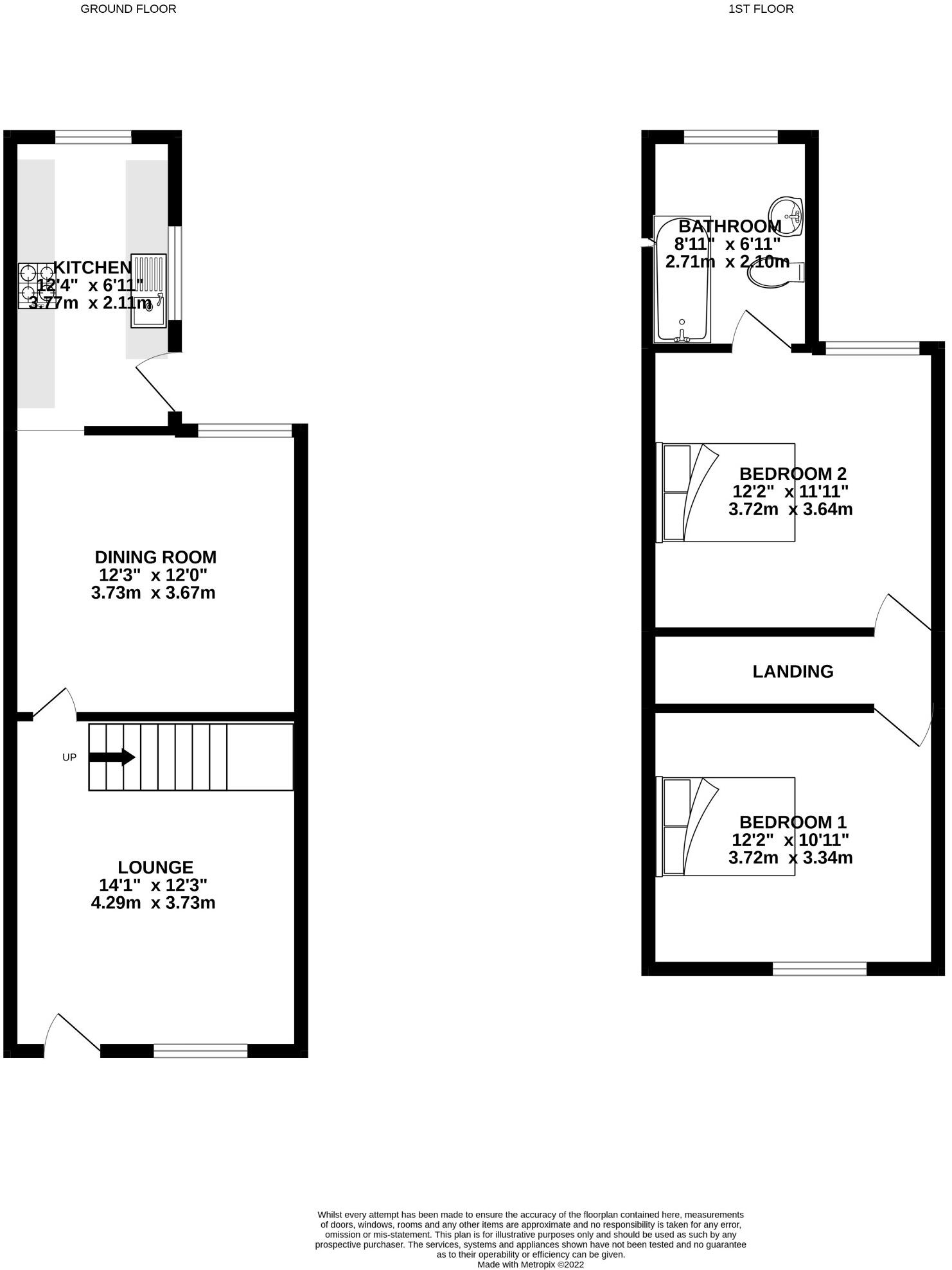
This is a two-bedroom terraced house located in Eccles, Greater Manchester. The property is in reasonable condition and has a modern kitchen and bathroom. It also has a rear garden. The property is located close to local schools and transport links. The listing price of £180,000 represents good value for money.
Therefore, we give this property 7 / 10. *Disclaimer: This is our option and does constitute a recommendation or financial advice. Do your own research. *
- Price
- 8
- Condition
- 7
- Location
- 7
- Land
- 6
- Bedrooms
- 2
- Bathrooms
- 1
- Sqft (est)
- 745.40
The heatmap indicates the level of crime in the area. The color of the heatmap indicates the crime severity and recency.
Metrics Year-on-Year
- Average area value
- 245,000.00 £Increased by 3.26 %
- Est sale value
- 326,485.20 £Increased by 58.70 %
- Average area rental value
- 899.00 £/moDecreased by 12.97 %
- Est letting value
- 745.40 £/moUnchanged by 0.00 %
- Est rental Yield
- 4.40 %Decreased by 15.71 %
- Crime Rate
- 0.00 %
Agent Activity
Pure Investor created the listing.
Nearby Schools
| Name | Type | Ofsted | Distance |
|---|---|---|---|
| Godfrey Ermen Memorial Cofe Primary School | Voluntary Aided School | Good | 0.29 KM |
| Beech Street Community Primary School | Community School | Good | 0.31 KM |
| Rowan House School | Other Independent Special School | 0.41 KM | |
| Willow House | Other Independent Special School | Good | 0.41 KM |
| Woodlands | Other Independent Special School | Good | 0.41 KM |
Images
Nearby Streets
| Name | Average Price | Average Sqft | Distance |
|---|---|---|---|
| Driffield Street | £ 0 | 0 | 0.00 KM |
| Green Street | £ 0 | 0 | 0.00 KM |
| Moor Street | £ 0 | 0 | 0.00 KM |
| Madeira Place | £ 120,000 | 0 | 0.00 KM |
| King Edward Street | £ 0 | 0 | 0.00 KM |
Nearby Transport
| Name | NLC | TLC | Distance |
|---|---|---|---|
| Patricroft | 2916 | PAT | 0.71 KM |
| Eccles (Manchester) | 2950 | ECC | 3.05 KM |
| Urmston | 2938 | URM | 3.55 KM |
| Chassen Road | 2947 | CSR | 3.76 KM |
| Moorside | 2799 | MSD | 4.25 KM |
Nearby Listings
| Address | Price | Type | Score | Distance |
|---|---|---|---|---|
| Woodfield Grove, Manchester, Greater Manchester, M30 | £ 180,000 | BUY | 7 / 10 | 0.00 KM |
| Woodfield Grove, Eccles, M30 | £ 200,000 | BUY | 7 / 10 | 0.00 KM |
| Eldon Place, Eccles, Manchester, M30 8QE | £ 125,000 | BUY | 6 / 10 | 0.12 KM |
| The Manse, Eldon Place, Eccles | £ 175,000 | BUY | 6 / 10 | 0.13 KM |
| Stanley Road, Eccles, M30 | £ 250,000 | BUY | 6 / 10 | 0.13 KM |
Nearby Properties
| Address | Price | Distance |
|---|---|---|
| 32 Woodfield Grove | £ 155,500 | 0.00 KM |
| 29 Woodfield Grove | £ 38,000 | 0.00 KM |
| 21 Woodfield Grove | £ 47,000 | 0.00 KM |
| 8 Woodfield Grove | £ 88,500 | 0.00 KM |
| 24 Woodfield Grove | £ 65,000 | 0.00 KM |