Wickliffe Avenue, Finchley, London, N3
By Winkworth
£ 1,375,000
Reviews
3 out of 5 stars
Winkworth says ..
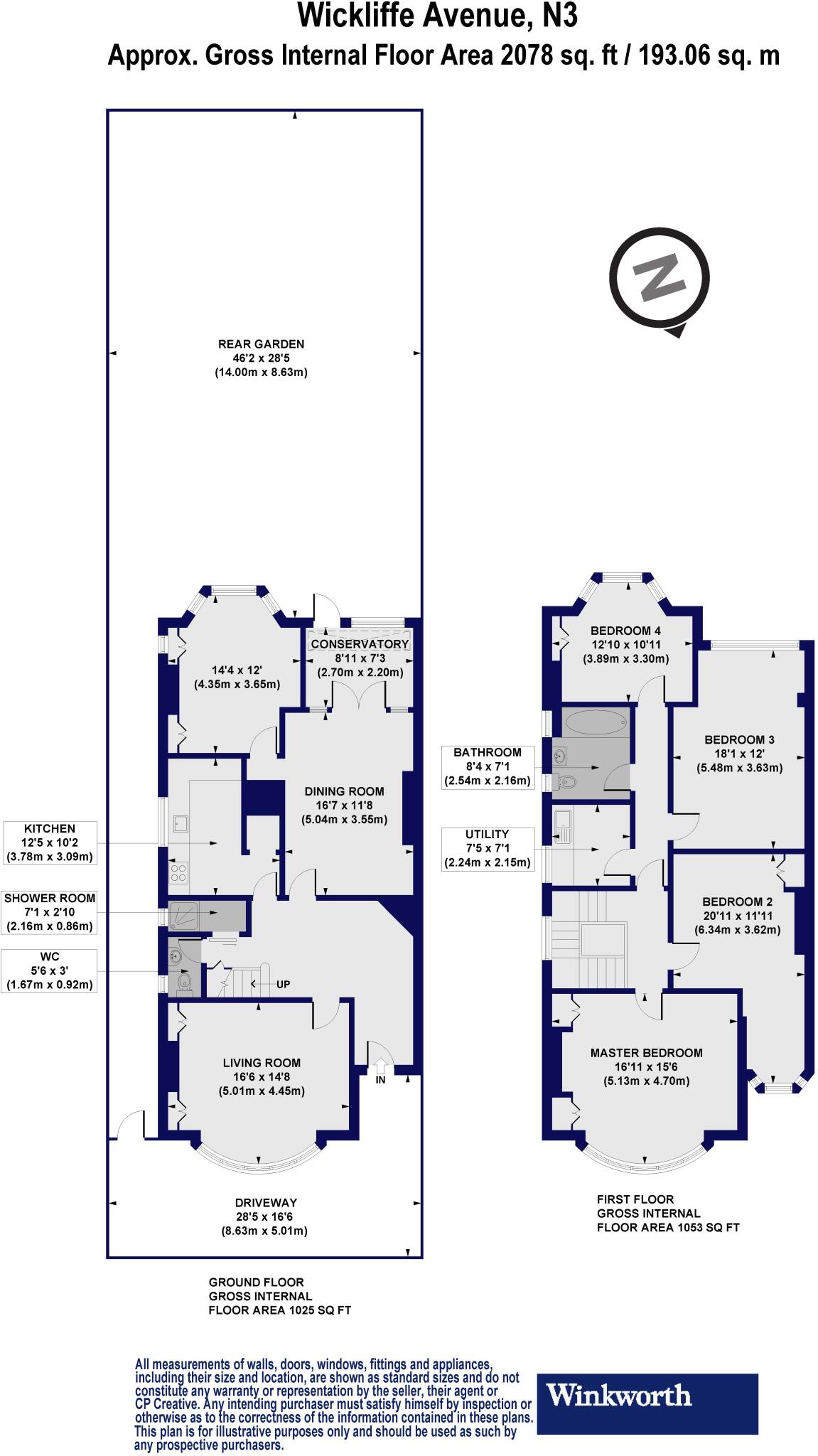
On the market for the first time since it was built, we are pleased to offer this spacious and well presented family home, situated on a sought-after turning off Hendon Lane, moments away from Windsor Open Space. The property offers in excess of 2000 sq. ft of living space whilst still havin...
Property Oracle says ..
This property is a 4 bedroom, 2 bathroom semi-detached house located in Finchley, London. The property benefits from a good location, close to local schools and transport links. The house itself appears to be a period property that has been maintained to a good standard, although some modernisation may be desired by some buyers. The property includes a garden. The list price is slightly above the average price per square foot for the area, but comparable to other similar properties in the local area.
Therefore, we give this property 7 / 10. *Disclaimer: This is our option and does constitute a recommendation or financial advice. Do your own research. *
- Price
- 7
- Condition
- 8
- Location
- 9
- Land
- 7
- Bedrooms
- 4
- Bathrooms
- 2
- Sqft (est)
- 2,078.00
The heatmap indicates the level of crime in the area. The color of the heatmap indicates the crime severity and recency.
Metrics Year-on-Year
- Average area value
- 1,216,667.00 £Increased by 18.81 %
- Est sale value
- 2,013,582.00 £Increased by 46.37 %
- Average area rental value
- 2,646.00 £/moIncreased by 2.16 %
- Est letting value
- 4,156.00 £/moIncreased by 100.00 %
- Est rental Yield
- 2.61 %Decreased by 13.86 %
- Crime Rate
- 4.00 %Unchanged by 0.00 %
Agent Activity
Winkworth created the listing.
Nearby Schools
| Name | Type | Ofsted | Distance |
|---|---|---|---|
| Chalgrove Primary School | Community School | Good | 0.40 KM |
| Finchley And Acton Yochien School | Other Independent School | Good | 0.76 KM |
| Hasmonean High School For Boys | Academy Converter | Outstanding | 0.89 KM |
| Pardes House Grammar School | Other Independent School | Good | 1.08 KM |
| Pardes House Primary School | Voluntary Aided School | Good | 1.08 KM |
Images
Nearby Streets
| Name | Average Price | Average Sqft | Distance |
|---|---|---|---|
| Hillcrest Gardens | £ 0 | 0 | 0.00 KM |
| Paragon Court | £ 875,000 | 0 | 0.00 KM |
| Monkville Avenue | £ 0 | 0 | 0.00 KM |
| Alberon Gardens | £ 750,000 | 0 | 0.00 KM |
| Anatoolpad | £ 0 | 0 | 0.00 KM |
Nearby Transport
| Name | NLC | TLC | Distance |
|---|---|---|---|
| Hendon | 1522 | HEN | 3.95 KM |
| Cricklewood | 1519 | CRI | 4.16 KM |
| Mill Hill Broadway | 1527 | MIL | 5.12 KM |
| West Hampstead Thameslink | 1525 | WHP | 5.46 KM |
| West Hampstead | 1421 | WHD | 5.59 KM |
Nearby Listings
| Address | Price | Type | Score | Distance |
|---|---|---|---|---|
| Wickliffe Avenue, Finchley, London, N3 | £ 1,375,000 | BUY | 7 / 10 | 0.00 KM |
| Wickliffe Avenue, Finchley, N3 | £ 2,500,000 | BUY | Unknown | 0.06 KM |
| Hendon Lane, Finchley, London, N3 | £ 825,000 | BUY | 8 / 10 | 0.07 KM |
| Hendon Lane, London | £ 760,000 | BUY | 6 / 10 | 0.07 KM |
| Elizabethan Court, Hendon Lane, London N3 | £ 650,000 | BUY | 5 / 10 | 0.07 KM |
Nearby Properties
| Address | Price | Distance |
|---|---|---|
| 30 Wickliffe Avenue | £ 430,000 | 0.07 KM |
| 16 Wickliffe Avenue | £ 224,000 | 0.07 KM |
| 28 Wickliffe Avenue | £ 765,120 | 0.07 KM |
| 24 Wickliffe Avenue | £ 475,000 | 0.07 KM |
| 36 Wickliffe Avenue | £ 881,000 | 0.07 KM |