21 Oldfield Road, Hampton, TW12 2AD
By Savills
£ 525,000
Reviews
3 out of 5 stars
Savills says ..
Auction Sale - 09/12/2025 - To book viewings, view the legal pack and register to bid please refer to the full sales particulars on the Savills Auctions website A three bedroom terraced house present in clean decorative order. Located in Hampton, TW12. Nearby to all local amenities.S...
Property Oracle says ..
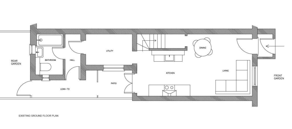
This is a three-bedroom terraced house located on Oldfield Road in Hampton. The property benefits from its location, with good access to local amenities, schools, and transportation links. While the kitchen and bathroom have been modernised, other areas of the house require renovation, particularly one of the bedrooms. The property includes a rear garden, adding to its appeal. The asking price of £525,000 appears reasonable, considering the location, condition, and local market trends. The property is listed with Savills.
Therefore, we give this property 6 / 10. *Disclaimer: This is our option and does constitute a recommendation or financial advice. Do your own research. *
- Price
- 7
- Condition
- 5
- Location
- 7
- Land
- 6
- Bedrooms
- 3
- Bathrooms
- 0
The heatmap indicates the level of crime in the area. The color of the heatmap indicates the crime severity and recency.
Metrics Year-on-Year
- Average area value
- 557,772.00 £Decreased by 25.18 %
- Average area rental value
- 2,626.00 £/moDecreased by 24.91 %
- Est rental Yield
- 5.65 %Increased by 0.36 %
- Crime Rate
- 24.00 %Unchanged by 0.00 %
Agent Activity
Savills created the listing.
Nearby Schools
| Name | Type | Ofsted | Distance |
|---|---|---|---|
| Hampton Junior School | Community School | Good | 0.29 KM |
| St Mary'S Hampton Church Of England Primary | Free Schools | Good | 0.55 KM |
| Hampton Infant School And Nursery | Community School | Outstanding | 0.73 KM |
| Fox Grove School | Free Schools Special | 0.87 KM | |
| Hurst Park Primary School | Community School | Good | 0.95 KM |
Images
Nearby Streets
| Name | Average Price | Average Sqft | Distance |
|---|---|---|---|
| Lower Sunbury Road | £ 70,000 | 0 | 0.00 KM |
| Post Office Passage | £ 325,000 | 0 | 0.00 KM |
| Windsor Avenue | £ 0 | 0 | 0.00 KM |
| Bell Hill | £ 0 | 0 | 0.00 KM |
| Lavender Court | £ 0 | 0 | 0.00 KM |
Nearby Transport
| Name | NLC | TLC | Distance |
|---|---|---|---|
| Hampton | 5560 | HMP | 0.17 KM |
| Fulwell | 5587 | FLW | 3.19 KM |
| Hampton Court | 5561 | HMC | 3.41 KM |
| Whitton | 5611 | WTN | 4.13 KM |
| Kempton Park Racecourse | 5678 | KMP | 4.34 KM |
Nearby Listings
| Address | Price | Type | Score | Distance |
|---|---|---|---|---|
| 21 Oldfield Road, Hampton, TW12 2AD | £ 525,000 | BUY | 6 / 10 | 0.00 KM |
| Oldfield Road, Hampton | £ 625,000 | BUY | Unknown | 0.02 KM |
| Oldfield Road, Hampton | £ 599,950 | BUY | 6 / 10 | 0.02 KM |
| Oldfield Road, Hampton, TW12 | £ 650,000 | BUY | 7 / 10 | 0.02 KM |
| Beards Hill, Hampton | £ 350,000 | BUY | 7 / 10 | 0.02 KM |
Nearby Properties
| Address | Price | Distance |
|---|---|---|
| 38 Beards Hill | £ 650,000 | 0.06 KM |
| 31 Beards Hill | £ 585,000 | 0.06 KM |
| 15 Beards Hill | £ 235,000 | 0.06 KM |
| 4 Beards Hill | £ 295,000 | 0.06 KM |
| 19 Beards Hill | £ 399,950 | 0.06 KM |