Ulleswater Street, Leigh, WN7
By Land & New Homes
£ 450,000
Reviews
3 out of 5 stars
Land & New Homes says ..
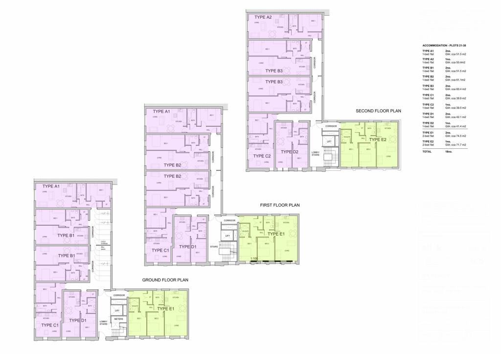
Incredible development opportunity in Leigh, Greater Manchester. Full planning permission for converting gym into 18 apartments and building 20 townhouses. Offers per plot. Historic site with no affordable element. Reference A/22/94743/MAJOR.
Property Oracle says ..
This property in Leigh, Greater Manchester, is a development opportunity comprising a substantial plot of land with planning permission for the construction of 18 apartments and 20 townhouses. The existing structure appears to be a derelict building requiring complete demolition and redevelopment.
The location is relatively central within Leigh, providing access to amenities and transport links, including several train stations within a reasonable distance. Schools are also conveniently located nearby. However, the immediate street environment seems to comprise a mix of residential properties, and a more detailed site visit is necessary to fully evaluate the surrounding area and its potential impact on the development’s appeal.
The condition of the existing building is poor, as evidenced by the photographs; it’s significantly dilapidated and will require extensive renovation or demolition. The planning permission significantly mitigates this risk, transforming the site into a potentially attractive residential development. However, until this is complete, the site remains a high-risk, high-cost undertaking.
The plot’s considerable size offers substantial development potential, making it an attractive prospect for developers. The absence of a garden in its current state is not a factor given the planned development. The inclusion of the architectural plans allows for a more comprehensive assessment of the property’s potential once completed.
The asking price, while potentially justifiable considering the potential return from a successful development, is relatively high compared to the prices of nearby residential properties. The risk of unforeseen construction delays, rising material costs, or market changes should be carefully considered. A thorough market analysis of comparable completed projects would be necessary to accurately judge the financial viability of the property, given its size and planning permission. Overall, this property presents a significant investment opportunity but involves substantial risk and costs.
Therefore, we give this property 6 / 10. *Disclaimer: This is our option and does constitute a recommendation or financial advice. Do your own research. *
- Price
- 6
- Condition
- 4
- Location
- 7
- Land
- 8
- Bedrooms
- 0
- Bathrooms
- 0
- Sqft (est)
- 7,660.68
The heatmap indicates the level of crime in the area. The color of the heatmap indicates the crime severity and recency.
Metrics Year-on-Year
- Average area value
- 158,694.00 £Increased by 2.03 %
- Est sale value
- 1,746,635.04 £Increased by 70.15 %
- Average area rental value
- 976.00 £/moIncreased by 24.81 %
- Est letting value
- 7,660.68 £/mo
- Est rental Yield
- 7.38 %Increased by 22.39 %
- Crime Rate
- 137.00 %Unchanged by 0.00 %
Agent Activity
Land & New Homes created the listing.
Nearby Schools
| Name | Type | Ofsted | Distance |
|---|---|---|---|
| Leigh St Mary'S Cofe Primary School | Voluntary Aided School | Good | 0.32 KM |
| Leigh Central Sure Start Children'S Centre | Children's Centre Linked Site | 0.40 KM | |
| Leigh Central Primary School | Community School | Good | 0.40 KM |
| Sacred Heart Catholic Primary School Leigh | Voluntary Aided School | Good | 0.44 KM |
| Christ Church Cofe Primary School, Pennington | Voluntary Aided School | Good | 0.64 KM |
Images
Nearby Streets
| Name | Average Price | Average Sqft | Distance |
|---|---|---|---|
| Hill Street | £ 0 | 0 | 0.00 KM |
| Navigation Close | £ 0 | 0 | 0.00 KM |
| Cook Street | £ 0 | 0 | 0.00 KM |
| Peel Street | £ 0 | 0 | 0.00 KM |
| Walmersley Court | £ 0 | 0 | 0.00 KM |
Nearby Transport
| Name | NLC | TLC | Distance |
|---|---|---|---|
| Daisy Hill | 2777 | DSY | 4.83 KM |
| Hag Fold | 2585 | HGF | 5.22 KM |
| Atherton | 2584 | ATN | 6.12 KM |
| Westhoughton | 2619 | WHG | 6.55 KM |
| Hindley | 2398 | HIN | 7.63 KM |
Nearby Listings
| Address | Price | Type | Score | Distance |
|---|---|---|---|---|
| Ulleswater Street, Leigh, WN7 | £ 450,000 | BUY | 6 / 10 | 0.00 KM |
| Ulleswater Street, Leigh, WN7 | £ 900,000 | BUY | 5 / 10 | 0.00 KM |
| Leigh, Greater Manchester, WN7 | £ 125,000 | BUY | 6 / 10 | 0.00 KM |
| Ulleswater Street, Leigh, WN7 | £ 130,000 | BUY | 6 / 10 | 0.04 KM |
| Organ Street, Leigh, Greater Manchester, WN7 | £ 110,000 | BUY | 5 / 10 | 0.07 KM |
Nearby Properties
| Address | Price | Distance |
|---|---|---|
| 37 Ulleswater Street | £ 78,000 | 0.01 KM |
| 25 Ulleswater Street | £ 60,000 | 0.01 KM |
| 1 Ulleswater Street | £ 100,000 | 0.01 KM |
| 35 Ulleswater Street | £ 117,000 | 0.01 KM |
| 19 Ulleswater Street | £ 66,000 | 0.01 KM |